8.2
Смотреть все фото
БЕЗ КОМИССИИ ID: 1328351 Рейтинг8.3 КлассB+
Бизнес-центр «Авион»

Аренда офиса 883 м²

Москва, Ленинградский проспект, 47 с2

Аэропорт → 321 м
~ 3 мин
Арендная плата в месяц 3 679 200 ₽ 50 000 ₽/м² в год С учётом НДС

Презентация по предложению

Собираете информацию? Получите подробную презентацию в удобном формате!

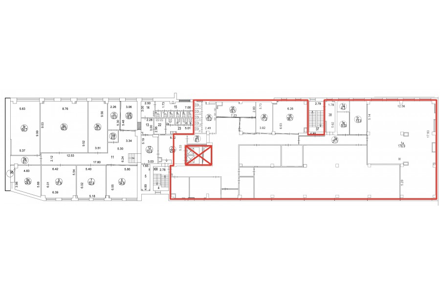
Площадь 883 м²
Планировка Смешанная
Этаж 6

Описание

Преимущества
  • Класс B+
  • Пешком от метро
  • Кондиционирование и вентиляция
  • Свой паркинг
  • Развитая инфраструктура

Коммерческие условия

Арендная плата 3 679 170 ₽
Ставка арендной платы 50 000 ₽ м²/год
Эксплуатационные расходы Включены в ставку
Налоги С учётом НДС
Тип договора Прямая аренда
Срок договора Долгосрочный
Размер платежей 2 месяц
Обеспечительный платеж 2 месяц
Статус Сдан

О бизнес-центре

Класс B+
Этажность 8
Лифты Есть
Общая площадь 19 000 м²
Год постройки 2005
Паркинг Наземный
Вентиляция приточно-вытяжная
Кондиционирование центральное
Телекоммуникации Интернет/Телефония

Расположение

Подробная презентацию по предложению

Собираете информацию? Получите подробную презентацию в удобном формате, чтобы обсудить вариант с коллегами или переслать руководству!

Похожие предложения в других зданиях

БЕЗ КОМИССИИ ID: 1321664 Рейтинг9.1 КлассА

Москва, Ленинградский проспект, 37А к4

ЦСКА → 1.03 км
~ 10 мин
Арендная плата в месяц 5 854 536 ₽ 83 900 ₽/м² в год С учётом НДС
Характеристики 837 м² 2 этаж Готово к въезду
Преимущества
  • Класс А
  • Пешком от метро
  • Кондиционирование и вентиляция
  • Свой паркинг

Предлагаем в долгосрочную прямую аренду офисный блок класса А площадью 837 кв. метров в бизнес-центре "Аркус 3"... подробнее

Презентация по предложению

Собираете информацию? Получите подробную презентацию в удобном формате!

БЕЗ КОМИССИИ ID: 1329326 Рейтинг7.6 КлассА

Москва, улица 8 Марта, 1 с12

Петровский парк → 1.26 км
~ 13 мин
Арендная плата в месяц 3 553 718 ₽ 48 200 ₽/м² в год С учётом НДС
Характеристики 885 м² 6 этаж Готово к въезду
Преимущества
  • Класс А
  • Пешком от метро
  • Кондиционирование и вентиляция
  • Развитая инфраструктура

Предлагаем в долгосрочную прямую аренду офисный блок класса А общей площадью 1767 кв.м в бизнес-центре "Трио"... подробнее

Презентация по предложению

Собираете информацию? Получите подробную презентацию в удобном формате!

БЕЗ КОМИССИИ ID: 1373121 Рейтинг7.6 КлассА

Москва, улица 8 Марта, 1 с12

Петровский парк → 1.26 км
~ 13 мин
Арендная плата в месяц 3 553 718 ₽ 48 200 ₽/м² в год С учётом НДС
Характеристики 885 м² 6 этаж Готово к въезду
Преимущества
  • Класс А
  • Пешком от метро
  • Кондиционирование и вентиляция
  • Развитая инфраструктура

Предлагаем в прямую аренду офисный блок класса А площадью 880 квадратных метров в бизнес-центре "Трио"... подробнее

Презентация по предложению

Собираете информацию? Получите подробную презентацию в удобном формате!

БЕЗ КОМИССИИ ID: 1373414 Рейтинг7.6 КлассА

Москва, улица 8 Марта, 1 с12

Петровский парк → 1.26 км
~ 13 мин
Арендная плата в месяц 3 553 423 ₽ 48 200 ₽/м² в год С учётом НДС
Характеристики 885 м² 6 этаж Готово к въезду
Преимущества
  • Класс А
  • Пешком от метро
  • Кондиционирование и вентиляция
  • Развитая инфраструктура

Предлагается в прямую аренду офисный блок класса А общей площадью 885 квадратных метров в бизнес-центре "Трио"... подробнее

Презентация по предложению

Собираете информацию? Получите подробную презентацию в удобном формате!

БЕЗ КОМИССИИ ID: 1329467 Рейтинг7.8 КлассB+

Москва, Ленинградский проспект, вл37А

Динамо → 1.02 км
~ 10 мин
Арендная плата в месяц 3 375 000 ₽ 45 000 ₽/м² в год С учётом НДС
Характеристики 900 м² 2 этаж Готово к въезду
Преимущества
  • Класс B+
  • Пешком от метро
  • Кондиционирование и вентиляция
  • Свой паркинг

Сдается в долгосрочную аренду помещение под офис класса B+ площадью 900 кв. метров в бизнес-центре "Аркус 2"... подробнее

Презентация по предложению

Собираете информацию? Получите подробную презентацию в удобном формате!

Посмотреть все похожие предложения
Отнеситесь рационально к процессу поиска нового офиса!

Просто ответьте на 3 вопроса, и наши специалисты сами предложат оптимальные варианты под ваш бюджет