8.2
Смотреть все фото
БЕЗ КОМИССИИ ID: 1328795 Рейтинг6.4 КлассB
Бизнес-центр «Станколит»

Аренда офиса 273 м²

Москва, Складочная улица, 1 с1

Савеловская → 880 м
~ 9 мин
Арендная плата в месяц 840 300 ₽ 36 900 ₽/м² в год С учётом НДС

Презентация по предложению

Собираете информацию? Получите подробную презентацию в удобном формате!

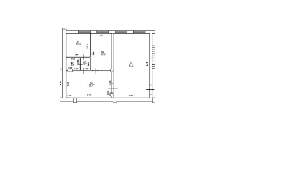
Площадь 273 м²
Состояние Готово к въезду
Планировка Смешанная
Этаж 3

Описание

Преимущества
  • Класс B
  • Пешком от метро
  • Кондиционирование и вентиляция
  • Свой паркинг
  • Несколько провайдеров связи
Предлагается в долгосрочную прямую аренду офисный блок класса B площадью 273 кв.м в бизнес-центре "Станколит".

Москва, СВАО, Складочная улица, 1 с1

Удобная локация здания:
- Автомобиль: близость транспортных магистралей, таких как Дмитровское шоссе, Третье Транспортное Кольцо, Бутырская улица и других.
- Возможность аренды парковочных мест.
- Ближайшее метро: от метро "Савеловская" всего 11 мин пешком

Офис класса B:
- Помещение с отделкой, готово к въезду
- Кондиционирование: сплит-системы


Если данное предложение подходит Вашему запросу:

1. Мы отправим Вам подробную презентацию с планировкой и фотографиями в течение 10 минут после звонка, чтобы Вы могли поделиться информацией с руководством или с коллегами.
2. Задайте любые вопросы менеджеру по телефону, готовы обсуждать любые предложения по финансовым условиям договора аренды.
3. Оперативно организуем просмотр помещения, договоримся на любое удобное время, подготовим виртуальный тур.

Вы можете позвонить нам в любое время. Мы ответим на Ваши вопросы по будням до 19:00, а поздно вечером или в выходные зафиксируем Ваш контакт и перезвоним в рабочее время.

Коммерческие условия

Арендная плата 840 320 ₽
Ставка арендной платы 36 900 ₽ м²/год
Эксплуатационные расходы Включены в ставку
Налоги С учётом НДС
Тип договора Прямая аренда
Срок договора от 11 месяцев
Размер платежей 1 месяц
Обеспечительный платеж 1 месяц
Статус Свободен

О бизнес-центре

Класс B
Этажность 4
Лифты Есть
Общая площадь 30 000 м²
Паркинг Наземный
Вентиляция естественная
Кондиционирование сплит-системы
Телекоммуникации Интернет/Телефония

Расположение

Подробная презентацию по предложению

Собираете информацию? Получите подробную презентацию в удобном формате, чтобы обсудить вариант с коллегами или переслать руководству!

Похожие предложения в других зданиях

БЕЗ КОМИССИИ ID: 1373417 Рейтинг6.4 КлассB

Москва, 3-я улица Ямского Поля, 2 к1

Белорусская → 586 м
~ 7 мин
Арендная плата в месяц 624 239 ₽ 32 400 ₽/м² в год С учётом НДС
Характеристики 231 м² 1 этаж Готово к въезду
Преимущества
  • Класс B
  • Пешком от метро
  • Кондиционирование и вентиляция
  • Свой паркинг
  • Развитая инфраструктура

Предлагаем в долгосрочную прямую аренду офис класса B площадью 231 квадратных метров в бизнес-центре "Ямское поле"... подробнее

Презентация по предложению

Собираете информацию? Получите подробную презентацию в удобном формате!

БЕЗ КОМИССИИ ID: 1330184 Рейтинг6.4 КлассB

Москва, Складочная улица, 1 с1

Савеловская → 880 м
~ 9 мин
Арендная плата в месяц 1 000 304 ₽ 39 600 ₽/м² в год С учётом НДС
Характеристики 303 м² 2 - 3 этаж Готово к въезду
Преимущества
  • Класс B
  • Пешком от метро
  • Кондиционирование и вентиляция
  • Свой паркинг
  • Несколько провайдеров связи

Сдается в долгосрочную прямую аренду помещение под офис класса B площадью 303 квадр. метров в бизнес-центре "Станколит"... подробнее

Презентация по предложению

Собираете информацию? Получите подробную презентацию в удобном формате!

БЕЗ КОМИССИИ ID: 1330183 Рейтинг6.4 КлассB

Москва, Складочная улица, 1 с1

Савеловская → 880 м
~ 9 мин
Арендная плата в месяц 740 358 ₽ 38 100 ₽/м² в год С учётом НДС
Характеристики 233 м² 2 - 3 этаж Готово к въезду
Преимущества
  • Класс B
  • Пешком от метро
  • Кондиционирование и вентиляция
  • Свой паркинг
  • Несколько провайдеров связи

Сдается в долгосрочную прямую аренду помещение под офис класса B общей площадью 233 кв. метров в бизнес-центре "Станколит"... подробнее

Презентация по предложению

Собираете информацию? Получите подробную презентацию в удобном формате!

Посмотреть все похожие предложения
Отнеситесь рационально к процессу поиска нового офиса!

Просто ответьте на 3 вопроса, и наши специалисты сами предложат оптимальные варианты под ваш бюджет