8.2
Смотреть все фото
БЕЗ КОМИССИИ ID: 1328265 Рейтинг7.4 КлассB

Москва, Старокалужское шоссе, 65

Воронцовская → 175 м
~ 2 мин
Арендная плата в месяц 110 000 ₽ 24 400 ₽/м² в год С учётом НДС

Презентация по предложению

Собираете информацию? Получите подробную презентацию в удобном формате!

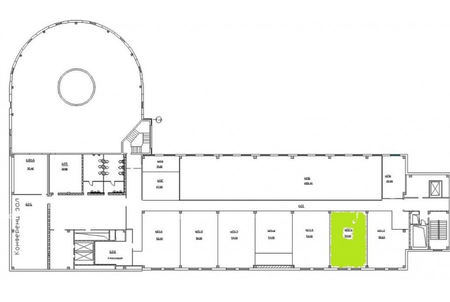
Площадь 54 м²
Состояние Готово к въезду
Планировка Кабинетная
Этаж 3

Описание

Преимущества
  • Класс B
  • Пешком от метро
  • Кондиционирование и вентиляция
  • Свой паркинг
Сдается в долгосрочную аренду помещение под офис класса B общей площадью 54 кв.м в бизнес-центре.

Москва, ЮЗАО, Старокалужское шоссе, 65

Удобное расположение здания для всех видов транспорта:
- Автомобиль: близость транспортных магистралей, таких как Профсоюзная улица, Ленинский проспект, Севастопольский проспект и других.
- Возможность аренды парковочных мест.
- Ближайшее метро: буквально 2 мин пешком от метро "Воронцовская"

Офис класса B:
- Помещение готово к въезду
- Вентиляция: Приточно-вытяжная вентиляция
- Кондиционирование: центральное


Если предложение предварительно Вам подходит:

1. Мы отправим Вам подробную презентацию с планировкой и фотографиями в течение 10 минут после звонка, чтобы Вы могли поделиться информацией с руководством или с коллегами.
2. Задайте любые вопросы менеджеру по телефону, готовы обсуждать любые предложения по финансовым условиям договора аренды.
3. Оперативно организуем просмотр помещения, договоримся на любое удобное время, подготовим виртуальный тур.

Звоните нам в любое время. По будням мы сможем ответить на Ваши вопросы до 19:00. В выходные или вечернее время мы передадим Ваш контакт нашему менеджеру по аренде.

Коммерческие условия

Арендная плата 110 000 ₽
Ставка арендной платы 24 400 ₽ м²/год
Эксплуатационные расходы Включены в ставку
Налоги С учётом НДС
Тип договора Прямая аренда
Срок договора от 11 месяцев
Размер платежей 1 месяц
Обеспечительный платеж 1 месяц
Статус Свободен

О бизнес-центре

Класс B
Этажность 8
Лифты Нет
Общая площадь 14 381 м²
Паркинг Наземный
Вентиляция приточно-вытяжная
Кондиционирование центральное
Телекоммуникации Интернет/Телефония

Расположение

Подробная презентацию по предложению

Собираете информацию? Получите подробную презентацию в удобном формате, чтобы обсудить вариант с коллегами или переслать руководству!

Похожие предложения в других зданиях

БЕЗ КОМИССИИ ID: 1322708 Рейтинг6.8 КлассB

Москва, Старокалужское шоссе, 62

Воронцовская → 266 м
~ 3 мин
Арендная плата в месяц 105 001 ₽ 24 200 ₽/м² в год С учётом НДС
Характеристики 52 м² 3 этаж Готово к въезду
Преимущества
  • Класс B
  • Пешком от метро
  • Кондиционирование и вентиляция
  • Свой паркинг
  • Несколько провайдеров связи
  • Развитая инфраструктура

Предлагаем в долгосрочную аренду офисное помещение класса B общей площадью 52 кв. метров в бизнес-центре "Vallex"... подробнее

Презентация по предложению

Собираете информацию? Получите подробную презентацию в удобном формате!

БЕЗ КОМИССИИ ID: 1326522 Рейтинг8.5 КлассB+

Москва, улица Обручева, 23 к3

Калужская → 766 м
~ 8 мин
Арендная плата в месяц 114 750 ₽ 27 000 ₽/м² в год С учётом НДС
Характеристики 51 м² -1 этаж Готово к въезду
Преимущества
  • Класс B+
  • Пешком от метро
  • Кондиционирование и вентиляция
  • Свой паркинг
  • Несколько провайдеров связи
  • Развитая инфраструктура

Сдается в прямую аренду офис класса B+ площадью 51 кв.м в бизнес-центре "Газфилд"... подробнее

Презентация по предложению

Собираете информацию? Получите подробную презентацию в удобном формате!

БЕЗ КОМИССИИ ID: 1329678 Рейтинг6.8 КлассB

Москва, Научный проезд, 8 с1

Калужская → 689 м
~ 7 мин
Арендная плата в месяц 112 458 ₽ 27 000 ₽/м² в год Упрощённая система налогообложения
Характеристики 50 м² 4 этаж Готово к въезду
Преимущества
  • Класс B
  • Пешком от метро
  • Кондиционирование и вентиляция
  • Свой паркинг
  • Несколько провайдеров связи
  • Развитая инфраструктура

Предлагается в долгосрочную прямую аренду помещение под офис класса B площадью 50 квадр. метров в бизнес-центре "На Научном"... подробнее

Презентация по предложению

Собираете информацию? Получите подробную презентацию в удобном формате!

БЕЗ КОМИССИИ ID: 1327825 Рейтинг6.8 КлассB

Москва, Научный проезд, 8 с1

Калужская → 689 м
~ 7 мин
Арендная плата в месяц 93 458 ₽ 22 000 ₽/м² в год Упрощённая система налогообложения
Характеристики 51 м² 2 этаж Готово к въезду
Преимущества
  • Класс B
  • Пешком от метро
  • Кондиционирование и вентиляция
  • Свой паркинг
  • Несколько провайдеров связи
  • Развитая инфраструктура

Предлагается в прямую аренду помещение под офис класса B общей площадью 51 квадр. метров в бизнес-центре "На Научном"... подробнее

Презентация по предложению

Собираете информацию? Получите подробную презентацию в удобном формате!

БЕЗ КОМИССИИ ID: 1329827 Рейтинг5.3 КлассB

Москва, Профсоюзная улица, 45

Новые Черемушки → 388 м
~ 4 мин
Арендная плата в месяц 126 000 ₽ 27 000 ₽/м² в год Упрощённая система налогообложения
Характеристики 56 м² 3 этаж Готово к въезду
Преимущества
  • Класс B
  • Пешком от метро
  • Развитая инфраструктура

Сдается в долгосрочную аренду офисное помещение класса B площадью 56 кв.м в бизнес-центре... подробнее

Презентация по предложению

Собираете информацию? Получите подробную презентацию в удобном формате!

Посмотреть все похожие предложения
Отнеситесь рационально к процессу поиска нового офиса!

Просто ответьте на 3 вопроса, и наши специалисты сами предложат оптимальные варианты под ваш бюджет