8.2

Виртуальный тур

Смотреть все фото
БЕЗ КОМИССИИ ID: 1326512 Рейтинг8.3 КлассB+
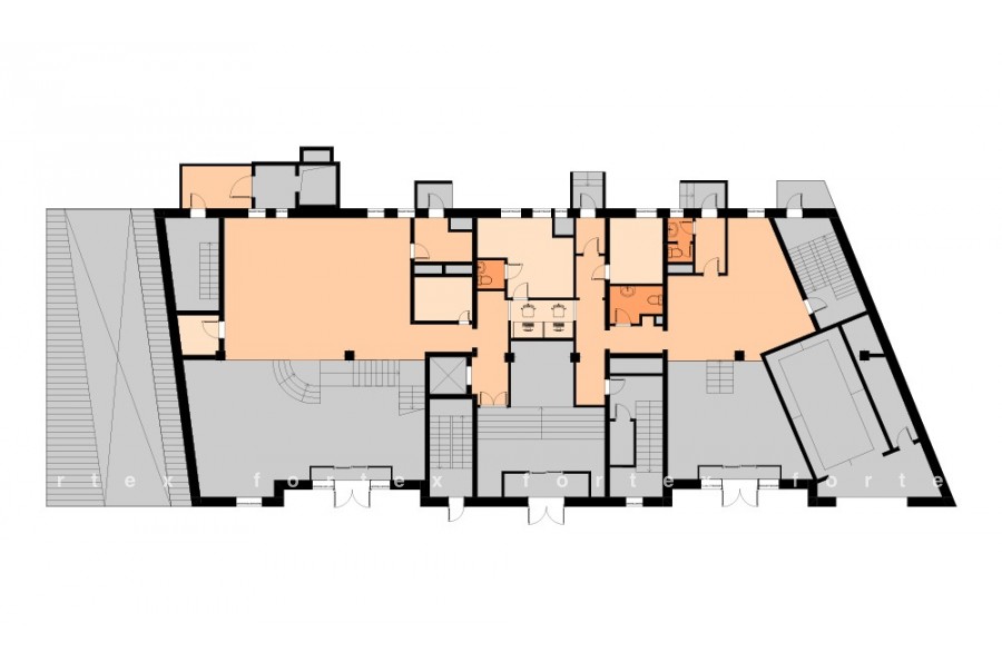
Бизнес-центр «Земляной 8»

Аренда офиса 1972 м²

Москва, улица Земляной Вал, 8

Курская → 537 м
~ 5 мин
Арендная плата в месяц 14 880 100 ₽ 90 500 ₽/м² в год С учётом НДС

Презентация по предложению

Собираете информацию? Получите подробную презентацию в удобном формате!

Площадь 1 972 м²
Состояние Готово к въезду
Планировка Смешанная
Этаж 1 - 7

Описание

Преимущества
  • Класс B+
  • Пешком от метро
  • Кондиционирование и вентиляция
Предлагаем в аренду комфортабельный сервисный офис на 372 рабочих места в бизнес-центре.

Сервисный офис - это современное офисное решение. Высококлассная дизайнерская отделка, полностью укомплектованные рабочие места, мягкие зоны отдыха, переговорные комнаты - это готовый к работе офис. Ежедневная уборка, обеспечение расходными материалами, включая кухни и санузлы, любая АХО-поддержка - это сервис, который уже включен в стоимость.

Услуги, включенные в арендную плату:
- Качественная мебель для комфортной работы
- Бронирование переговорных комнат
- Печать, IT-услуги и техническое обслуживание офиса
- Зоны отдыха, чай, кофе, вода
- Пополнение расходных материалов
- Ежедневная уборка офиса
- Высокоскоростной интернет

Офис класса B+:
- Офис с отделкой, полностью готов к аренде
- Вентиляция: Приточно-вытяжная вентиляция
- Кондиционирование: центральное

О бизнес-центре :
Москва, ЦАО, улица Земляной Вал, 8

Удобное расположение в пределах Садового кольца:
- Возможность аренды парковочных мест.
- Ближайшее метро: от метро "Курская" всего 7 мин пешком

Возможность заключения контракта в соответствии с 44ФЗ по госзакупкам.

Если данное предложение подходит Вашему запросу:

1. Мы отправим Вам подробную презентацию с планировкой и фотографиями в течение 10 минут после звонка, чтобы Вы могли поделиться информацией с руководством или с коллегами.
2. Мы готовы ответить на любые Ваши вопросы о помещении и коммерческих условиях аренды.
3.

Звоните нам в любое время. По будням мы сможем ответить на Ваши вопросы до 19:00. В выходные или вечернее время мы передадим Ваш контакт нашему менеджеру по аренде.

Коммерческие условия

Арендная плата 14 880 060 ₽
Ставка арендной платы 90 500 ₽ м²/год
Эксплуатационные расходы Включены в ставку
Налоги С учётом НДС
Тип договора Субаренда
Срок договора от 11 месяцев
Размер платежей 1 месяц
Обеспечительный платеж 2 месяц
Статус Свободен

О бизнес-центре

Класс B+
Этажность 7
Лифты Есть
Общая площадь 2 980 м²
Год постройки 2010
Паркинг Наземный и подземный
Вентиляция приточно-вытяжная
Кондиционирование центральное
Телекоммуникации Интернет/Телефония

Расположение

Подробная презентацию по предложению

Собираете информацию? Получите подробную презентацию в удобном формате, чтобы обсудить вариант с коллегами или переслать руководству!

Похожие предложения в других зданиях

БЕЗ КОМИССИИ ID: 1307630 Рейтинг6.6 КлассB

Москва, Мясницкая улица, 40 с1

Чистые пруды → 336 м
~ 3 мин
Арендная плата в месяц 14 440 050 ₽ 96 300 ₽/м² в год Упрощённая система налогообложения
Характеристики 1 800 м² 1 - 3 этаж Готово к въезду
Преимущества
  • Класс B
  • Пешком от метро
  • Кондиционирование и вентиляция

Сдается в аренду офисное здание класса B площадью 1800 квадратных метров. .. подробнее

Презентация по предложению

Собираете информацию? Получите подробную презентацию в удобном формате!

БЕЗ КОМИССИИ ID: 1321068 Рейтинг8.7 КлассА

Москва, Подкопаевский переулок, 4

Китай-город → 621 м
~ 6 мин
Арендная плата в месяц 15 958 750 ₽ 85 000 ₽/м² в год С учётом НДС
Характеристики 2 253 м² 1 - 4 этаж Готово к въезду
Преимущества
  • Класс А
  • Пешком от метро
  • Кондиционирование и вентиляция
  • Свой паркинг
  • Несколько провайдеров связи

Сдается в долгосрочную аренду офисное помещение класса А площадью 2253 кв.м в бизнес-центре "Ноев Ковчег"... подробнее

Презентация по предложению

Собираете информацию? Получите подробную презентацию в удобном формате!

БЕЗ КОМИССИИ ID: 1380055 Рейтинг8.9 КлассА

Москва, улица Станиславского, 21 с1

Таганская → 932 м
~ 9 мин
Арендная плата в месяц 18 300 189 ₽ 111 800 ₽/м² в год С учётом НДС
Характеристики 1 965 м² 5 этаж Готово к въезду
Преимущества
  • Класс А
  • Пешком от метро
  • Кондиционирование и вентиляция
  • Свой паркинг
  • Несколько провайдеров связи

Сдается в аренду комфортабельный сервисный офис на 246 рабочих мест в недавно отреконструированном бизнес-центре "Фабрика Станиславского"... подробнее

Презентация по предложению

Собираете информацию? Получите подробную презентацию в удобном формате!

БЕЗ КОМИССИИ ID: 254307 Рейтинг9.1 КлассА

Москва, Малая Сухаревская площадь, 12

Сухаревская → 97 м
~ 1 мин
Арендная плата в месяц 15 860 000 ₽ 91 500 ₽/м² в год С учётом НДС
Характеристики 2 080 м² 4 - 5 этаж Готово к въезду
Преимущества
  • Класс А
  • Пешком от метро
  • Кондиционирование и вентиляция
  • Свой паркинг
  • Развитая инфраструктура

Собственник сдает в долгосрочную аренду помещение под офис класса А площадью 2080 кв. метров в бизнес-центре "Садовая Галерея"... подробнее

Презентация по предложению

Собираете информацию? Получите подробную презентацию в удобном формате!

БЕЗ КОМИССИИ ID: 300813 Рейтинг9.1 КлассА

Москва, Малая Сухаревская площадь, 12

Сухаревская → 97 м
~ 1 мин
Арендная плата в месяц 13 298 000 ₽ 91 500 ₽/м² в год С учётом НДС
Характеристики 1 744 м² 2 - 3 этаж Под отделку
Преимущества
  • Класс А
  • Пешком от метро
  • Кондиционирование и вентиляция
  • Свой паркинг
  • Развитая инфраструктура

Предлагается в долгосрочную прямую аренду офисный блок класса А общей площадью 1744 кв.м в бизнес-центре "Садовая Галерея"... подробнее

Презентация по предложению

Собираете информацию? Получите подробную презентацию в удобном формате!

Посмотреть все похожие предложения
Отнеситесь рационально к процессу поиска нового офиса!

Просто ответьте на 3 вопроса, и наши специалисты сами предложат оптимальные варианты под ваш бюджет

.