8.2
Смотреть все фото
БЕЗ КОМИССИИ ID: 1127547 Рейтинг7.8 КлассА

Москва, 1-й Голутвинский переулок, 6

Полянка → 684 м
~ 7 мин
Арендная плата в месяц 2 379 000 ₽ 39 000 ₽/м² в год С учётом НДС

Презентация по предложению

Собираете информацию? Получите подробную презентацию в удобном формате!

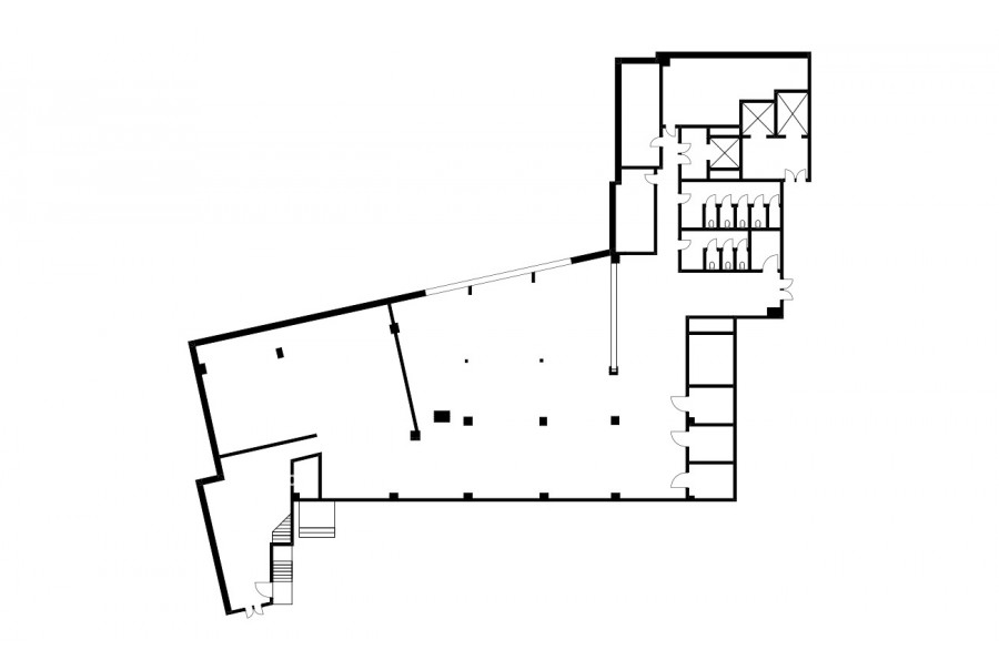
Площадь 732 м²
Состояние Готово к въезду
Планировка Смешанная
Этаж 9

Описание

Преимущества
  • Класс А
  • Пешком от метро
  • Кондиционирование и вентиляция
  • Свой паркинг
  • Несколько провайдеров связи
  • Развитая инфраструктура
Предлагается в долгосрочную прямую аренду офис класса А общей площадью 732 кв.м в бизнес-центре.

Москва, ЦАО, 1-й Голутвинский переулок, 6

Удобное расположение в пределах Садового кольца:
- Возможность аренды парковочных мест.
- Ближайшее метро: от метро "Полянка" всего 10 мин пешком

Офис класса А:
- Помещение готово к въезду
- Вентиляция: Приточно-вытяжная вентиляция
- Кондиционирование: центральное
- Круглосуточная охрана и видеонаблюдение
- Развитая инфраструктура внутри здания

Возможность заключения контракта в соответствии с 44ФЗ по госзакупкам.

Если данное предложение подходит Вашему запросу:

1. Мы подготовили презентацию с информацией о помещении, фотографиями и планировкой, чтобы Вы могли поделиться ей с коллегами или руководством. Попросите об этом нашего менеджера по телефону в объявлении.
2. Мы готовы ответить на любые Ваши вопросы о помещении и коммерческих условиях аренды.
3. Покажем помещение в удобное для Вас время с менеджером в здании, при необходимости подготовим виртуальный тур.

Вы можете позвонить нам в любое время. Мы ответим на Ваши вопросы по будням до 19:00, а поздно вечером или в выходные сможем передать Ваш контакт нашему менеджеру.

Коммерческие условия

Арендная плата 2 902 380 ₽
Ставка арендной платы 39 000 ₽ м²/год
Эксплуатационные расходы Включены в ставку
Налоги С учётом НДС
Тип договора Прямая аренда
Срок договора Долгосрочный
Размер платежей 3 месяц
Обеспечительный платеж 3 месяц
Статус Сдан

О бизнес-центре

Класс А
Этажность 9
Лифты Есть
Общая площадь 18 500 м²
Год постройки 2001
Паркинг Наземный крытый
Вентиляция приточно-вытяжная
Кондиционирование центральное
Телекоммуникации Интернет/Телефония

Расположение

Подробная презентацию по предложению

Собираете информацию? Получите подробную презентацию в удобном формате, чтобы обсудить вариант с коллегами или переслать руководству!

Похожие предложения в других зданиях

БЕЗ КОМИССИИ ID: 1298817 Рейтинг7.8 КлассB

Москва, улица Большая Якиманка, 18

Полянка → 515 м
~ 5 мин
Арендная плата в месяц 2 389 275 ₽ 38 800 ₽/м² в год С учётом НДС
Характеристики 738 м² 6 этаж Готово к въезду
Преимущества
  • Класс B
  • Пешком от метро
  • Кондиционирование и вентиляция
  • Свой паркинг

Предлагаем в долгосрочную аренду офисное помещение класса B площадью 738 квадр. метров в бизнес-центре... подробнее

>

Виртуальный тур

Презентация по предложению

Собираете информацию? Получите подробную презентацию в удобном формате!

БЕЗ КОМИССИИ ID: 1373448 Рейтинг7.1 КлассB

Москва, Берсеневская набережная, 6 с1

Полянка → 1.01 км
~ 10 мин
Арендная плата в месяц 2 482 813 ₽ 43 800 ₽/м² в год С учётом НДС
Характеристики 681 м² 1 этаж Готово к въезду
Преимущества
  • Класс B
  • Пешком от метро
  • Кондиционирование и вентиляция
  • Свой паркинг

Предлагаем в долгосрочную аренду офисное помещение класса B общей площадью 681 квадр. метров в бизнес-центре "Красный Октябрь"... подробнее

Презентация по предложению

Собираете информацию? Получите подробную презентацию в удобном формате!

БЕЗ КОМИССИИ ID: 1266972 Рейтинг7.1 КлассB

Москва, Берсеневская набережная, 6 с1

Полянка → 1.01 км
~ 10 мин
Арендная плата в месяц 2 310 000 ₽ 39 600 ₽/м² в год С учётом НДС
Характеристики 700 м² 4 этаж Готово к въезду
Преимущества
  • Класс B
  • Пешком от метро
  • Кондиционирование и вентиляция
  • Свой паркинг

Собственник сдает в прямую аренду офис класса B общей площадью 700 кв. метров в бизнес-центре "Красный Октябрь"... подробнее

>

Виртуальный тур

Презентация по предложению

Собираете информацию? Получите подробную презентацию в удобном формате!

БЕЗ КОМИССИИ ID: 1322448 Рейтинг7.1 КлассB

Москва, Берсеневская набережная, 6 с1

Полянка → 1.01 км
~ 10 мин
Арендная плата в месяц 2 001 517 ₽ 36 200 ₽/м² в год С учётом НДС
Характеристики 664 м² 4 этаж Готово к въезду
Преимущества
  • Класс B
  • Пешком от метро
  • Кондиционирование и вентиляция
  • Свой паркинг

Предлагаем в прямую аренду офис класса B общей площадью 664 кв. метров в бизнес-центре "Красный Октябрь"... подробнее

Презентация по предложению

Собираете информацию? Получите подробную презентацию в удобном формате!

БЕЗ КОМИССИИ ID: 1243752 Рейтинг7.1 КлассB

Москва, Берсеневская набережная, 6 с1

Полянка → 1.01 км
~ 10 мин
Арендная плата в месяц 1 875 500 ₽ 34 100 ₽/м² в год С учётом НДС
Характеристики 660 м² 2 этаж Готово к въезду
Преимущества
  • Класс B
  • Пешком от метро
  • Кондиционирование и вентиляция
  • Свой паркинг

Сдаем в долгосрочную прямую аренду офисный блок класса B общей площадью 660 кв.м в бизнес-центре "Красный Октябрь"... подробнее

>

Виртуальный тур

Презентация по предложению

Собираете информацию? Получите подробную презентацию в удобном формате!

Посмотреть все похожие предложения
Отнеситесь рационально к процессу поиска нового офиса!

Просто ответьте на 3 вопроса, и наши специалисты сами предложат оптимальные варианты под ваш бюджет

.