8.2
Смотреть все фото
БЕЗ КОМИССИИ ID: 241001 Рейтинг7.3 КлассB

Москва, 1-я Тверская-Ямская улица, 16/23 с1

Маяковская → 270 м
~ 3 мин
Арендная плата в месяц 2 565 000 ₽ 32 400 ₽/м² в год С учётом НДС

Презентация по предложению

Собираете информацию? Получите подробную презентацию в удобном формате!

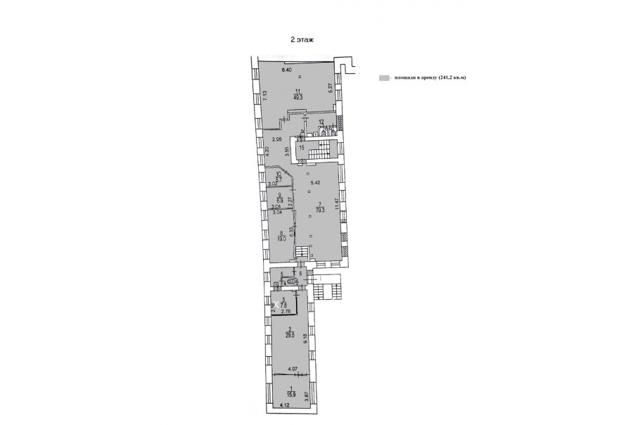
Площадь 950 м²
Состояние Готово к въезду
Планировка Кабинетная
Этаж 1 - 3

Описание

Преимущества
  • Класс B
  • Пешком от метро
  • Кондиционирование и вентиляция
Предлагаем в долгосрочную прямую аренду офисный блок класса B общей площадью 950 кв. метров в бизнес-центре.

Москва, ЦАО, 1-я Тверская-Ямская улица, 16/23 с1

Удобное расположение здания для всех видов транспорта:
- Автомобиль: близость транспортных магистралей, таких как Ленинградский проспект, Садовое Кольцо и других.
- Ближайшее метро: буквально 3 мин пешком от метро "Маяковская"

Офис класса B:
- Офис с отделкой, полностью готов к аренде
- Вентиляция: Приточно-вытяжная вентиляция
- Кондиционирование: сплит-системы

Возможность заключения контракта в соответствии с 44ФЗ по госзакупкам.

Если данное предложение подходит Вашему запросу:

1. Мы подготовили презентацию с информацией о помещении, фотографиями и планировкой, чтобы Вы могли поделиться ей с коллегами или руководством. Попросите об этом нашего менеджера по телефону в объявлении.
2. Ответим на любые Ваши вопросы, готовы обсуждать любые предложения по коммерческим условиям аренды помещения.
3. Оперативно организуем просмотр помещения, договоримся на любое удобное время, подготовим виртуальный тур.

Звоните нам в любое время. По будням мы сможем ответить на Ваши вопросы до 19:00. В выходные или вечернее время мы передадим Ваш контакт нашему менеджеру по аренде.

Коммерческие условия

Арендная плата 1 900 000 ₽
Ставка арендной платы 32 400 ₽ м²/год
Эксплуатационные расходы Включены в ставку
Налоги С учётом НДС
Тип договора Прямая аренда
Срок договора от 11 месяцев
Размер платежей 1 месяц
Обеспечительный платеж 2 месяц
Статус Сдан

О бизнес-центре

Класс B
Этажность 5
Лифты Есть
Общая площадь 0 м²
Паркинг Стихийный
Вентиляция приточно-вытяжная
Кондиционирование сплит-системы
Телекоммуникации Интернет/Телефония

Расположение

Подробная презентацию по предложению

Собираете информацию? Получите подробную презентацию в удобном формате, чтобы обсудить вариант с коллегами или переслать руководству!

Похожие предложения в других зданиях

БЕЗ КОМИССИИ ID: 59693 Рейтинг9.0 КлассB+

Москва, 3-я Тверская-Ямская улица, 39 с1

Маяковская → 444 м
~ 4 мин
Арендная плата в месяц 2 610 000 ₽ 29 000 ₽/м² в год С учётом НДС
Характеристики 1 080 м² 1 - 5 этаж Готово к въезду
Преимущества
  • Класс B+
  • Пешком от метро
  • Кондиционирование и вентиляция
  • Свой паркинг

Сдаем в долгосрочную прямую аренду офис класса B+ общей площадью 1080 кв.м в бизнес-центре... подробнее

Презентация по предложению

Собираете информацию? Получите подробную презентацию в удобном формате!

БЕЗ КОМИССИИ ID: 1300792 Рейтинг6.8 КлассB

Москва, 2-я Брестская улица, 5

Маяковская → 646 м
~ 6 мин
Арендная плата в месяц 2 700 438 ₽ 30 600 ₽/м² в год С учётом НДС
Характеристики 1 060 м² 6 - 10 этаж Готово к въезду
Преимущества
  • Класс B
  • Пешком от метро
  • Кондиционирование и вентиляция
  • Свой паркинг

Предлагаем в долгосрочную прямую аренду помещение под офис класса B общей площадью 1060 квадратных метров в бизнес-центре... подробнее

Презентация по предложению

Собираете информацию? Получите подробную презентацию в удобном формате!

БЕЗ КОМИССИИ ID: 1252482 Рейтинг8.4 КлассB+

Москва, Лесная улица, 6

Белорусская → 131 м
~ 1 мин
Арендная плата в месяц 2 916 667 ₽ 35 000 ₽/м² в год С учётом НДС
Характеристики 1 000 м² -2 - 7 этаж Готово к въезду
Преимущества
  • Класс B+
  • Пешком от метро
  • Кондиционирование и вентиляция
  • Свой паркинг
  • Развитая инфраструктура

Сдается в прямую аренду офисный блок класса B+ общей площадью 1000 квадратных метров в новом бизнес-центре "Лесная 6"... подробнее

Презентация по предложению

Собираете информацию? Получите подробную презентацию в удобном формате!

БЕЗ КОМИССИИ ID: 192833 Рейтинг8.6 КлассА

Москва, Лесная улица, 3

Белорусская → 113 м
~ 1 мин
Арендная плата в месяц 2 517 667 ₽ 28 000 ₽/м² в год С учётом НДС
Характеристики 1 079 м² 3 этаж Готово к въезду
Преимущества
  • Класс А
  • Пешком от метро
  • Кондиционирование и вентиляция
  • Свой паркинг
  • Несколько провайдеров связи
  • Развитая инфраструктура

Сдается в прямую аренду помещение под офис класса А общей площадью 1079 кв. метров в бизнес-центре... подробнее

Презентация по предложению

Собираете информацию? Получите подробную презентацию в удобном формате!

БЕЗ КОМИССИИ ID: 251141 Рейтинг7.7 КлассB

Москва, Благовещенский переулок, 3 с1

Маяковская → 292 м
~ 3 мин
Арендная плата в месяц 2 375 000 ₽ 30 000 ₽/м² в год С учётом НДС
Характеристики 950 м² 2 - 3 этаж Готово к въезду
Преимущества
  • Класс B
  • Пешком от метро
  • Кондиционирование и вентиляция
  • Свой паркинг

Предлагаем в долгосрочную прямую аренду офис класса B площадью 950 квадр. метров в историческом бизнес-центре... подробнее

Презентация по предложению

Собираете информацию? Получите подробную презентацию в удобном формате!

Посмотреть все похожие предложения
Отнеситесь рационально к процессу поиска нового офиса!

Просто ответьте на 3 вопроса, и наши специалисты сами предложат оптимальные варианты под ваш бюджет

.