8.2
Смотреть все фото
БЕЗ КОМИССИИ ID: 294356 Рейтинг4.5 КлассB

Москва, 2-й Ирининский переулок, 3

Бауманская → 842 м
~ 8 мин
Арендная плата в месяц 709 300 ₽ 16 000 ₽/м² в год С учётом НДС

Презентация по предложению

Собираете информацию? Получите подробную презентацию в удобном формате!

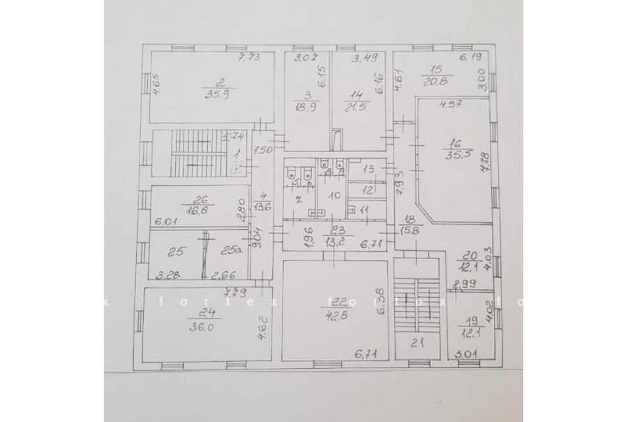
Площадь 532 м²
Состояние Готово к въезду
Планировка Кабинетная
Этаж 3 - 4

Описание

Преимущества
  • Класс B
  • Пешком от метро
Сдаем в долгосрочную аренду офисный блок класса B общей площадью 532 квадр. метров в бизнес-центре.

Москва, ЦАО, 2-й Ирининский переулок, 3

Удобная локация здания:
- Автомобиль: близость транспортных магистралей, таких как Третье Транспортное Кольцо, Русаковская улица, улица Стромынка и других.
- Ближайшее метро: от метро "Бауманская" всего 11 мин пешком

Офис класса B:
- Помещение с отделкой, готово к въезду


Что еще можно узнать о предложении:

1. Мы отправим Вам подробную презентацию с планировкой и фотографиями в течение 10 минут после звонка, чтобы Вы могли поделиться информацией с руководством или с коллегами.
2. Мы готовы ответить на любые Ваши вопросы о помещении и коммерческих условиях аренды.
3. Проводим показы ежедневно, договоримся на удобное для Вас время. Можем организовать виртуальный тур по офисному блоку.

Звоните нам в любое время. По будням мы сможем ответить на Ваши вопросы до 19:00. В выходные или вечернее время мы передадим Ваш контакт нашему менеджеру по аренде.

Коммерческие условия

Арендная плата 709 330 ₽
Ставка арендной платы 16 000 ₽ м²/год
Эксплуатационные расходы Включены в ставку
Налоги С учётом НДС
Тип договора Прямая аренда
Срок договора от 11 месяцев
Размер платежей 1 месяц
Обеспечительный платеж 1 месяц
Статус Сдан

О бизнес-центре

Класс B
Этажность 4
Лифты Нет
Общая площадь 0 м²
Паркинг Наземный
Вентиляция приточно-вытяжная
Кондиционирование сплит-системы
Телекоммуникации Интернет/Телефония

Расположение

Подробная презентацию по предложению

Собираете информацию? Получите подробную презентацию в удобном формате, чтобы обсудить вариант с коллегами или переслать руководству!

Похожие предложения в других зданиях

БЕЗ КОМИССИИ ID: 278322 Рейтинг7.2 КлассB

Москва, Большая Почтовая улица, 43-45 с3

Электрозаводская → 1.1 км
~ 11 мин
Арендная плата в месяц 900 000 ₽ 18 000 ₽/м² в год С учётом НДС
Характеристики 600 м² 2 этаж Под отделку
Преимущества
  • Класс B
  • Пешком от метро
  • Кондиционирование и вентиляция
  • Свой паркинг

Предлагаем в прямую аренду офис класса B площадью 600 кв. метров в бизнес-центре... подробнее

Презентация по предложению

Собираете информацию? Получите подробную презентацию в удобном формате!

БЕЗ КОМИССИИ ID: 16303 Рейтинг6.6 КлассB

Москва, улица Фридриха Энгельса, 75 с3

Электрозаводская → 1.2 км
~ 12 мин
Арендная плата в месяц 697 500 ₽ 15 000 ₽/м² в год С учётом НДС
Характеристики 558 м² 1 этаж Готово к въезду
Преимущества
  • Класс B
  • Пешком от метро
  • Кондиционирование и вентиляция
  • Свой паркинг
  • Несколько провайдеров связи

Предлагается в долгосрочную прямую аренду офисный блок класса B общей площадью 558 кв.м в бизнес-центре "Бакунинский двор"... подробнее

Презентация по предложению

Собираете информацию? Получите подробную презентацию в удобном формате!

БЕЗ КОМИССИИ ID: 205724 Рейтинг6.0 КлассB

Москва, улица Фридриха Энгельса, 75 с21

Электрозаводская → 1.07 км
~ 11 мин
Арендная плата в месяц 625 000 ₽ 15 000 ₽/м² в год С учётом НДС
Характеристики 500 м² 9 этаж Готово к въезду
Преимущества
  • Класс B
  • Пешком от метро
  • Кондиционирование и вентиляция
  • Свой паркинг
  • Развитая инфраструктура

Сдается в долгосрочную прямую аренду офисный блок класса B общей площадью 500 квадратных метров в бизнес-центре... подробнее

Презентация по предложению

Собираете информацию? Получите подробную презентацию в удобном формате!

БЕЗ КОМИССИИ ID: 448802 Рейтинг7.7 КлассB

Москва, Переведеновский переулок, 13 с4

Электрозаводская → 1.21 км
~ 12 мин
Арендная плата в месяц 632 500 ₽ 16 500 ₽/м² в год С учётом НДС
Характеристики 460 м² -1 - 1 этаж Готово к въезду
Преимущества
  • Класс B
  • Пешком от метро
  • Кондиционирование и вентиляция
  • Свой паркинг

Предлагается в прямую аренду офисный блок класса B общей площадью 460 кв.м в бизнес-центре... подробнее

Презентация по предложению

Собираете информацию? Получите подробную презентацию в удобном формате!

БЕЗ КОМИССИИ ID: 1283339 Рейтинг5.7 КлассB

Москва, Переведеновский переулок, 13 с30

Электрозаводская → 1.27 км
~ 13 мин
Арендная плата в месяц 550 007 ₽ 14 300 ₽/м² в год С учётом НДС
Характеристики 460 м² 1 - 2 этаж Готово к въезду
Преимущества
  • Класс B
  • Пешком от метро
  • Кондиционирование и вентиляция
  • Свой паркинг

Предлагаем в долгосрочную аренду офисное здание класса B общей площадью 460 кв.м. .. подробнее

Презентация по предложению

Собираете информацию? Получите подробную презентацию в удобном формате!

Посмотреть все похожие предложения
Отнеситесь рационально к процессу поиска нового офиса!

Просто ответьте на 3 вопроса, и наши специалисты сами предложат оптимальные варианты под ваш бюджет

.