8.2
Смотреть все фото
БЕЗ КОМИССИИ ID: 1378583 Рейтинг6.1 КлассB

Москва, 2-й Верхний Михайловский проезд, 9 с2

Ленинский проспект → 1.29 км
~ 13 мин
Арендная плата в месяц 518 600 ₽ 32 200 ₽/м² в год С учётом НДС

Презентация по предложению

Собираете информацию? Получите подробную презентацию в удобном формате!

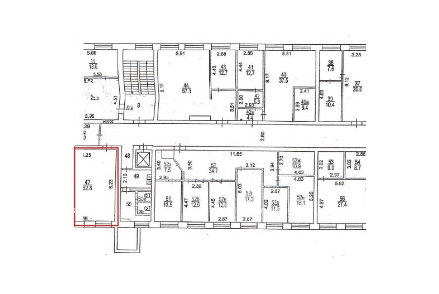
Площадь 193 м²
Состояние Готово к въезду
Планировка Смешанная
Этаж 3

Описание

Преимущества
  • Класс B
  • Пешком от метро
  • Кондиционирование и вентиляция
  • Свой паркинг
  • Развитая инфраструктура
Предлагается в долгосрочную аренду офисный блок класса B общей площадью 193 кв.м в недавно отреконструированном бизнес-центре.

Москва, ЮАО, 2-й Верхний Михайловский проезд, 9 с2

Удобная локация здания:
- Автомобиль: близость транспортных магистралей, таких как Ленинский проспект, Третье Транспортное Кольцо и других.
- Возможность аренды парковочных мест.
- Ближайшее метро: от метро "Ленинский проспект" всего 14 мин пешком

Офис класса B:
- Помещение с отделкой, готово к въезду
- Кондиционирование: сплит-системы
- Круглосуточная охрана и видеонаблюдение
- Развитая инфраструктура внутри здания


Что еще можно узнать о предложении:

1. Мы подготовили презентацию с информацией о помещении, фотографиями и планировкой, чтобы Вы могли поделиться ей с коллегами или руководством. Попросите об этом нашего менеджера по телефону в объявлении.
2. Ответим на любые Ваши вопросы, готовы обсуждать любые предложения по коммерческим условиям аренды помещения.
3. Оперативно организуем просмотр помещения, договоримся на любое удобное время, подготовим виртуальный тур.

Вы можете позвонить нам в любое время. Мы ответим на Ваши вопросы по будням до 19:00, а поздно вечером или в выходные зафиксируем Ваш контакт и перезвоним в рабочее время.

Коммерческие условия

Арендная плата 518 580 ₽
Ставка арендной платы 32 200 ₽ м²/год
Эксплуатационные расходы Включены в ставку
Налоги С учётом НДС
Тип договора Прямая аренда
Срок договора от 11 месяцев
Размер платежей 1 месяц
Обеспечительный платеж 1 месяц
Статус Свободен

О бизнес-центре

Класс B
Этажность 6
Лифты Есть
Общая площадь 9 800 м²
Год постройки 1978
Паркинг Наземный
Вентиляция естественная
Кондиционирование сплит-системы
Телекоммуникации Интернет/Телефония

Расположение

Подробная презентацию по предложению

Собираете информацию? Получите подробную презентацию в удобном формате, чтобы обсудить вариант с коллегами или переслать руководству!

Похожие предложения в других зданиях

БЕЗ КОМИССИИ ID: 1378584 Рейтинг7.4 КлассB

Москва, улица Орджоникидзе, 11 с1

Ленинский проспект → 712 м
~ 7 мин
Арендная плата в месяц 489 580 ₽ 30 100 ₽/м² в год С учётом НДС
Характеристики 195 м² 3 - 5 этаж Готово к въезду
Преимущества
  • Класс B
  • Пешком от метро
  • Кондиционирование и вентиляция
  • Свой паркинг
  • Несколько провайдеров связи
  • Развитая инфраструктура

Предлагается в прямую аренду офис класса B площадью 497 квадратных метров в бизнес-центре... подробнее

Презентация по предложению

Собираете информацию? Получите подробную презентацию в удобном формате!

БЕЗ КОМИССИИ ID: 1380887 Рейтинг7.4 КлассB

Москва, улица Орджоникидзе, 11 с1

Ленинский проспект → 712 м
~ 7 мин
Арендная плата в месяц 455 000 ₽ 28 000 ₽/м² в год С учётом НДС
Характеристики 195 м² 1 - 2 этаж Готово к въезду
Преимущества
  • Класс B
  • Пешком от метро
  • Кондиционирование и вентиляция
  • Свой паркинг
  • Несколько провайдеров связи
  • Развитая инфраструктура

Предлагаем в долгосрочную аренду офисное помещение класса B общей площадью 195 кв.м в бизнес-центре... подробнее

Презентация по предложению

Собираете информацию? Получите подробную презентацию в удобном формате!

ВОЗМОЖНО ОСВОБОЖДЕНИЕ ID: 1309180 Рейтинг6.7 КлассB

Москва, улица Вавилова, 1

Площадь Гагарина → 533 м
~ 5 мин
Арендная плата в месяц 538 125 ₽ 31 500 ₽/м² в год С учётом НДС
Характеристики 205 м² 2 этаж Готово к въезду
Преимущества
  • Класс B
  • Пешком от метро
  • Кондиционирование и вентиляция

Сдается в долгосрочную аренду офис класса B общей площадью 205 квадратных метров в бизнес-центре... подробнее

Презентация по предложению

Собираете информацию? Получите подробную презентацию в удобном формате!

БЕЗ КОМИССИИ ID: 1377475 Рейтинг8.1 КлассB+

Москва, улица Шухова, 14

Шаболовская → 559 м
~ 6 мин
Арендная плата в месяц 519 004 ₽ 35 000 ₽/м² в год С учётом НДС
Характеристики 178 м² -1 этаж Готово к въезду
Преимущества
  • Класс B+
  • Пешком от метро
  • Кондиционирование и вентиляция
  • Свой паркинг
  • Развитая инфраструктура

Сдается в долгосрочную прямую аренду офисное помещение класса B+ площадью 178 квадр. метров в историческом недавно отреконструированном бизнес-центре "Шухова Плаза"... подробнее

Презентация по предложению

Собираете информацию? Получите подробную презентацию в удобном формате!

БЕЗ КОМИССИИ ID: 1295790 Рейтинг8.4 КлассB+

Москва, Холодильный переулок, 3

Тульская → 261 м
~ 3 мин
Арендная плата в месяц 640 321 ₽ 35 200 ₽/м² в год С учётом НДС
Характеристики 218 м² 1 этаж Готово к въезду
Преимущества
  • Класс B+
  • Пешком от метро
  • Кондиционирование и вентиляция
  • Свой паркинг
  • Развитая инфраструктура

Собственник сдает в долгосрочную аренду помещение под офис класса B общей площадью 218 квадратных метров в бизнес-центре "Рябовская мануфактура"... подробнее

>

Виртуальный тур

Презентация по предложению

Собираете информацию? Получите подробную презентацию в удобном формате!

Посмотреть все похожие предложения
Отнеситесь рационально к процессу поиска нового офиса!

Просто ответьте на 3 вопроса, и наши специалисты сами предложат оптимальные варианты под ваш бюджет

.