8.2
Смотреть все фото
БЕЗ КОМИССИИ ID: 1080834 Рейтинг5.0 КлассB

Москва, 2-я Магистральная улица, 3 с1

Шелепиха → 1.27 км
~ 13 мин
Арендная плата в месяц 4 000 000 ₽ 20 000 ₽/м² в год С учётом НДС

Презентация по предложению

Собираете информацию? Получите подробную презентацию в удобном формате!

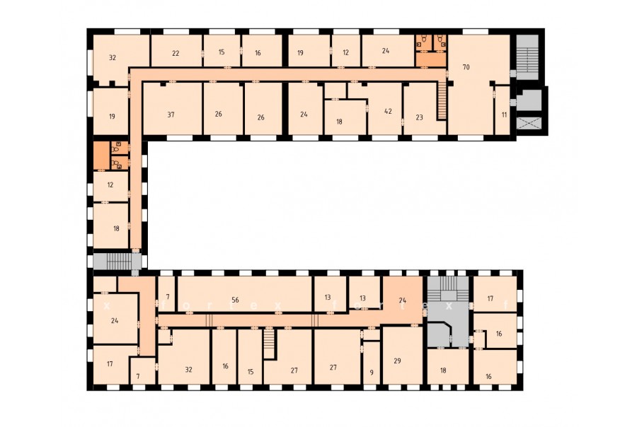
Площадь 2 400 м²
Состояние Готово к въезду
Планировка Кабинетная
Этаж 1 - 2

Описание

Преимущества
  • Класс B
  • Пешком от метро
  • Кондиционирование и вентиляция
  • Свой паркинг
Собственник сдает в долгосрочную аренду офисное помещение класса B общей площадью 2400 кв. метров в бизнес-центре.

Москва, ЦАО, 2-я Магистральная улица, 3 с1

Удобная локация здания:
- Автомобиль: близость транспортных магистралей, таких как Звенигородское шоссе, Третье Транспортное Кольцо и других.
- Возможность аренды парковочных мест.
- Ближайшее метро: от метро "Шелепиха" всего 7 мин транспортом

Офис класса B:
- Помещение с отделкой, готово к въезду
- Кондиционирование: центральное


Если предложение предварительно Вам подходит:

1. Мы подготовили презентацию с информацией о помещении, фотографиями и планировкой, чтобы Вы могли поделиться ей с коллегами или руководством. Попросите об этом нашего менеджера по телефону в объявлении.
2. Ответим на любые Ваши вопросы, готовы обсуждать любые предложения по коммерческим условиям аренды помещения.
3. Оперативно организуем просмотр помещения, договоримся на любое удобное время, подготовим виртуальный тур.

Звоните нам в любое время. По будням мы сможем ответить на Ваши вопросы до 19:00. В выходные или вечернее время мы передадим Ваш контакт нашему менеджеру по аренде.

Коммерческие условия

Арендная плата 4 000 000 ₽
Ставка арендной платы 20 000 ₽ м²/год
Эксплуатационные расходы Включены в ставку
Налоги С учётом НДС
Тип договора Прямая аренда
Срок договора от 11 месяцев
Размер платежей 1 месяц
Обеспечительный платеж 1 месяц
Статус Свободен

О бизнес-центре

Класс B
Этажность 2
Лифты Есть
Общая площадь 2 419 м²
Год постройки 1962
Паркинг Наземный
Вентиляция естественная
Кондиционирование центральное
Телекоммуникации Интернет/Телефония

Расположение

Подробная презентацию по предложению

Собираете информацию? Получите подробную презентацию в удобном формате, чтобы обсудить вариант с коллегами или переслать руководству!

Похожие предложения в других зданиях

БЕЗ КОМИССИИ ID: 16658 Рейтинг6.9 КлассB

Москва, 1-й Магистральный проезд, 11 с1

Шелепиха → 1.95 км
~ 19 мин
Арендная плата в месяц 4 918 333 ₽ 22 700 ₽/м² в год С учётом НДС
Характеристики 2 600 м² 4 этаж Готово к въезду
Преимущества
  • Класс B
  • Пешком от метро
  • Кондиционирование и вентиляция
  • Свой паркинг

Собственник сдает в прямую аренду офис класса B площадью 2600 кв.м в бизнес-центре "Интерьер"... подробнее

Презентация по предложению

Собираете информацию? Получите подробную презентацию в удобном формате!

БЕЗ КОМИССИИ ID: 147822 Рейтинг6.9 КлассB

Москва, 1-й Магистральный проезд, 11 с1

Шелепиха → 1.95 км
~ 19 мин
Арендная плата в месяц 4 084 108 ₽ 22 700 ₽/м² в год С учётом НДС
Характеристики 2 159 м² 1 - 3 этаж Готово к въезду
Преимущества
  • Класс B
  • Пешком от метро
  • Кондиционирование и вентиляция
  • Свой паркинг

Сдаем в долгосрочную прямую аренду офисное помещение класса B площадью 2159 кв. метров в бизнес-центре "Интерьер"... подробнее

Презентация по предложению

Собираете информацию? Получите подробную презентацию в удобном формате!

БЕЗ КОМИССИИ ID: 136805 Рейтинг8.3 КлассB+

Москва, 2-я Звенигородская улица, 13 с41

Улица 1905 года → 941 м
~ 9 мин
Арендная плата в месяц 4 802 000 ₽ 21 000 ₽/м² в год С учётом НДС
Характеристики 2 744 м² 3 - 5 этаж Готово к въезду
Преимущества
  • Класс B+
  • Пешком от метро
  • Кондиционирование и вентиляция
  • Свой паркинг
  • Несколько провайдеров связи

Собственник сдает в прямую аренду офисный блок класса B+ площадью 2744 кв. метров в бизнес-центре... подробнее

Презентация по предложению

Собираете информацию? Получите подробную презентацию в удобном формате!

БЕЗ КОМИССИИ ID: 1218108 Рейтинг6.5 КлассB

Москва, Мукомольный проезд, 2 с1

Деловой центр → 985 м
~ 10 мин
Арендная плата в месяц 4 562 800 ₽ 22 400 ₽/м² в год С учётом НДС
Характеристики 2 440 м² -1 - 4 этаж Отделка под арендатора
Преимущества
  • Класс B
  • Пешком от метро
  • Кондиционирование и вентиляция
  • Свой паркинг

Предлагаем в долгосрочную аренду офис класса B площадью 2440 квадр. метров в бизнес-центре... подробнее

Презентация по предложению

Собираете информацию? Получите подробную презентацию в удобном формате!

БЕЗ КОМИССИИ ID: 68697 Рейтинг8.5 КлассB

Москва, Большой Трёхгорный переулок, 11 с2

Улица 1905 года → 542 м
~ 5 мин
Арендная плата в месяц 3 750 000 ₽ 18 000 ₽/м² в год С учётом НДС
Характеристики 2 500 м² 3 - 5 этаж Под отделку
Преимущества
  • Класс B
  • Пешком от метро
  • Кондиционирование и вентиляция
  • Свой паркинг

Предлагается в прямую аренду офис класса B общей площадью 2500 кв. метров в недавно отреконструированном бизнес-центре... подробнее

Презентация по предложению

Собираете информацию? Получите подробную презентацию в удобном формате!

Посмотреть все похожие предложения
Отнеситесь рационально к процессу поиска нового офиса!

Просто ответьте на 3 вопроса, и наши специалисты сами предложат оптимальные варианты под ваш бюджет

.