8.2
Смотреть все фото
БЕЗ КОМИССИИ ID: 124448 Рейтинг7.4 КлассB

Москва, 2-я Магистральная улица, 9а с1

Шелепиха → 917 м
~ 9 мин
Арендная плата в месяц 1 875 000 ₽ 15 000 ₽/м² в год С учётом НДС

Презентация по предложению

Собираете информацию? Получите подробную презентацию в удобном формате!

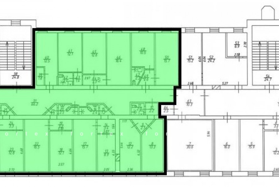
Площадь 1 500 м²
Состояние Под отделку
Планировка Открытая
Этаж 1

Описание

Преимущества
  • Класс B
  • Пешком от метро
  • Кондиционирование и вентиляция
  • Свой паркинг
Сдается в долгосрочную аренду офис класса B общей площадью 1500 кв. метров в бизнес-центре.

Москва, ЦАО, 2-я Магистральная улица, 9а с1

Удобная локация здания:
- Автомобиль: близость транспортных магистралей, таких как Звенигородское шоссе, Третье Транспортное Кольцо, Кутузовский проспект и других.
- Возможность аренды парковочных мест.
- Ближайшее метро: от метро "Шелепиха" всего 15 мин пешком

Офис класса B:
- Офис в состоянии shell & core
- Вентиляция: Приточно-вытяжная вентиляция
- Кондиционирование: центральное


Если данное предложение подходит Вашему запросу:

1. Мы отправим Вам подробную презентацию с планировкой и фотографиями в течение 10 минут после звонка, чтобы Вы могли поделиться информацией с руководством или с коллегами.
2. Ответим на любые Ваши вопросы, готовы обсуждать любые предложения по коммерческим условиям аренды помещения.
3. Оперативно организуем просмотр помещения, договоримся на любое удобное время, подготовим виртуальный тур.

Вы можете позвонить нам в любое время. Мы ответим на Ваши вопросы по будням до 19:00, а поздно вечером или в выходные сможем передать Ваш контакт нашему менеджеру.

Коммерческие условия

Арендная плата 1 875 000 ₽
Ставка арендной платы 15 000 ₽ м²/год
Эксплуатационные расходы Включены в ставку
Налоги С учётом НДС
Тип договора Прямая аренда
Срок договора от 11 месяцев
Размер платежей 1 месяц
Обеспечительный платеж 1 месяц
Статус Сдан

О бизнес-центре

Класс B
Этажность 2
Лифты Нет
Общая площадь 9 781 м²
Паркинг Наземный
Вентиляция приточно-вытяжная
Кондиционирование центральное
Телекоммуникации Интернет/Телефония

Расположение

Подробная презентацию по предложению

Собираете информацию? Получите подробную презентацию в удобном формате, чтобы обсудить вариант с коллегами или переслать руководству!

Похожие предложения в других зданиях

БЕЗ КОМИССИИ ID: 1288428 Рейтинг5.8 КлассB

Москва, улица Антонова-Овсеенко, 6 с1

Выставочная → 1.11 км
~ 11 мин
Арендная плата в месяц 1 764 000 ₽ 15 100 ₽/м² в год С учётом НДС
Характеристики 1 400 м² 4 - 5 этаж Готово к въезду
Преимущества
  • Класс B
  • Пешком от метро
  • Кондиционирование и вентиляция
  • Развитая инфраструктура

Предлагаем в долгосрочную прямую аренду офис класса B общей площадью 1400 квадр. метров в бизнес-центре... подробнее

Презентация по предложению

Собираете информацию? Получите подробную презентацию в удобном формате!

БЕЗ КОМИССИИ ID: 238399 Рейтинг6.7 КлассB

Москва, 2-я Магистральная улица, 8А с1

Шелепиха → 1.49 км
~ 15 мин
Арендная плата в месяц 1 575 383 ₽ 14 300 ₽/м² в год С учётом НДС
Характеристики 1 322 м² 1 - 2 этаж Готово к въезду
Преимущества
  • Класс B
  • Пешком от метро
  • Кондиционирование и вентиляция
  • Свой паркинг
  • Несколько провайдеров связи

Предлагаем в долгосрочную аренду офисный блок класса B площадью 1322 квадратных метров в бизнес-центре "Олимп"... подробнее

Презентация по предложению

Собираете информацию? Получите подробную презентацию в удобном формате!

БЕЗ КОМИССИИ ID: 1286515 Рейтинг4.9 КлассB

Москва, 2-й Хорошёвский проезд, 7А

Беговая → 880 м
~ 9 мин
Арендная плата в месяц 1 837 550 ₽ 17 200 ₽/м² в год С учётом НДС
Характеристики 1 285 м² 2 этаж Готово к въезду
Преимущества
  • Класс B
  • Пешком от метро
  • Кондиционирование и вентиляция
  • Свой паркинг
  • Несколько провайдеров связи
  • Развитая инфраструктура

Предлагается в долгосрочную прямую аренду офисное помещение класса B площадью 1285 кв. метров в бизнес-центре "Красная Пресня"... подробнее

Презентация по предложению

Собираете информацию? Получите подробную презентацию в удобном формате!

БЕЗ КОМИССИИ ID: 148858 Рейтинг5.9 КлассB

Москва, Кутузовский проспект, 36 с6

Парк Победы → 1.03 км
~ 10 мин
Арендная плата в месяц 2 000 000 ₽ 16 000 ₽/м² в год С учётом НДС
Характеристики 1 500 м² 6 этаж Готово к въезду
Преимущества
  • Класс B
  • Пешком от метро
  • Кондиционирование и вентиляция

Сдается в долгосрочную аренду офис класса B площадью 1500 квадратных метров в бизнес-центре... подробнее

Презентация по предложению

Собираете информацию? Получите подробную презентацию в удобном формате!

БЕЗ КОМИССИИ ID: 146191 Рейтинг7.0 КлассB

Москва, Кутузовский проспект, 36 с42

Кутузовская → 828 м
~ 8 мин
Арендная плата в месяц 2 321 000 ₽ 16 500 ₽/м² в год С учётом НДС
Характеристики 1 688 м² 2 - 3 этаж Готово к въезду
Преимущества
  • Класс B
  • Пешком от метро
  • Кондиционирование и вентиляция
  • Свой паркинг

Собственник сдает в долгосрочную прямую аренду помещение под офис класса B площадью 1688 кв.м в бизнес-центре... подробнее

Презентация по предложению

Собираете информацию? Получите подробную презентацию в удобном формате!

Посмотреть все похожие предложения
Отнеситесь рационально к процессу поиска нового офиса!

Просто ответьте на 3 вопроса, и наши специалисты сами предложат оптимальные варианты под ваш бюджет

.