8.2
Смотреть все фото
БЕЗ КОМИССИИ ID: 1375618 Рейтинг8.8 КлассB+

Москва, 2-я улица Машиностроения, 27 с6

Угрешская → 563 м
~ 6 мин
Арендная плата в месяц 388 400 ₽ 27 900 ₽/м² в год С учётом НДС

Презентация по предложению

Собираете информацию? Получите подробную презентацию в удобном формате!

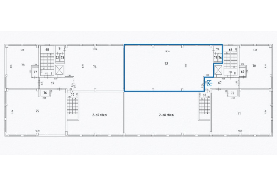
Площадь 167 м²
Состояние Готово к въезду
Планировка Кабинетная
Этаж 6

Описание

Преимущества
  • Класс B+
  • Пешком от метро
  • Свежая реконструкция
  • Кондиционирование и вентиляция
  • Свой паркинг
Предлагается в долгосрочную прямую аренду офисное помещение класса B+ площадью 167 квадратных метров в недавно отреконструированном бизнес-центре.

Москва, ЮВАО, 2-я улица Машиностроения, 27 с6

Удобное расположение здания для всех видов транспорта:
- Автомобиль: близость транспортных магистралей, таких как Третье Транспортное Кольцо, Волгоградский проспект и других.
- Возможность аренды парковочных мест.
- Ближайшее метро: от метро "Угрешская" всего 6 мин пешком

Офис класса B+:
- Офис с отделкой, полностью готов к аренде
- Вентиляция: Приточно-вытяжная вентиляция
- Кондиционирование: центральное


Если данное предложение подходит Вашему запросу:

1. Мы отправим Вам подробную презентацию с планировкой и фотографиями в течение 10 минут после звонка, чтобы Вы могли поделиться информацией с руководством или с коллегами.
2. Задайте любые вопросы менеджеру по телефону, готовы обсуждать любые предложения по финансовым условиям договора аренды.
3. Покажем помещение в удобное для Вас время с менеджером в здании, при необходимости подготовим виртуальный тур.

Звоните нам в любое время. По будням мы сможем ответить на Ваши вопросы до 19:00. В выходные или вечернее время мы передадим Ваш контакт нашему менеджеру по аренде.

Коммерческие условия

Арендная плата 388 420 ₽
Ставка арендной платы 25 200 ₽ м²/год
Эксплуатационные расходы 2 760 ₽
Налоги С учётом НДС
Тип договора Прямая аренда
Срок договора от 11 месяцев
Размер платежей 1 месяц
Обеспечительный платеж 1 месяц
Статус Свободен

О бизнес-центре

Класс B+
Этажность 6
Лифты Есть
Общая площадь 5 267 м²
Год постройки 1970
Паркинг Наземный
Вентиляция приточно-вытяжная
Кондиционирование центральное
Телекоммуникации Интернет/Телефония

Расположение

Подробная презентацию по предложению

Собираете информацию? Получите подробную презентацию в удобном формате, чтобы обсудить вариант с коллегами или переслать руководству!

Похожие предложения в других зданиях

БЕЗ КОМИССИИ ID: 1378205 Рейтинг8.6 КлассB+

Москва, улица Ленинская Слобода, 19

Автозаводская → 494 м
~ 5 мин
Арендная плата в месяц 337 500 ₽ 25 000 ₽/м² в год Упрощённая система налогообложения
Характеристики 162 м² 5 этаж Готово к въезду
Преимущества
  • Класс B+
  • Пешком от метро
  • Кондиционирование и вентиляция
  • Свой паркинг
  • Несколько провайдеров связи
  • Развитая инфраструктура

Предлагается в долгосрочную аренду помещение под офис класса B+ площадью 162 квадр. метров в бизнес-центре "Омега Плаза"... подробнее

Презентация по предложению

Собираете информацию? Получите подробную презентацию в удобном формате!

Посмотреть все похожие предложения
Отнеситесь рационально к процессу поиска нового офиса!

Просто ответьте на 3 вопроса, и наши специалисты сами предложат оптимальные варианты под ваш бюджет

.