8.2
Смотреть все фото
БЕЗ КОМИССИИ ID: 1041790 Рейтинг8.8 КлассB+

Москва, 2-я улица Машиностроения, 27 с6

Угрешская → 563 м
~ 6 мин
Арендная плата в месяц 979 700 ₽ 17 600 ₽/м² в год С учётом НДС

Презентация по предложению

Собираете информацию? Получите подробную презентацию в удобном формате!

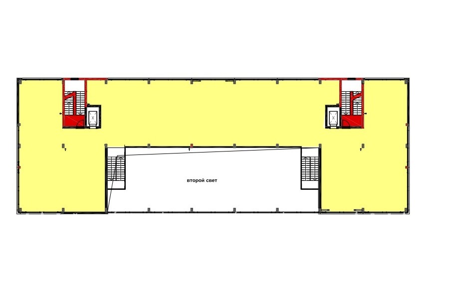
Площадь 668 м²
Состояние Под отделку
Планировка Открытая
Этаж 6

Описание

Преимущества
  • Класс B+
  • Пешком от метро
  • Свежая реконструкция
  • Кондиционирование и вентиляция
  • Свой паркинг
Предлагаем в долгосрочную прямую аренду офисное помещение класса B+ общей площадью 668 квадратных метров в бизнес-центре.

Москва, ЮВАО, 2-я улица Машиностроения, 27 с6

Удобное расположение здания для всех видов транспорта:
- Автомобиль: близость транспортных магистралей, таких как Третье Транспортное Кольцо, Волгоградский проспект и других.
- Ближайшее метро: от метро "Угрешская" всего 6 мин пешком

Офис класса B+:
- Офис в состоянии shell & core
- Вентиляция: Приточно-вытяжная вентиляция
- Кондиционирование: центральное


Что еще можно узнать о предложении:

1. Мы отправим Вам подробную презентацию с планировкой и фотографиями в течение 10 минут после звонка, чтобы Вы могли поделиться информацией с руководством или с коллегами.
2. Ответим на любые Ваши вопросы, готовы обсуждать любые предложения по коммерческим условиям аренды помещения.
3. Проводим показы ежедневно, договоримся на удобное для Вас время. Можем организовать виртуальный тур по офисному блоку.

Звоните нам в любое время. По будням мы сможем ответить на Ваши вопросы до 19:00. В выходные или вечернее время мы передадим Ваш контакт нашему менеджеру по аренде.

Коммерческие условия

Арендная плата 890 670 ₽
Ставка арендной платы 17 600 ₽ м²/год
Эксплуатационные расходы Включены в ставку
Налоги С учётом НДС
Тип договора Прямая аренда
Срок договора Долгосрочный
Размер платежей 1 месяц
Обеспечительный платеж 1 месяц
Статус Сдан

О бизнес-центре

Класс B+
Этажность 6
Лифты Есть
Общая площадь 5 267 м²
Год постройки 1970
Паркинг Наземный
Вентиляция приточно-вытяжная
Кондиционирование центральное
Телекоммуникации Интернет/Телефония

Расположение

Подробная презентацию по предложению

Собираете информацию? Получите подробную презентацию в удобном формате, чтобы обсудить вариант с коллегами или переслать руководству!

Похожие предложения в других зданиях

БЕЗ КОМИССИИ ID: 304071 Рейтинг8.4 КлассB+

Москва, Шарикоподшипниковская улица, 13 с2

Дубровка → 39 м
~ 0 мин
Арендная плата в месяц 1 153 775 ₽ 20 000 ₽/м² в год С учётом НДС
Характеристики 694 м² 4 этаж Готово к въезду
Преимущества
  • Класс B+
  • Пешком от метро
  • Кондиционирование и вентиляция
  • Свой паркинг

Сдается в прямую аренду офис класса B+ площадью 694 квадратных метров в бизнес-центре "ЕПК"... подробнее

>

Виртуальный тур

Презентация по предложению

Собираете информацию? Получите подробную презентацию в удобном формате!

БЕЗ КОМИССИИ ID: 1374553 Рейтинг8.4 КлассB+

Москва, Шарикоподшипниковская улица, 13 с2

Дубровка → 39 м
~ 0 мин
Арендная плата в месяц 1 066 500 ₽ 18 000 ₽/м² в год С учётом НДС
Характеристики 711 м² 3 этаж Готово к въезду
Преимущества
  • Класс B+
  • Пешком от метро
  • Кондиционирование и вентиляция
  • Свой паркинг

Предлагается в долгосрочную прямую аренду офисное помещение класса B+ площадью 711 квадр. метров в бизнес-центре "ЕПК"... подробнее

>

Виртуальный тур

Презентация по предложению

Собираете информацию? Получите подробную презентацию в удобном формате!

БЕЗ КОМИССИИ ID: 304741 Рейтинг8.1 КлассB+

Москва, Шарикоподшипниковская улица, 38 с1

Дубровка → 527 м
~ 5 мин
Арендная плата в месяц 1 099 917 ₽ 19 700 ₽/м² в год С учётом НДС
Характеристики 670 м² 1 - 2 этаж Готово к въезду
Преимущества
  • Класс B+
  • Пешком от метро
  • Кондиционирование и вентиляция
  • Развитая инфраструктура

Предлагаем в долгосрочную аренду помещение под офис класса B площадью 670 квадратных метров в бизнес-центре "Меркурий"... подробнее

Презентация по предложению

Собираете информацию? Получите подробную презентацию в удобном формате!

БЕЗ КОМИССИИ ID: 205821 Рейтинг6.5 КлассB

Москва, 1-я Дубровская улица, 13А с1

Дубровка → 704 м
~ 8 мин
Арендная плата в месяц 750 000 ₽ 15 000 ₽/м² в год С учётом НДС
Характеристики 600 м² 3 этаж Готово к въезду
Преимущества
  • Класс B
  • Пешком от метро
  • Кондиционирование и вентиляция
  • Свой паркинг
  • Несколько провайдеров связи
  • Развитая инфраструктура

Предлагается в долгосрочную аренду офисное помещение класса B площадью 600 кв. метров в бизнес-центре... подробнее

Презентация по предложению

Собираете информацию? Получите подробную презентацию в удобном формате!

БЕЗ КОМИССИИ ID: 1324732 Рейтинг6.3 КлассB

Москва, 2-й Южнопортовый проезд, 14/22

Кожуховская → 739 м
~ 7 мин
Арендная плата в месяц 1 116 667 ₽ 20 000 ₽/м² в год С учётом НДС
Характеристики 670 м² 3 этаж Готово к въезду
Преимущества
  • Класс B
  • Пешком от метро
  • Кондиционирование и вентиляция
  • Свой паркинг
  • Несколько провайдеров связи
  • Развитая инфраструктура

Предлагаем в прямую аренду помещение под офис класса B общей площадью 670 квадр. метров в бизнес-центре "Южнопортовый"... подробнее

Презентация по предложению

Собираете информацию? Получите подробную презентацию в удобном формате!

Посмотреть все похожие предложения
Отнеситесь рационально к процессу поиска нового офиса!

Просто ответьте на 3 вопроса, и наши специалисты сами предложат оптимальные варианты под ваш бюджет

.