8.2
Смотреть все фото
БЕЗ КОМИССИИ ID: 1308688 Рейтинг8.8 КлассB+

Москва, 2-я улица Машиностроения, 27 с6

Угрешская → 563 м
~ 6 мин
Стоимость 42.6 млн ₽ 255 100 ₽/м²

Презентация по предложению

Собираете информацию? Получите подробную презентацию в удобном формате!

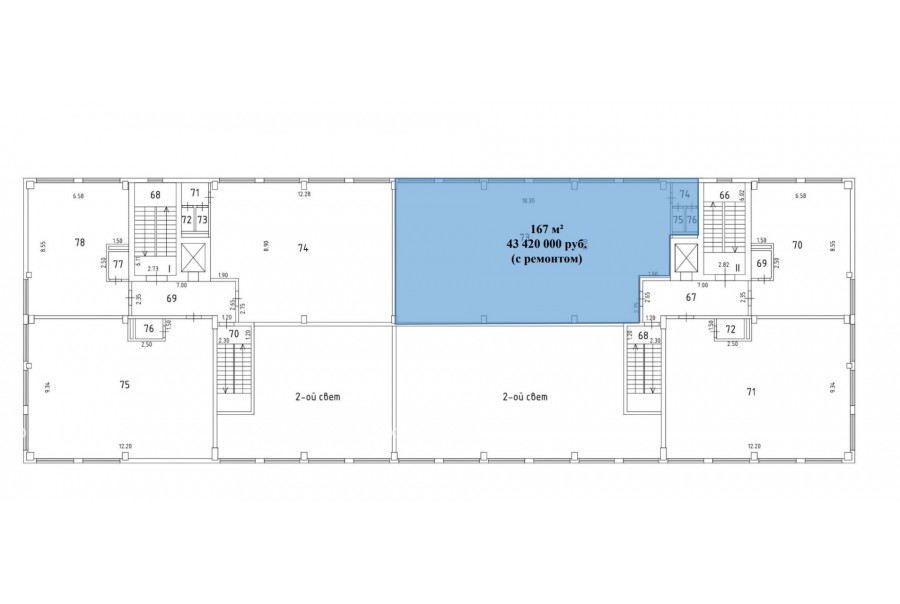
Площадь 167 м²
Состояние Готово к въезду
Планировка Смешанная
Этаж 6

Описание

Преимущества
  • Класс B+
  • Пешком от метро
  • Свежая реконструкция
  • Кондиционирование и вентиляция
  • Свой паркинг
Продается офис общей площадью 167 кв.м в недавно отреконструированном бизнес-центре.

Помещение можно адаптировать под любой бизнес благодаря функциональной планировке - идеальный баланс комфорта и экономической выгоды. Оптимальное решение для стабильного бизнеса или выгодных инвестиций.

Офис класса B+:
- Помещение с отделкой, готово к въезду
- Вентиляция: Приточно-вытяжная вентиляция
- Кондиционирование: центральное

О объекте:
Москва, ЮВАО, 2-я улица Машиностроения, 27 с6

Удобное расположение здания для всех видов транспорта:
- Автомобиль: близость транспортных магистралей, таких как Третье Транспортное Кольцо, Волгоградский проспект и других.
- Возможность аренды парковочных мест.
- Ближайшее метро: от метро "Угрешская" всего 6 мин пешком



Если предложение предварительно Вам подходит:

1. Мы отправим Вам подробную презентацию с планировкой и фотографиями в течение 10 минут после звонка, чтобы Вы могли поделиться информацией с руководством или с коллегами.
2. Задайте любые вопросы менеджеру по телефону, готовы обсуждать любые предложения по финансовым условиям договора продажи.

Звоните нам в любое время. По будням мы сможем ответить на Ваши вопросы до 19:00. В выходные или вечернее время мы передадим Ваш контакт нашему менеджеру.

О бизнес-центре

Класс B+
Этажность 6
Лифты Есть
Общая площадь 5 267 м²
Год постройки 1970
Паркинг Наземный
Вентиляция приточно-вытяжная
Кондиционирование центральное
Телекоммуникации Интернет/Телефония

Расположение

Подробная презентацию по предложению

Собираете информацию? Получите подробную презентацию в удобном формате, чтобы обсудить вариант с коллегами или переслать руководству!

Похожие предложения в других зданиях

БЕЗ КОМИССИИ ID: 1322833 Рейтинг6.5 КлассB

Москва, 2-я улица Машиностроения, 17 с1

Дубровка → 622 м
~ 6 мин
Стоимость 660 000 000 ₽ 132 000 ₽/м²
Характеристики 5 000 м² -1 - 3 этаж Готово к въезду
Преимущества
  • Класс B
  • Пешком от метро
  • Кондиционирование и вентиляция
  • Свой паркинг
  • Развитая инфраструктура

Продается офисный блок площадью 5000 квадратных метров в недавно отреконструированном бизнес-центре. .. подробнее

Презентация по предложению

Собираете информацию? Получите подробную презентацию в удобном формате!

БЕЗ КОМИССИИ ID: 1375139 Рейтинг7.9 КлассB+

Москва, Дербеневская набережная, 11

Пролетарская → 1.95 км
~ 19 мин
Стоимость 94 380 000 ₽ 220 000 ₽/м²
Характеристики 429 м² 4 этаж Готово к въезду
Преимущества
  • Класс B+
  • Пешком от метро
  • Кондиционирование и вентиляция
  • Свой паркинг
  • Несколько провайдеров связи
  • Развитая инфраструктура

В продаже офисный блок общей площадью 429 кв. метров в бизнес-центре "Полларс". .. подробнее

Презентация по предложению

Собираете информацию? Получите подробную презентацию в удобном формате!

БЕЗ КОМИССИИ ID: 1375137 Рейтинг7.9 КлассB+

Москва, Дербеневская набережная, 11

Пролетарская → 1.95 км
~ 19 мин
Стоимость 43 120 000 ₽ 220 000 ₽/м²
Характеристики 196 м² 4 этаж Готово к въезду
Преимущества
  • Класс B+
  • Пешком от метро
  • Кондиционирование и вентиляция
  • Свой паркинг
  • Несколько провайдеров связи
  • Развитая инфраструктура

В продаже офисное помещение общей площадью 196 квадратных метров в бизнес-центре "Полларс". .. подробнее

Презентация по предложению

Собираете информацию? Получите подробную презентацию в удобном формате!

БЕЗ КОМИССИИ ID: 1375140 Рейтинг7.9 КлассB+

Москва, Дербеневская набережная, 11

Пролетарская → 1.95 км
~ 19 мин
Стоимость 32 780 000 ₽ 220 000 ₽/м²
Характеристики 149 м² 4 этаж Готово к въезду
Преимущества
  • Класс B+
  • Пешком от метро
  • Кондиционирование и вентиляция
  • Свой паркинг
  • Несколько провайдеров связи
  • Развитая инфраструктура

В продаже офисное помещение площадью 149 квадратных метров в бизнес-центре "Полларс". .. подробнее

Презентация по предложению

Собираете информацию? Получите подробную презентацию в удобном формате!

БЕЗ КОМИССИИ ID: 1375138 Рейтинг7.9 КлассB+

Москва, Дербеневская набережная, 11

Пролетарская → 1.95 км
~ 19 мин
Стоимость 32 560 000 ₽ 220 000 ₽/м²
Характеристики 148 м² 4 этаж Готово к въезду
Преимущества
  • Класс B+
  • Пешком от метро
  • Кондиционирование и вентиляция
  • Свой паркинг
  • Несколько провайдеров связи
  • Развитая инфраструктура

Продается офис общей площадью 148 кв.м в бизнес-центре "Полларс". .. подробнее

Презентация по предложению

Собираете информацию? Получите подробную презентацию в удобном формате!

Посмотреть все похожие предложения
Отнеситесь рационально к процессу поиска нового офиса!

Просто ответьте на 3 вопроса, и наши специалисты сами предложат оптимальные варианты под ваш бюджет

.