8.2

Виртуальный тур

Смотреть все фото
БЕЗ КОМИССИИ ID: 1214882 Рейтинг6.2 КлассB

Москва, 3-й Самотечный переулок, 11 с1

Достоевская → 420 м
~ 4 мин
Арендная плата в месяц 1 399 800 ₽ 22 700 ₽/м² в год С учётом НДС

Презентация по предложению

Собираете информацию? Получите подробную презентацию в удобном формате!

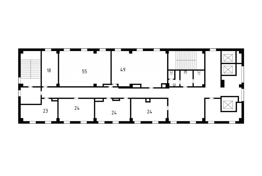
Площадь 740 м²
Состояние Готово к въезду
Планировка Смешанная
Этаж 3 - 4

Описание

Преимущества
  • Класс B
  • Пешком от метро
  • Кондиционирование и вентиляция
  • Свой паркинг
Предлагаем в прямую аренду офис класса B общей площадью 740 кв.м в бизнес-центре.

Москва, ЦАО, 3-й Самотечный переулок, 11 с1

Удобное расположение здания для всех видов транспорта:
- Автомобиль: близость транспортных магистралей, таких как Садовое Кольцо и других.
- Возможность аренды парковочных мест.
- Ближайшее метро: от метро "Достоевская" всего 5 мин пешком

Офис класса B:
- Офис с отделкой, полностью готов к аренде
- Кондиционирование: центральное


Если данное предложение подходит Вашему запросу:

1. Мы отправим Вам подробную презентацию с планировкой и фотографиями в течение 10 минут после звонка, чтобы Вы могли поделиться информацией с руководством или с коллегами.
2. Ответим на любые Ваши вопросы, готовы обсуждать любые предложения по коммерческим условиям аренды помещения.
3. Покажем помещение в удобное для Вас время с менеджером в здании, при необходимости подготовим виртуальный тур.

Вы можете позвонить нам в любое время. Мы ответим на Ваши вопросы по будням до 19:00, а поздно вечером или в выходные сможем передать Ваш контакт нашему менеджеру.

Коммерческие условия

Арендная плата 1 399 830 ₽
Ставка арендной платы 22 700 ₽ м²/год
Эксплуатационные расходы Включены в ставку
Налоги С учётом НДС
Тип договора Прямая аренда
Срок договора от 11 месяцев
Размер платежей 1 месяц
Обеспечительный платеж 1 месяц
Статус Сдан

О бизнес-центре

Класс B
Этажность 10
Лифты Есть
Общая площадь 0 м²
Паркинг Наземный
Вентиляция естественная
Кондиционирование центральное
Телекоммуникации Интернет/Телефония

Расположение

Подробная презентацию по предложению

Собираете информацию? Получите подробную презентацию в удобном формате, чтобы обсудить вариант с коллегами или переслать руководству!

Похожие предложения в других зданиях

БЕЗ КОМИССИИ ID: 58774 Рейтинг9.0 КлассB

Москва, Суворовская площадь, 1/52 к1

Достоевская → 133 м
~ 1 мин
Арендная плата в месяц 1 275 000 ₽ 20 000 ₽/м² в год С учётом НДС
Характеристики 765 м² 5 этаж Готово к въезду
Преимущества
  • Класс B
  • Пешком от метро
  • Кондиционирование и вентиляция
  • Свой паркинг

Сдаем в аренду помещение под офис класса B общей площадью 765 кв. метров в историческом бизнес-центре... подробнее

Презентация по предложению

Собираете информацию? Получите подробную презентацию в удобном формате!

БЕЗ КОМИССИИ ID: 235583 Рейтинг7.4 КлассB+

Москва, Самотёчная улица, 7 с2

Цветной бульвар → 580 м
~ 6 мин
Арендная плата в месяц 1 396 000 ₽ 24 000 ₽/м² в год С учётом НДС
Характеристики 698 м² 2 этаж Готово к въезду
Преимущества
  • Класс B+
  • Пешком от метро
  • Кондиционирование и вентиляция
  • Свой паркинг
  • Несколько провайдеров связи

Предлагаем в долгосрочную аренду офисное помещение класса B+ площадью 698 кв.м в историческом бизнес-центре... подробнее

Презентация по предложению

Собираете информацию? Получите подробную презентацию в удобном формате!

БЕЗ КОМИССИИ ID: 126544 Рейтинг7.4 КлассB+

Москва, Самотёчная улица, 7 с2

Цветной бульвар → 580 м
~ 6 мин
Арендная плата в месяц 1 183 333 ₽ 20 000 ₽/м² в год С учётом НДС
Характеристики 710 м² 1 - 3 этаж Готово к въезду
Преимущества
  • Класс B+
  • Пешком от метро
  • Кондиционирование и вентиляция
  • Свой паркинг
  • Несколько провайдеров связи

Предлагаем в долгосрочную прямую аренду офисный блок класса B+ общей площадью 710 кв.м в историческом бизнес-центре... подробнее

Презентация по предложению

Собираете информацию? Получите подробную презентацию в удобном формате!

БЕЗ КОМИССИИ ID: 2037 Рейтинг9.0 КлассА

Москва, 2-й Волконский переулок, 10

Цветной бульвар → 649 м
~ 6 мин
Арендная плата в месяц 1 277 500 ₽ 21 000 ₽/м² в год С учётом НДС
Характеристики 730 м² 2 этаж Под отделку
Преимущества
  • Класс А
  • Пешком от метро
  • Кондиционирование и вентиляция
  • Свой паркинг
  • Развитая инфраструктура

Сдается в прямую аренду офисное помещение класса А общей площадью 730 кв.м в бизнес-центре "Волконский"... подробнее

Презентация по предложению

Собираете информацию? Получите подробную презентацию в удобном формате!

БЕЗ КОМИССИИ ID: 175776 Рейтинг6.0 КлассB

Москва, 1-й Волконский переулок, 9 с1

Цветной бульвар → 623 м
~ 6 мин
Арендная плата в месяц 1 235 667 ₽ 22 000 ₽/м² в год С учётом НДС
Характеристики 674 м² 1 - 4 этаж Готово к въезду
Преимущества
  • Класс B
  • Пешком от метро
  • Кондиционирование и вентиляция

Сдается в долгосрочную аренду помещение под офис класса B площадью 674 кв.м в историческом бизнес-центре... подробнее

Презентация по предложению

Собираете информацию? Получите подробную презентацию в удобном формате!

Посмотреть все похожие предложения
Отнеситесь рационально к процессу поиска нового офиса!

Просто ответьте на 3 вопроса, и наши специалисты сами предложат оптимальные варианты под ваш бюджет

.