8.2
Смотреть все фото
БЕЗ КОМИССИИ ID: 1378632 Рейтинг8.2 КлассB+
Бизнес-центр «9 Акров Фаза II»

Аренда офиса 769 м²

Москва, Научный проезд, 17

Калужская → 1.34 км
~ 13 мин
Арендная плата в месяц 2 729 900 ₽ 42 600 ₽/м² в год С учётом НДС

Презентация по предложению

Собираете информацию? Получите подробную презентацию в удобном формате!

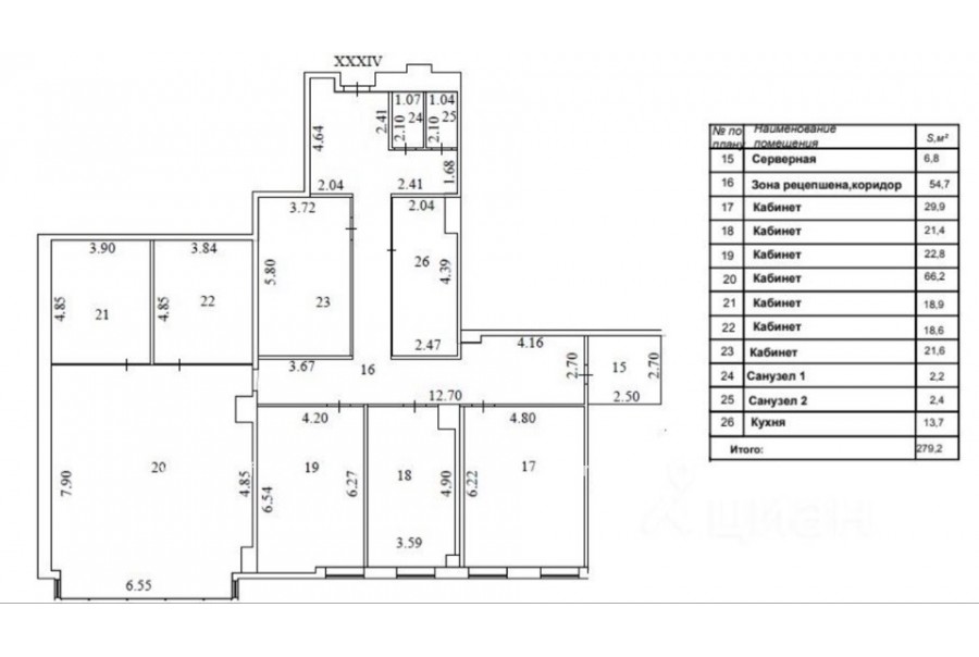
Площадь 769 м²
Состояние Готово к въезду
Планировка Смешанная
Этаж 8

Описание

Преимущества
  • Класс B+
  • Пешком от метро
  • Кондиционирование и вентиляция
  • Свой паркинг
Предлагается в долгосрочную аренду помещение под офис класса B+ площадью 769 квадратных метров в бизнес-центре "9 Акров Фаза II".

Москва, ЮЗАО, Научный проезд, 17

Удобная локация здания:
- Автомобиль: близость транспортных магистралей, таких как Севастопольский проспект, Профсоюзная улица и других.
- Возможность аренды парковочных мест.
- Ближайшее метро: от метро "Калужская" всего 13 мин пешком

Офис класса B+:
- Помещение готово к въезду
- Вентиляция: Приточно-вытяжная вентиляция
- Кондиционирование: центральное
- Презентабельный центральный ресепшн
- Круглосуточная охрана и видеонаблюдение


Если предложение предварительно Вам подходит:

1. Мы подготовили презентацию с информацией о помещении, фотографиями и планировкой, чтобы Вы могли поделиться ей с коллегами или руководством. Попросите об этом нашего менеджера по телефону в объявлении.
2. Задайте любые вопросы менеджеру по телефону, готовы обсуждать любые предложения по финансовым условиям договора аренды.
3. Оперативно организуем просмотр помещения, договоримся на любое удобное время, подготовим виртуальный тур.

Звоните нам в любое время. По будням мы сможем ответить на Ваши вопросы до 19:00. В выходные или вечернее время мы передадим Ваш контакт нашему менеджеру по аренде.

Коммерческие условия

Арендная плата 2 729 950 ₽
Ставка арендной платы 41 000 ₽ м²/год
Эксплуатационные расходы 1 560 ₽
Налоги С учётом НДС
Тип договора Прямая аренда
Срок договора от 11 месяцев
Размер платежей 1 месяц
Обеспечительный платеж 2 месяц
Статус Свободен

О бизнес-центре

Класс B+
Этажность 17
Лифты Есть
Общая площадь 90 738 м²
Год постройки 2013
Паркинг Подземный
Вентиляция приточно-вытяжная
Кондиционирование центральное
Телекоммуникации Интернет/Телефония

Расположение

Подробная презентацию по предложению

Собираете информацию? Получите подробную презентацию в удобном формате, чтобы обсудить вариант с коллегами или переслать руководству!

Похожие предложения в других зданиях

БЕЗ КОМИССИИ ID: 170429 Рейтинг8.5 КлассА

Москва, Херсонская улица, 43 к3

Зюзино → 1.4 км
~ 14 мин
Арендная плата в месяц 2 076 667 ₽ 35 000 ₽/м² в год С учётом НДС
Характеристики 712 м² 3 этаж Готово к въезду
Преимущества
  • Класс А
  • Пешком от метро
  • Кондиционирование и вентиляция
  • Свой паркинг

Сдаем в долгосрочную прямую аренду офисный блок класса А площадью 712 квадр. метров в бизнес-центре "Газойл Сити"... подробнее

Презентация по предложению

Собираете информацию? Получите подробную презентацию в удобном формате!

ВОЗМОЖНО ОСВОБОЖДЕНИЕ ID: 950352 Рейтинг8.4 КлассА

Москва, улица Намёткина, 12А

Калужская → 1.24 км
~ 12 мин
Арендная плата в месяц 2 333 383 ₽ 38 200 ₽/м² в год С учётом НДС
Характеристики 733 м² 10 этаж Готово к въезду
Преимущества
  • Класс А
  • Пешком от метро
  • Кондиционирование и вентиляция
  • Свой паркинг
  • Развитая инфраструктура

Предлагается в долгосрочную аренду помещение под офис класса А площадью 733 кв. метров в бизнес-центре "Газойл Плаза"... подробнее

>

Виртуальный тур

Презентация по предложению

Собираете информацию? Получите подробную презентацию в удобном формате!

ВОЗМОЖНО ОСВОБОЖДЕНИЕ ID: 356523 Рейтинг8.4 КлассА

Москва, улица Намёткина, 12А

Калужская → 1.24 км
~ 12 мин
Арендная плата в месяц 2 260 167 ₽ 38 200 ₽/м² в год С учётом НДС
Характеристики 710 м² 9 этаж Готово к въезду
Преимущества
  • Класс А
  • Пешком от метро
  • Кондиционирование и вентиляция
  • Свой паркинг
  • Развитая инфраструктура

Сдаем в прямую аренду офисный блок класса А площадью 710 кв.м в бизнес-центре "Газойл Плаза"... подробнее

>

Виртуальный тур

Презентация по предложению

Собираете информацию? Получите подробную презентацию в удобном формате!

БЕЗ КОМИССИИ ID: 1325698 Рейтинг8.4 КлассА

Москва, улица Намёткина, 12А

Калужская → 1.24 км
~ 12 мин
Арендная плата в месяц 2 091 450 ₽ 38 200 ₽/м² в год С учётом НДС
Характеристики 657 м² 19 этаж Готово к въезду
Преимущества
  • Класс А
  • Пешком от метро
  • Кондиционирование и вентиляция
  • Свой паркинг
  • Развитая инфраструктура

Предлагается в прямую аренду офис класса А площадью 657 кв.м в бизнес-центре "Газойл Плаза"... подробнее

>

Виртуальный тур

Презентация по предложению

Собираете информацию? Получите подробную презентацию в удобном формате!

БЕЗ КОМИССИИ ID: 1317271 Рейтинг8.4 КлассА

Москва, улица Намёткина, 12А

Калужская → 1.24 км
~ 12 мин
Арендная плата в месяц 1 933 750 ₽ 35 000 ₽/м² в год С учётом НДС
Характеристики 663 м² 22 этаж Готово к въезду
Преимущества
  • Класс А
  • Пешком от метро
  • Кондиционирование и вентиляция
  • Свой паркинг
  • Развитая инфраструктура

Предлагается в долгосрочную аренду офисное помещение класса А площадью 663 квадр. метров в бизнес-центре "Газойл Плаза"... подробнее

>

Виртуальный тур

Презентация по предложению

Собираете информацию? Получите подробную презентацию в удобном формате!

Посмотреть все похожие предложения
Отнеситесь рационально к процессу поиска нового офиса!

Просто ответьте на 3 вопроса, и наши специалисты сами предложат оптимальные варианты под ваш бюджет

.