8.2
Смотреть все фото
БЕЗ КОМИССИИ ID: 226717 Рейтинг4.6 КлассB

Москва, 9-я улица Соколиной Горы, 6

Соколиная Гора → 1.1 км
~ 11 мин
Арендная плата в месяц 1 190 800 ₽ 10 000 ₽/м² в год С учётом НДС

Презентация по предложению

Собираете информацию? Получите подробную презентацию в удобном формате!

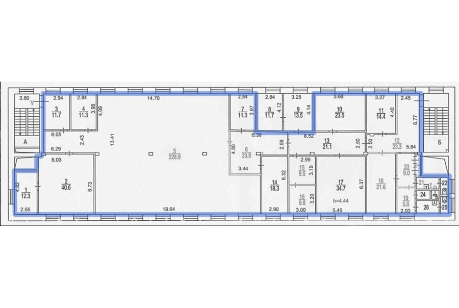
Площадь 1 429 м²
Состояние Под отделку
Планировка Смешанная
Этаж 2 - 4

Описание

Преимущества
  • Класс B
  • Пешком от метро
  • Кондиционирование и вентиляция
Сдается в долгосрочную прямую аренду помещение под офис класса B общей площадью 1429 кв.м в бизнес-центре.

Москва, ВАО, 9-я улица Соколиной Горы, 6

Удобная локация здания:
- Автомобиль: близость транспортных магистралей, таких как Шоссе Энтузиастов и других.
- Ближайшее метро: от метро "Соколиная Гора" всего 11 мин пешком

Офис класса B:
- Офис без отделки
- Кондиционирование: центральное


Если предложение предварительно Вам подходит:

1. Мы отправим Вам подробную презентацию с планировкой и фотографиями в течение 10 минут после звонка, чтобы Вы могли поделиться информацией с руководством или с коллегами.
2. Ответим на любые Ваши вопросы, готовы обсуждать любые предложения по коммерческим условиям аренды помещения.
3. Оперативно организуем просмотр помещения, договоримся на любое удобное время, подготовим виртуальный тур.

Звоните нам в любое время. По будням мы сможем ответить на Ваши вопросы до 19:00. В выходные или вечернее время мы передадим Ваш контакт нашему менеджеру по аренде.

Коммерческие условия

Арендная плата 1 190 830 ₽
Ставка арендной платы 10 000 ₽ м²/год
Эксплуатационные расходы Включены в ставку
Налоги С учётом НДС
Тип договора Прямая аренда
Срок договора от 11 месяцев
Размер платежей 1 месяц
Обеспечительный платеж 1 месяц
Статус Сдан

О бизнес-центре

Класс B
Этажность 4
Лифты Нет
Общая площадь 3 261 м²
Год постройки 1967
Паркинг Наземный
Вентиляция естественная
Кондиционирование центральное
Телекоммуникации Интернет/Телефония

Расположение

Подробная презентацию по предложению

Собираете информацию? Получите подробную презентацию в удобном формате, чтобы обсудить вариант с коллегами или переслать руководству!

Похожие предложения в других зданиях

БЕЗ КОМИССИИ ID: 69722 Рейтинг8.0 КлассB

Москва, шоссе Энтузиастов, 31

Шоссе Энтузиастов → 70 м
~ 1 мин
Арендная плата в месяц 1 070 000 ₽ 10 000 ₽/м² в год С учётом НДС
Характеристики 1 284 м² 2 - 3 этаж Готово к въезду
Преимущества
  • Класс B
  • Пешком от метро
  • Кондиционирование и вентиляция
  • Свой паркинг

Предлагается в прямую аренду офис класса B общей площадью 1284 кв.м в историческом бизнес-центре... подробнее

Презентация по предложению

Собираете информацию? Получите подробную презентацию в удобном формате!

БЕЗ КОМИССИИ ID: 472251 Рейтинг6.2 КлассB

Москва, 3-й проезд Перова Поля, 8

Перово → 941 м
~ 9 мин
Арендная плата в месяц 1 083 333 ₽ 10 000 ₽/м² в год С учётом НДС
Характеристики 1 300 м² 1 этаж Готово к въезду
Преимущества
  • Класс B
  • Пешком от метро
  • Кондиционирование и вентиляция
  • Свой паркинг
  • Развитая инфраструктура

Собственник сдает в долгосрочную аренду офисное помещение класса B площадью 1300 кв. метров в бизнес-центре "Перово Поле"... подробнее

Презентация по предложению

Собираете информацию? Получите подробную презентацию в удобном формате!

БЕЗ КОМИССИИ ID: 78211 Рейтинг6.1 КлассB

Москва, Зельев переулок, 11

Преображенская площадь → 1.06 км
~ 11 мин
Арендная плата в месяц 1 250 000 ₽ 10 000 ₽/м² в год С учётом НДС
Характеристики 1 500 м² 2 - 3 этаж Готово к въезду
Преимущества
  • Класс B
  • Пешком от метро
  • Кондиционирование и вентиляция
  • Свой паркинг

Предлагается в прямую аренду офисное помещение класса B общей площадью 1500 квадратных метров в бизнес-центре... подробнее

Презентация по предложению

Собираете информацию? Получите подробную презентацию в удобном формате!

БЕЗ КОМИССИИ ID: 283738 Рейтинг4.6 КлассB

Москва, 9-я улица Соколиной Горы, 6

Соколиная Гора → 1.1 км
~ 11 мин
Арендная плата в месяц 1 075 000 ₽ 10 000 ₽/м² в год С учётом НДС
Характеристики 1 290 м² 2 - 3 этаж Готово к въезду
Преимущества
  • Класс B
  • Пешком от метро
  • Кондиционирование и вентиляция

Предлагается в долгосрочную прямую аренду офисный блок класса B площадью 1290 кв. метров в бизнес-центре... подробнее

Презентация по предложению

Собираете информацию? Получите подробную презентацию в удобном формате!

Посмотреть все похожие предложения
Отнеситесь рационально к процессу поиска нового офиса!

Просто ответьте на 3 вопроса, и наши специалисты сами предложат оптимальные варианты под ваш бюджет

.