8.2
Смотреть все фото
БЕЗ КОМИССИИ ID: 1193489 Рейтинг4.6 КлассB

Москва, 9-я улица Соколиной Горы, 6

Соколиная Гора → 1.1 км
~ 11 мин
Арендная плата в месяц 1 138 100 ₽ 7 000 ₽/м² в год С учётом НДС

Презентация по предложению

Собираете информацию? Получите подробную презентацию в удобном формате!

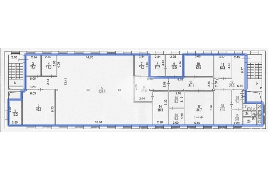
Площадь 1 951 м²
Состояние Под отделку
Планировка Смешанная
Этаж 2 - 4

Описание

Преимущества
  • Класс B
  • Пешком от метро
  • Кондиционирование и вентиляция
Предлагается в долгосрочную прямую аренду помещение под офис класса B площадью 1951 кв.м в бизнес-центре.

Москва, ВАО, 9-я улица Соколиной Горы, 6

Удобная локация здания:
- Автомобиль: близость транспортных магистралей, таких как Шоссе Энтузиастов и других.
- Ближайшее метро: от метро "Соколиная Гора" всего 11 мин пешком

Офис класса B:
- Офис без отделки
- Кондиционирование: центральное


Что еще можно узнать о предложении:

1. Мы подготовили презентацию с информацией о помещении, фотографиями и планировкой, чтобы Вы могли поделиться ей с коллегами или руководством. Попросите об этом нашего менеджера по телефону в объявлении.
2. Задайте любые вопросы менеджеру по телефону, готовы обсуждать любые предложения по финансовым условиям договора аренды.
3. Оперативно организуем просмотр помещения с менеджерами на объекте или подготовим виртуальный тур.

Вы можете позвонить нам в любое время. Мы ответим на Ваши вопросы по будням до 19:00, а поздно вечером или в выходные сможем передать Ваш контакт нашему менеджеру.

Коммерческие условия

Арендная плата 1 138 080 ₽
Ставка арендной платы 7 000 ₽ м²/год
Эксплуатационные расходы Включены в ставку
Налоги С учётом НДС
Тип договора Прямая аренда
Срок договора от 11 месяцев
Размер платежей 1 месяц
Обеспечительный платеж 1 месяц
Статус Сдан

О бизнес-центре

Класс B
Этажность 4
Лифты Нет
Общая площадь 3 261 м²
Год постройки 1967
Паркинг Наземный
Вентиляция естественная
Кондиционирование центральное
Телекоммуникации Интернет/Телефония

Расположение

Подробная презентацию по предложению

Собираете информацию? Получите подробную презентацию в удобном формате, чтобы обсудить вариант с коллегами или переслать руководству!

Похожие предложения в других зданиях

БЕЗ КОМИССИИ ID: 200525 Рейтинг6.0 КлассB

Москва, Сторожевая улица, 23 с1

Лефортово → 782 м
~ 8 мин
Арендная плата в месяц 1 248 000 ₽ 8 000 ₽/м² в год С учётом НДС
Характеристики 1 872 м² 2 - 3 этаж Под отделку
Преимущества
  • Класс B
  • Пешком от метро
  • Кондиционирование и вентиляция

Предлагается в долгосрочную прямую аренду офисное помещение класса B площадью 1872 квадр. метров в бизнес-центре... подробнее

Презентация по предложению

Собираете информацию? Получите подробную презентацию в удобном формате!

БЕЗ КОМИССИИ ID: 290262 Рейтинг8.0 КлассB

Москва, шоссе Энтузиастов, 31

Шоссе Энтузиастов → 70 м
~ 1 мин
Арендная плата в месяц 845 500 ₽ 6 000 ₽/м² в год С учётом НДС
Характеристики 1 691 м² 2 этаж Готово к въезду
Преимущества
  • Класс B
  • Пешком от метро
  • Кондиционирование и вентиляция
  • Свой паркинг

Сдаем в прямую аренду офисное помещение класса B общей площадью 1691 квадр. метров в историческом бизнес-центре... подробнее

Презентация по предложению

Собираете информацию? Получите подробную презентацию в удобном формате!

Посмотреть все похожие предложения
Отнеситесь рационально к процессу поиска нового офиса!

Просто ответьте на 3 вопроса, и наши специалисты сами предложат оптимальные варианты под ваш бюджет

.