8.2
Смотреть все фото
БЕЗ КОМИССИИ ID: 269140 Рейтинг6.7 КлассB+
Бизнес-центр «Аэробус»

Аренда офиса 876 м²

Москва, Кочновский проезд, 4 к1

Аэропорт → 1.16 км
~ 12 мин
Арендная плата в месяц 876 000 ₽ 12 000 ₽/м² в год С учётом НДС

Презентация по предложению

Собираете информацию? Получите подробную презентацию в удобном формате!

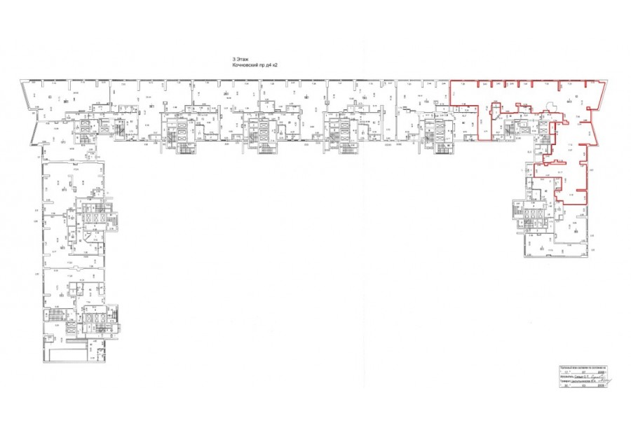
Площадь 876 м²
Состояние Готово к въезду
Планировка Кабинетная
Этаж 2 - 3

Описание

Преимущества
  • Класс B+
  • Пешком от метро
  • Кондиционирование и вентиляция
  • Развитая инфраструктура
Предлагается помещение под офис класса B+ общей площадью 876 квадратных метров в бизнес-центре "Аэробус".

Москва, САО, Кочновский проезд, 4 к1

Характеристики местоположения:
- Автомобиль: близость транспортных магистралей, таких как Ленинградский проспект и других.
- Возможность аренды парковочных мест.
- Ближайшее метро: от метро "Аэропорт" можно добраться пешком или на городском транспорте

Офис класса B+:
- Офис с отделкой, полностью готов к аренде
- Вентиляция: Приточно-вытяжная вентиляция
- Кондиционирование: центральное
- Круглосуточная охрана и видеонаблюдение
- Развитая инфраструктура внутри здания


Если предложение предварительно Вам подходит:

1. Мы подготовили презентацию с информацией о помещении, фотографиями и планировкой, чтобы Вы могли поделиться ей с коллегами или руководством. Попросите об этом нашего менеджера по телефону в объявлении.
2. Мы готовы ответить на любые Ваши вопросы о помещении и коммерческих условиях аренды.
3. Оперативно организуем просмотр помещения с менеджерами на объекте или подготовим виртуальный тур.

Звоните нам в любое время. По будням мы сможем ответить на Ваши вопросы до 19:00. В выходные или вечернее время мы передадим Ваш контакт нашему менеджеру по аренде.

Коммерческие условия

Арендная плата 876 000 ₽
Ставка арендной платы 12 000 ₽ м²/год
Эксплуатационные расходы Включены в ставку
Налоги С учётом НДС
Тип договора ДСД
Срок договора Долгосрочный
Размер платежей 1 месяц
Обеспечительный платеж 1 месяц
Статус Сдан

О бизнес-центре

Класс B+
Этажность 31
Лифты Есть
Общая площадь 27 440 м²
Год постройки 2008
Паркинг Стихийный
Вентиляция приточно-вытяжная
Кондиционирование центральное
Телекоммуникации Интернет/Телефония

Расположение

Подробная презентацию по предложению

Собираете информацию? Получите подробную презентацию в удобном формате, чтобы обсудить вариант с коллегами или переслать руководству!

Похожие предложения в других зданиях

БЕЗ КОМИССИИ ID: 73549 Рейтинг5.5 КлассB

Москва, Петровско-Разумовский проезд, 28

Дмитровская → 1.4 км
~ 14 мин
Арендная плата в месяц 925 167 ₽ 13 000 ₽/м² в год С учётом НДС
Характеристики 854 м² 5 этаж Готово к въезду
Преимущества
  • Класс B
  • Пешком от метро
  • Кондиционирование и вентиляция
  • Свой паркинг
  • Развитая инфраструктура

Предлагаем в долгосрочную аренду офисное помещение класса B общей площадью 854 квадр. метров в бизнес-центре... подробнее

Презентация по предложению

Собираете информацию? Получите подробную презентацию в удобном формате!

БЕЗ КОМИССИИ ID: 148423 Рейтинг5.8 КлассB

Москва, Тимирязевская улица, 1 с3

Дмитровская → 960 м
~ 10 мин
Арендная плата в месяц 1 083 333 ₽ 13 000 ₽/м² в год С учётом НДС
Характеристики 1 000 м² 7 этаж Готово к въезду
Преимущества
  • Класс B
  • Пешком от метро
  • Кондиционирование и вентиляция
  • Свой паркинг

Сдается в прямую аренду офисное помещение класса B общей площадью 1000 кв.м в бизнес-центре... подробнее

Презентация по предложению

Собираете информацию? Получите подробную презентацию в удобном формате!

БЕЗ КОМИССИИ ID: 73450 Рейтинг7.3 КлассB

Москва, Часовая улица, 30

Сокол → 930 м
~ 9 мин
Арендная плата в месяц 656 250 ₽ 10 500 ₽/м² в год С учётом НДС
Характеристики 750 м² 5 этаж Под отделку
Преимущества
  • Класс B
  • Пешком от метро
  • Кондиционирование и вентиляция
  • Свой паркинг

Предлагается в долгосрочную аренду офисный блок класса B общей площадью 750 кв. метров в историческом бизнес-центре... подробнее

Презентация по предложению

Собираете информацию? Получите подробную презентацию в удобном формате!

БЕЗ КОМИССИИ ID: 297626 Рейтинг6.3 КлассB

Москва, Балтийская улица, 14

Сокол → 1.01 км
~ 10 мин
Арендная плата в месяц 800 417 ₽ 11 300 ₽/м² в год С учётом НДС
Характеристики 850 м² 5 этаж Готово к въезду
Преимущества
  • Класс B
  • Пешком от метро
  • Кондиционирование и вентиляция
  • Свой паркинг

Предлагается в прямую аренду помещение под офис класса B площадью 850 кв. метров в историческом бизнес-центре... подробнее

Презентация по предложению

Собираете информацию? Получите подробную презентацию в удобном формате!

БЕЗ КОМИССИИ ID: 211921 Рейтинг3.3 КлассB

Москва, 2-я Хуторская улица, 29

Дмитровская → 902 м
~ 9 мин
Арендная плата в месяц 866 667 ₽ 13 000 ₽/м² в год С учётом НДС
Характеристики 800 м² 2 этаж Готово к въезду
Преимущества
  • Класс B
  • Пешком от метро

Предлагаем в долгосрочную аренду помещение под офис класса B общей площадью 800 кв. метров в историческом бизнес-центре... подробнее

Презентация по предложению

Собираете информацию? Получите подробную презентацию в удобном формате!

Посмотреть все похожие предложения
Отнеситесь рационально к процессу поиска нового офиса!

Просто ответьте на 3 вопроса, и наши специалисты сами предложат оптимальные варианты под ваш бюджет

.