8.2
Смотреть все фото
БЕЗ КОМИССИИ ID: 1327111 Рейтинг9.0 КлассА
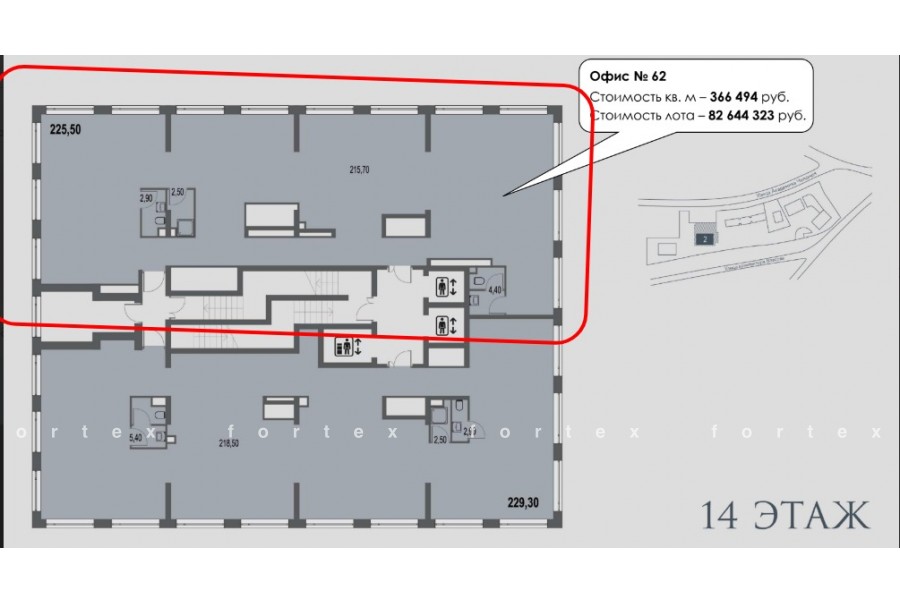
Бизнес-центр «AFI park»

Продажа офиса 226 м²

Москва, улица Академика Челомея, 1А

Воронцовская → 1.05 км
~ 10 мин
Стоимость 88.3 млн ₽ 390 700 ₽/м²

Презентация по предложению

Собираете информацию? Получите подробную презентацию в удобном формате!

Площадь 226 м²
Состояние Под отделку
Планировка Открытая
Этаж 14

Описание

Преимущества
  • Класс А
  • Пешком от метро
  • Новое строительство
  • Кондиционирование и вентиляция
  • Свой паркинг
В продаже офисное помещение общей площадью 226 кв.м в бизнес-центре "AFI park".

Помещение можно адаптировать под любой бизнес благодаря функциональной планировке - идеальный баланс комфорта и экономической выгоды. Оптимальное решение для стабильного бизнеса или выгодных инвестиций.

Офис класса А:
- Помещение без отделки
- Вентиляция: Приточно-вытяжная вентиляция
- Кондиционирование: центральное

О офисном центре:
Москва, ЮЗАО, улица Академика Челомея, 1А

Удобная локация здания:
- Автомобиль: близость транспортных магистралей, таких как Профсоюзная улица, Ленинский проспект и других.
- Возможность аренды парковочных мест.
- Ближайшее метро: от метро "Воронцовская" всего 10 мин пешком



Если предложение предварительно Вам подходит:

1. Мы подготовили презентацию с информацией о помещении, фотографиями и планировкой, чтобы Вы могли поделиться ей с коллегами или руководством. Попросите об этом нашего менеджера по телефону в объявлении.
2. Мы готовы ответить на любые Ваши вопросы о помещении и коммерческих условиях продажи.

Вы можете позвонить нам в любое время. Мы ответим на Ваши вопросы по будням до 19:00, а поздно вечером или в выходные сможем передать Ваш контакт нашему менеджеру.

О бизнес-центре

Класс А
Этажность 21
Лифты Нет
Общая площадь 0 м²
Год постройки 2025
Паркинг Подземный
Вентиляция приточно-вытяжная
Кондиционирование центральное
Телекоммуникации Интернет/Телефония

Расположение

Подробная презентацию по предложению

Собираете информацию? Получите подробную презентацию в удобном формате, чтобы обсудить вариант с коллегами или переслать руководству!

Похожие предложения в других зданиях

БЕЗ КОМИССИИ ID: 1373456 Рейтинг6.8 КлассB

Москва, Старокалужское шоссе, 62

Воронцовская → 266 м
~ 3 мин
Стоимость 100 800 000 ₽ 175 000 ₽/м²
Характеристики 576 м² 2 этаж Под отделку
Преимущества
  • Класс B
  • Пешком от метро
  • Кондиционирование и вентиляция
  • Свой паркинг
  • Несколько провайдеров связи
  • Развитая инфраструктура

Продается офисный блок общей площадью 576 квадратных метров в бизнес-центре "Vallex". .. подробнее

Презентация по предложению

Собираете информацию? Получите подробную презентацию в удобном формате!

БЕЗ КОМИССИИ ID: 1328690 Рейтинг6.8 КлассB

Москва, Старокалужское шоссе, 62

Воронцовская → 266 м
~ 3 мин
Стоимость 87 480 000 ₽ 270 000 ₽/м²
Характеристики 324 м² 2 этаж Готово к въезду
Преимущества
  • Класс B
  • Пешком от метро
  • Кондиционирование и вентиляция
  • Свой паркинг
  • Несколько провайдеров связи
  • Развитая инфраструктура

В продаже офисное помещение общей площадью 324 кв. метров в бизнес-центре "Vallex". .. подробнее

Презентация по предложению

Собираете информацию? Получите подробную презентацию в удобном формате!

БЕЗ КОМИССИИ ID: 1312864 Рейтинг6.8 КлассB

Москва, Старокалужское шоссе, 62

Воронцовская → 266 м
~ 3 мин
Стоимость 81 120 000 ₽ 195 000 ₽/м²
Характеристики 416 м² 3 этаж Готово к въезду
Преимущества
  • Класс B
  • Пешком от метро
  • Кондиционирование и вентиляция
  • Свой паркинг
  • Несколько провайдеров связи
  • Развитая инфраструктура

В продаже офисный блок общей площадью 416 квадратных метров в бизнес-центре "Vallex". .. подробнее

Презентация по предложению

Собираете информацию? Получите подробную презентацию в удобном формате!

БЕЗ КОМИССИИ ID: 1312861 Рейтинг6.8 КлассB

Москва, Старокалужское шоссе, 62

Воронцовская → 266 м
~ 3 мин
Стоимость 66 960 000 ₽ 270 000 ₽/м²
Характеристики 248 м² 2 этаж Готово к въезду
Преимущества
  • Класс B
  • Пешком от метро
  • Кондиционирование и вентиляция
  • Свой паркинг
  • Несколько провайдеров связи
  • Развитая инфраструктура

В продаже офисный блок общей площадью 248 квадратных метров в бизнес-центре "Vallex". .. подробнее

Презентация по предложению

Собираете информацию? Получите подробную презентацию в удобном формате!

БЕЗ КОМИССИИ ID: 1328687 Рейтинг6.8 КлассB

Москва, Старокалужское шоссе, 62

Воронцовская → 266 м
~ 3 мин
Стоимость 65 520 000 ₽ 195 000 ₽/м²
Характеристики 336 м² 2 этаж Готово к въезду
Преимущества
  • Класс B
  • Пешком от метро
  • Кондиционирование и вентиляция
  • Свой паркинг
  • Несколько провайдеров связи
  • Развитая инфраструктура

Продается офисное помещение общей площадью 336 кв.м в бизнес-центре "Vallex". .. подробнее

Презентация по предложению

Собираете информацию? Получите подробную презентацию в удобном формате!

Посмотреть все похожие предложения
Отнеситесь рационально к процессу поиска нового офиса!

Просто ответьте на 3 вопроса, и наши специалисты сами предложат оптимальные варианты под ваш бюджет

.