8.2
Смотреть все фото
БЕЗ КОМИССИИ ID: 1311996 Рейтинг8.5 КлассА
Бизнес-центр «Ahead»

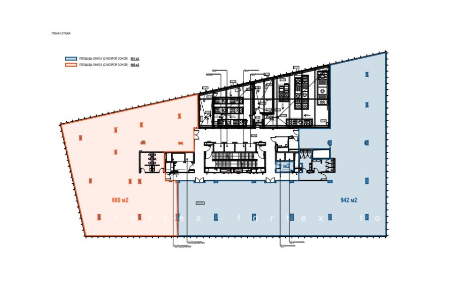
Продажа офиса 660 м²

Москва, улица Василисы Кожиной, вл25/1

Филевский парк → 1.01 км
~ 10 мин
Стоимость 400.09 млн ₽ 606 200 ₽/м²

Презентация по предложению

Собираете информацию? Получите подробную презентацию в удобном формате!

Площадь 660 м²
Состояние Под отделку
Планировка Открытая
Этаж 6

Описание

Преимущества
  • Класс А
  • Пешком от метро
  • Новое строительство
  • Кондиционирование и вентиляция
  • Свой паркинг
В продаже офисное помещение площадью 660 кв.м в бизнес-центре "Ahead".

Помещение можно адаптировать под любой бизнес благодаря функциональной планировке - идеальный баланс комфорта и экономической выгоды. Оптимальное решение для стабильного бизнеса или выгодных инвестиций.

Офис класса А:
- Офис в состоянии shell & core
- Вентиляция: Приточно-вытяжная вентиляция
- Кондиционирование: сплит-системы

О бизнес-центре:
Москва, ЗАО, улица Василисы Кожиной, вл25/1

Удобная локация здания:
- Автомобиль: близость транспортных магистралей, таких как Кутузовский проспект и других.
- Возможность аренды парковочных мест.
- Ближайшее метро: от метро "Филевский парк" всего 10 мин пешком



Если данное предложение подходит Вашему запросу:

1. Получите презентацию в течение 10 минут в Whatsapp или на почту с фотографиями и планировкой, чтобы обсудить данный вариант с коллегами или переслать руководству. Для этого позвоните по телефону, указанному в объявлении.
2. Ответим на любые Ваши вопросы, готовы обсуждать любые предложения по коммерческим условиям продажи помещения.

Звоните нам в любое время. По будням мы сможем ответить на Ваши вопросы до 19:00. В выходные или вечернее время мы передадим Ваш контакт нашему менеджеру.

О бизнес-центре

Класс А
Этажность 6
Лифты Есть
Общая площадь 24 880 м²
Год постройки 2024
Паркинг Подземный
Вентиляция приточно-вытяжная
Кондиционирование сплит-системы
Телекоммуникации Интернет/Телефония

Расположение

Подробная презентацию по предложению

Собираете информацию? Получите подробную презентацию в удобном формате, чтобы обсудить вариант с коллегами или переслать руководству!

Похожие предложения в других зданиях

БЕЗ КОМИССИИ ID: 1323842 Рейтинг9.0 КлассА

Москва, Кастанаевская улица, 16 с1

Багратионовская → 714 м
~ 7 мин
Стоимость 457 039 310 ₽ 502 200 ₽/м²
Характеристики 910 м² 7 этаж Под отделку
Преимущества
  • Класс А
  • Пешком от метро
  • Новое строительство
  • Кондиционирование и вентиляция
  • Свой паркинг

В продаже офис общей площадью 910 квадратных метров в бизнес-центре "FILI RESIDENCE". .. подробнее

Презентация по предложению

Собираете информацию? Получите подробную презентацию в удобном формате!

БЕЗ КОМИССИИ ID: 1378221 Рейтинг9.0 КлассА

Москва, Кастанаевская улица, 16 с1

Багратионовская → 714 м
~ 7 мин
Стоимость 279 674 208 ₽ 514 100 ₽/м²
Характеристики 544 м² 7 этаж Под отделку
Преимущества
  • Класс А
  • Пешком от метро
  • Новое строительство
  • Кондиционирование и вентиляция
  • Свой паркинг

В продаже офис общей площадью 544 кв.м в бизнес-центре "FILI RESIDENCE". .. подробнее

Презентация по предложению

Собираете информацию? Получите подробную презентацию в удобном формате!

БЕЗ КОМИССИИ ID: 1323841 Рейтинг9.0 КлассА

Москва, Кастанаевская улица, 16 с1

Багратионовская → 714 м
~ 7 мин
Стоимость 270 266 272 ₽ 496 800 ₽/м²
Характеристики 544 м² 8 этаж Под отделку
Преимущества
  • Класс А
  • Пешком от метро
  • Новое строительство
  • Кондиционирование и вентиляция
  • Свой паркинг

Продается офис общей площадью 544 кв.м в бизнес-центре "FILI RESIDENCE". .. подробнее

Презентация по предложению

Собираете информацию? Получите подробную презентацию в удобном формате!

БЕЗ КОМИССИИ ID: 1323839 Рейтинг9.0 КлассА

Москва, Кастанаевская улица, 16 с1

Багратионовская → 714 м
~ 7 мин
Стоимость 188 147 424 ₽ 514 100 ₽/м²
Характеристики 366 м² 7 этаж Под отделку
Преимущества
  • Класс А
  • Пешком от метро
  • Новое строительство
  • Кондиционирование и вентиляция
  • Свой паркинг

В продаже офисное помещение общей площадью 366 кв. метров в бизнес-центре "FILI RESIDENCE". .. подробнее

Презентация по предложению

Собираете информацию? Получите подробную презентацию в удобном формате!

БЕЗ КОМИССИИ ID: 1378220 Рейтинг9.0 КлассА

Москва, Кастанаевская улица, 16 с1

Багратионовская → 714 м
~ 7 мин
Стоимость 135 819 972 ₽ 526 400 ₽/м²
Характеристики 258 м² 8 этаж Под отделку
Преимущества
  • Класс А
  • Пешком от метро
  • Новое строительство
  • Кондиционирование и вентиляция
  • Свой паркинг

Продается офисный блок площадью 258 квадратных метров в бизнес-центре "FILI RESIDENCE". .. подробнее

Презентация по предложению

Собираете информацию? Получите подробную презентацию в удобном формате!

Посмотреть все похожие предложения
Отнеситесь рационально к процессу поиска нового офиса!

Просто ответьте на 3 вопроса, и наши специалисты сами предложат оптимальные варианты под ваш бюджет

.