8.2
Смотреть все фото
ВОЗМОЖНО ОСВОБОЖДЕНИЕ ID: 293561 Рейтинг7.0 КлассB+

Москва, улица Александра Солженицына, 23А с1

Таганская → 747 м
~ 7 мин
Арендная плата в месяц по запросу потенциального арендатора Срок освобождение в течение 3 месяцев

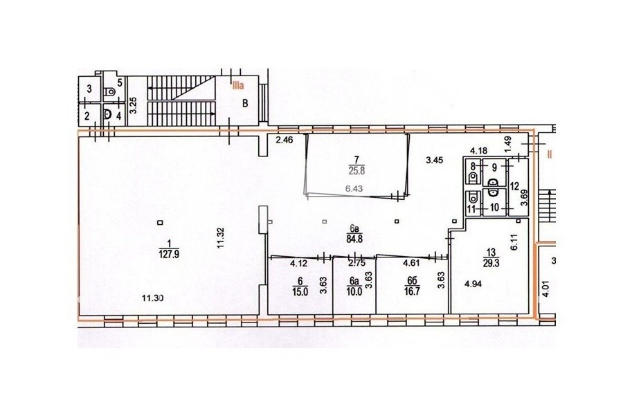
Информация по помещению

Ознакомьтесь с дополнительной информацией по помещению и коммерческим условиям!

Площадь 355 м²
Планировка Смешанная
Этаж 3

Описание

Преимущества
  • Класс B+
  • Пешком от метро
  • Кондиционирование и вентиляция
  • Свой паркинг

Коммерческие условия

Арендная плата по запросу
Ставка арендной платы по запросу
Эксплуатационные расходы Включены в ставку
Налоги С учётом НДС
Тип договора Прямая аренда
Срок договора от 11 месяцев
Размер платежей 1 месяц
Обеспечительный платеж 2 месяц
Статус Сдан

О бизнес-центре

Класс B+
Этажность 4
Лифты Нет
Общая площадь 6 160 м²
Год постройки 1882
Паркинг Наземный
Вентиляция приточно-вытяжная
Кондиционирование возможность установки
Телекоммуникации Интернет/Телефония

Расположение

Информация по помещению

Получите дополнительную информацию по помещению и коммерческом условиям!

Похожие предложения в других зданиях

БЕЗ КОМИССИИ ID: 1244028 Рейтинг8.3 КлассB

Москва, улица Станиславского, 20 с1

Площадь Ильича → 876 м
~ 9 мин
Арендная плата в месяц 1 099 988 ₽ 33 200 ₽/м² в год С учётом НДС
Характеристики 397 м² -1 - 2 этаж Готово к въезду
Преимущества
  • Класс B
  • Пешком от метро
  • Кондиционирование и вентиляция
  • Свой паркинг

Предлагается в долгосрочную аренду офисный блок класса B площадью 397 квадр. метров в бизнес-центре... подробнее

>

Виртуальный тур

Презентация по предложению

Собираете информацию? Получите подробную презентацию в удобном формате!

БЕЗ КОМИССИИ ID: 104610 Рейтинг8.6 КлассА

Москва, Таганская улица, 17-23

Марксистская → 503 м
~ 5 мин
Арендная плата в месяц 1 109 666 ₽ 32 900 ₽/м² в год С учётом НДС
Характеристики 405 м² 10 этаж Готово к въезду
Преимущества
  • Класс А
  • Пешком от метро
  • Кондиционирование и вентиляция
  • Свой паркинг

Собственник сдает в долгосрочную прямую аренду офис класса А общей площадью 405 квадратных метров в бизнес-центре "Мосэнка Парк Тауэрс"... подробнее

>

Виртуальный тур

Презентация по предложению

Собираете информацию? Получите подробную презентацию в удобном формате!

БЕЗ КОМИССИИ ID: 1319152 Рейтинг8.3 КлассА

Москва, Наставнический переулок, 17

Курская → 1.07 км
~ 11 мин
Арендная плата в месяц 1 319 170 ₽ 41 100 ₽/м² в год Упрощённая система налогообложения
Характеристики 385 м² 1 - 3 этаж Готово к въезду
Преимущества
  • Класс А
  • Пешком от метро
  • Кондиционирование и вентиляция
  • Свой паркинг
  • Несколько провайдеров связи

Сдается в прямую аренду офисный блок класса А площадью 385 квадр. метров в бизнес-центре "Bankside"... подробнее

Презентация по предложению

Собираете информацию? Получите подробную презентацию в удобном формате!

БЕЗ КОМИССИИ ID: 1380414 Рейтинг6.8 КлассB

Москва, улица Земляной Вал, 68/18 с5

Таганская → 405 м
~ 4 мин
Арендная плата в месяц 1 253 333 ₽ 40 000 ₽/м² в год Упрощённая система налогообложения
Характеристики 376 м² 4 этаж Готово к въезду
Преимущества
  • Класс B
  • Пешком от метро
  • Свой паркинг

Предлагаем в долгосрочную прямую аренду офисный блок класса B общей площадью 376 квадр. метров в бизнес-центре... подробнее

Презентация по предложению

Собираете информацию? Получите подробную презентацию в удобном формате!

БЕЗ КОМИССИИ ID: 296415 Рейтинг8.7 КлассB+

Москва, Марксистская улица, 16

Марксистская → 282 м
~ 3 мин
Арендная плата в месяц 826 667 ₽ 32 000 ₽/м² в год С учётом НДС
Характеристики 310 м² 6 этаж Готово к въезду
Преимущества
  • Класс B+
  • Пешком от метро
  • Кондиционирование и вентиляция
  • Свой паркинг

Предлагаем в долгосрочную аренду офисное помещение класса B+ общей площадью 310 кв.м в бизнес-центре "Мосаларко"... подробнее

Презентация по предложению

Собираете информацию? Получите подробную презентацию в удобном формате!

Посмотреть все похожие предложения
Отнеситесь рационально к процессу поиска нового офиса!

Просто ответьте на 3 вопроса, и наши специалисты сами предложат оптимальные варианты под ваш бюджет

.