8.2

Виртуальный тур

Смотреть все фото
БЕЗ КОМИССИИ ID: 1317929 Рейтинг8.6 КлассА
Бизнес-центр «Алгоритм»

Аренда офиса 1788 м²

Москва, улица Академика Пилюгина, 22

Новаторская → 1.09 км
~ 11 мин
Арендная плата в месяц 6 089 600 ₽ 40 900 ₽/м² в год С учётом НДС

Презентация по предложению

Собираете информацию? Получите подробную презентацию в удобном формате!

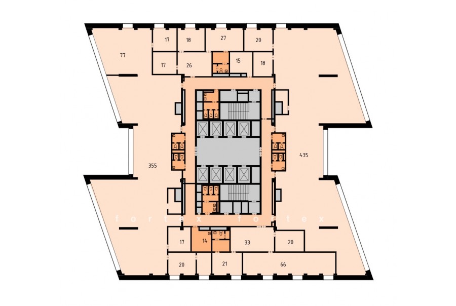
Площадь 1 788 м²
Состояние Готово к въезду
Планировка Смешанная
Этаж 6

Описание

Преимущества
  • Класс А
  • Пешком от метро
  • Кондиционирование и вентиляция
  • Свой паркинг
Сдается в долгосрочную аренду офисное помещение класса А площадью 1788 квадратных метров в бизнес-центре "Алгоритм".

Москва, ЮЗАО, улица Академика Пилюгина, 22

Удобная локация здания:
- Автомобиль: близость транспортных магистралей, таких как Профсоюзная улица, Ленинский проспект, Проспект Вернадского и других.
- Возможность аренды парковочных мест.
- Ближайшее метро: от метро "Новаторская" всего 11 мин пешком

Офис класса А:
- Помещение готово к въезду
- Вентиляция: Приточно-вытяжная вентиляция
- Кондиционирование: центральное
- Презентабельный центральный ресепшн
- Круглосуточная охрана и видеонаблюдение

Возможность заключения контракта в соответствии с 44ФЗ по госзакупкам.

Если данное предложение подходит Вашему запросу:

1. Мы подготовили презентацию с информацией о помещении, фотографиями и планировкой, чтобы Вы могли поделиться ей с коллегами или руководством. Попросите об этом нашего менеджера по телефону в объявлении.
2. Задайте любые вопросы менеджеру по телефону, готовы обсуждать любые предложения по финансовым условиям договора аренды.
3.

Звоните нам в любое время. По будням мы сможем ответить на Ваши вопросы до 19:00. В выходные или вечернее время мы передадим Ваш контакт нашему менеджеру по аренде.

Коммерческие условия

Арендная плата 6 089 630 ₽
Ставка арендной платы 40 900 ₽ м²/год
Эксплуатационные расходы Включены в ставку
Налоги С учётом НДС
Тип договора Прямая аренда
Срок договора от 11 месяцев
Размер платежей 1 месяц
Обеспечительный платеж 2 месяц
Статус Сдан

О бизнес-центре

Класс А
Этажность 19
Лифты Есть
Общая площадь 45 000 м²
Год постройки 2014
Паркинг Наземный
Вентиляция приточно-вытяжная
Кондиционирование центральное
Телекоммуникации Интернет/Телефония

Расположение

Подробная презентацию по предложению

Собираете информацию? Получите подробную презентацию в удобном формате, чтобы обсудить вариант с коллегами или переслать руководству!

Похожие предложения в других зданиях

БЕЗ КОМИССИИ ID: 1324307 Рейтинг9.0 КлассА

Москва, улица Обручева, 23к2 с3

Калужская → 819 м
~ 8 мин
Арендная плата в месяц 5 294 708 ₽ 41 500 ₽/м² в год С учётом НДС
Характеристики 1 531 м² 13 этаж Под отделку
Преимущества
  • Класс А
  • Пешком от метро
  • Кондиционирование и вентиляция
  • Свой паркинг

Предлагается в прямую аренду офис класса А общей площадью 1531 квадр. метров в бизнес-центре "Geolog"... подробнее

Презентация по предложению

Собираете информацию? Получите подробную презентацию в удобном формате!

БЕЗ КОМИССИИ ID: 1322466 Рейтинг8.3 КлассB

Москва, Ленинский проспект, 109

Новаторская → 1.18 км
~ 12 мин
Арендная плата в месяц 5 200 059 ₽ 37 300 ₽/м² в год Упрощённая система налогообложения
Характеристики 1 672 м² 6 этаж Готово к въезду
Преимущества
  • Класс B
  • Пешком от метро
  • Кондиционирование и вентиляция
  • Развитая инфраструктура

Сдается в долгосрочную аренду высококачественный сервисный офис на 127 рабочих мест в Офисно-торговом центре "ТРЦ РИО"... подробнее

Презентация по предложению

Собираете информацию? Получите подробную презентацию в удобном формате!

БЕЗ КОМИССИИ ID: 221700 Рейтинг9.0 КлассА

Москва, улица Обручева, 30/1 с1

Калужская → 799 м
~ 8 мин
Арендная плата в месяц 7 000 400 ₽ 44 400 ₽/м² в год С учётом НДС
Характеристики 1 892 м² 3 - 4 этаж Готово к въезду
Преимущества
  • Класс А
  • Пешком от метро
  • Кондиционирование и вентиляция
  • Свой паркинг
  • Несколько провайдеров связи
  • Развитая инфраструктура

Предлагаем в долгосрочную аренду офисное помещение класса А площадью 1892 кв. метров в бизнес-центре "Кругозор"... подробнее

Презентация по предложению

Собираете информацию? Получите подробную презентацию в удобном формате!

БЕЗ КОМИССИИ ID: 1324709 Рейтинг7.8 КлассB+

Москва, проспект Вернадского, 37 к2

Проспект Вернадского → 223 м
~ 2 мин
Арендная плата в месяц 7 500 000 ₽ 45 000 ₽/м² в год С учётом НДС
Характеристики 2 000 м² 6 - 7 этаж Под отделку
Преимущества
  • Класс B+
  • Пешком от метро
  • Кондиционирование и вентиляция
  • Свой паркинг
  • Развитая инфраструктура

Предлагается в долгосрочную прямую аренду офис класса B+ площадью 2000 квадратных метров в бизнес-центре... подробнее

Презентация по предложению

Собираете информацию? Получите подробную презентацию в удобном формате!

БЕЗ КОМИССИИ ID: 1373782 Рейтинг8.4 КлассА

Москва, улица Намёткина, 12А

Новые Черемушки → 1.15 км
~ 12 мин
Арендная плата в месяц 6 347 567 ₽ 38 200 ₽/м² в год С учётом НДС
Характеристики 1 994 м² 12 - 19 этаж Готово к въезду
Преимущества
  • Класс А
  • Пешком от метро
  • Кондиционирование и вентиляция
  • Свой паркинг
  • Развитая инфраструктура

Предлагаем в долгосрочную прямую аренду офис класса А общей площадью 1994 квадр. метров в бизнес-центре "Газойл Плаза"... подробнее

Презентация по предложению

Собираете информацию? Получите подробную презентацию в удобном формате!

Посмотреть все похожие предложения
Отнеситесь рационально к процессу поиска нового офиса!

Просто ответьте на 3 вопроса, и наши специалисты сами предложат оптимальные варианты под ваш бюджет

.