8.2
Смотреть все фото
БЕЗ КОМИССИИ ID: 166007 Рейтинг7.5 КлассB
Бизнес-центр «Альтеза»

Аренда офиса 2200 м²

Москва, Алтуфьевское шоссе, 44

Отрадное → 2.03 км
~ 10 мин
Арендная плата в месяц 2 200 000 ₽ 12 000 ₽/м² в год С учётом НДС

Презентация по предложению

Собираете информацию? Получите подробную презентацию в удобном формате!

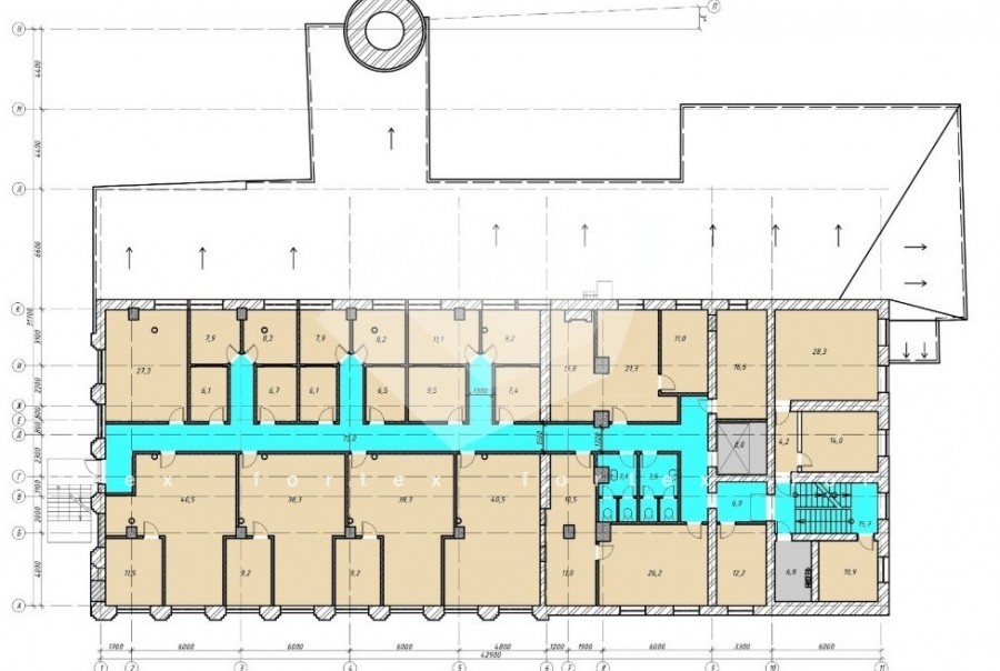
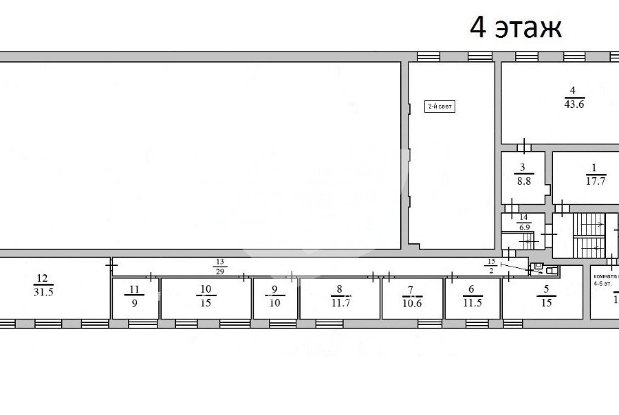
Площадь 2 200 м²
Состояние Готово к въезду
Планировка Открытая
Этаж 3

Описание

Преимущества
  • Класс B
  • Кондиционирование и вентиляция
  • Свой паркинг
  • Развитая инфраструктура
Предлагаем в прямую аренду помещение под офис класса B площадью 2200 квадр. метров в бизнес-центре "Альтеза".

Москва, СВАО, Алтуфьевское шоссе, 44

Характеристики местоположения:
- Автомобиль: близость транспортных магистралей, таких как Алтуфьевское шоссе и других.
- Возможность аренды парковочных мест.
- Ближайшее метро: метро "Отрадное", далее городской транспорт до здания

Офис класса B:
- Помещение с отделкой, готово к въезду
- Вентиляция: Приточно-вытяжная вентиляция
- Кондиционирование: центральное
- Круглосуточная охрана и видеонаблюдение
- Развитая инфраструктура внутри здания

Возможность заключения контракта в соответствии с 44ФЗ по госзакупкам.

Если предложение предварительно Вам подходит:

1. Мы отправим Вам подробную презентацию с планировкой и фотографиями в течение 10 минут после звонка, чтобы Вы могли поделиться информацией с руководством или с коллегами.
2. Задайте любые вопросы менеджеру по телефону, готовы обсуждать любые предложения по финансовым условиям договора аренды.
3. Проводим показы ежедневно, договоримся на удобное для Вас время. Можем организовать виртуальный тур по офисному блоку.

Вы можете позвонить нам в любое время. Мы ответим на Ваши вопросы по будням до 19:00, а поздно вечером или в выходные сможем передать Ваш контакт нашему менеджеру.

Коммерческие условия

Арендная плата 2 200 000 ₽
Ставка арендной платы 12 000 ₽ м²/год
Эксплуатационные расходы Включены в ставку
Налоги С учётом НДС
Тип договора Прямая аренда
Срок договора от 11 месяцев
Размер платежей 1 месяц
Обеспечительный платеж 1 месяц
Статус Сдан

О бизнес-центре

Класс B
Этажность 15
Лифты Есть
Общая площадь 21 000 м²
Год постройки 2006
Паркинг Наземный
Вентиляция приточно-вытяжная
Кондиционирование центральное
Телекоммуникации Интернет/Телефония

Расположение

Подробная презентацию по предложению

Собираете информацию? Получите подробную презентацию в удобном формате, чтобы обсудить вариант с коллегами или переслать руководству!

Похожие предложения в других зданиях

БЕЗ КОМИССИИ ID: 73023 Рейтинг6.2 КлассB

Москва, Шенкурский проезд, 3Б

Алтуфьево → 851 м
~ 9 мин
Арендная плата в месяц 1 935 000 ₽ 10 800 ₽/м² в год С учётом НДС
Характеристики 2 150 м² 1 - 4 этаж Готово к въезду
Преимущества
  • Класс B
  • Пешком от метро
  • Кондиционирование и вентиляция
  • Свой паркинг

Сдается в прямую аренду помещение под офис класса B площадью 2150 кв. метров в новом бизнес-центре... подробнее

Презентация по предложению

Собираете информацию? Получите подробную презентацию в удобном формате!

БЕЗ КОМИССИИ ID: 22299 Рейтинг6.5 КлассB

Москва, Дмитровское шоссе, 157

Алтуфьево → 3.9 км
~ 14 мин
Арендная плата в месяц 2 812 500 ₽ 13 500 ₽/м² в год С учётом НДС
Характеристики 2 500 м² 3 - 4 этаж Готово к въезду
Преимущества
  • Класс B
  • Кондиционирование и вентиляция
  • Свой паркинг
  • Развитая инфраструктура

Сдаем в долгосрочную аренду офисное помещение класса B площадью 2500 кв. метров в бизнес-центре "Гефест"... подробнее

Презентация по предложению

Собираете информацию? Получите подробную презентацию в удобном формате!

БЕЗ КОМИССИИ ID: 6305 Рейтинг6.5 КлассB

Москва, Дмитровское шоссе, 157

Алтуфьево → 3.9 км
~ 14 мин
Арендная плата в месяц 2 250 000 ₽ 13 500 ₽/м² в год С учётом НДС
Характеристики 2 000 м² 3 этаж Готово к въезду
Преимущества
  • Класс B
  • Кондиционирование и вентиляция
  • Свой паркинг
  • Развитая инфраструктура

Собственник сдает в долгосрочную аренду помещение под офис класса B площадью 2000 квадр. метров в бизнес-центре "Гефест"... подробнее

Презентация по предложению

Собираете информацию? Получите подробную презентацию в удобном формате!

БЕЗ КОМИССИИ ID: 1248479 Рейтинг5.2 КлассB

Москва, Ивовая улица, 2

Свиблово → 870 м
~ 9 мин
Арендная плата в месяц 2 000 000 ₽ 12 000 ₽/м² в год С учётом НДС
Характеристики 2 000 м² 2 - 3 этаж Готово к въезду
Преимущества
  • Класс B
  • Пешком от метро
  • Кондиционирование и вентиляция

Предлагается в долгосрочную аренду помещение под офис класса B площадью 2000 кв.м в историческом бизнес-центре... подробнее

Презентация по предложению

Собираете информацию? Получите подробную презентацию в удобном формате!

БЕЗ КОМИССИИ ID: 277690 Рейтинг7.0 КлассB+

Москва, МКАД, 88-й километр

Алтуфьево → 4.01 км
~ 20 мин
Арендная плата в месяц 1 840 667 ₽ 11 000 ₽/м² в год С учётом НДС
Характеристики 2 008 м² 3 - 5 этаж Под отделку
Преимущества
  • Класс B+
  • Кондиционирование и вентиляция
  • Свой паркинг

Сдаем в долгосрочную аренду помещение под офис класса B+ общей площадью 2008 кв. метров в новом бизнес-центре "Нагорное"... подробнее

Презентация по предложению

Собираете информацию? Получите подробную презентацию в удобном формате!

Посмотреть все похожие предложения
Отнеситесь рационально к процессу поиска нового офиса!

Просто ответьте на 3 вопроса, и наши специалисты сами предложат оптимальные варианты под ваш бюджет

.