8.2
Смотреть все фото
БЕЗ КОМИССИИ ID: 306031 Рейтинг7.0 КлассB
Бизнес-центр «Аптекарский 4»

Аренда офиса 1500 м²

Москва, Аптекарский переулок, 4

Бауманская → 767 м
~ 8 мин
Арендная плата в месяц 3 281 200 ₽ 26 200 ₽/м² в год С учётом НДС

Презентация по предложению

Собираете информацию? Получите подробную презентацию в удобном формате!

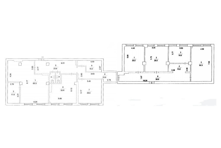
Площадь 1 500 м²
Состояние Готово к въезду
Планировка Кабинетная
Этаж 3 - 4

Описание

Преимущества
  • Класс B
  • Пешком от метро
  • Кондиционирование и вентиляция
  • Свой паркинг
Предлагается в долгосрочную аренду помещение под офис класса B площадью 1500 кв.м в бизнес-центре.

Москва, ЦАО, Аптекарский переулок, 4

Удобная локация здания:
- Автомобиль: близость транспортных магистралей, таких как Третье Транспортное Кольцо и других.
- Возможность аренды парковочных мест.
- Ближайшее метро: от метро "Бауманская" всего 7 мин пешком

Офис класса B:
- Помещение с отделкой, готово к въезду
- Вентиляция: Приточно-вытяжная вентиляция
- Кондиционирование: сплит-системы


Что еще можно узнать о предложении:

1. Мы подготовили презентацию с информацией о помещении, фотографиями и планировкой, чтобы Вы могли поделиться ей с коллегами или руководством. Попросите об этом нашего менеджера по телефону в объявлении.
2. Мы готовы ответить на любые Ваши вопросы о помещении и коммерческих условиях аренды.
3. Оперативно организуем просмотр помещения с менеджерами на объекте или подготовим виртуальный тур.

Звоните нам в любое время. По будням мы сможем ответить на Ваши вопросы до 19:00. В выходные или вечернее время мы передадим Ваш контакт нашему менеджеру по аренде.

Коммерческие условия

Арендная плата 3 125 000 ₽
Ставка арендной платы 26 200 ₽ м²/год
Эксплуатационные расходы Включены в ставку
Налоги С учётом НДС
Тип договора Прямая аренда
Срок договора от 11 месяцев
Размер платежей 1 месяц
Обеспечительный платеж 1 месяц
Статус Сдан

О бизнес-центре

Класс B
Этажность 6
Лифты Есть
Общая площадь 3 200 м²
Год постройки 1977
Паркинг Наземный
Вентиляция приточно-вытяжная
Кондиционирование сплит-системы
Телекоммуникации Интернет/Телефония

Расположение

Подробная презентацию по предложению

Собираете информацию? Получите подробную презентацию в удобном формате, чтобы обсудить вариант с коллегами или переслать руководству!

Похожие предложения в других зданиях

БЕЗ КОМИССИИ ID: 145974 Рейтинг8.0 КлассА

Москва, Доброслободская улица, 3

Бауманская → 818 м
~ 8 мин
Арендная плата в месяц 2 587 500 ₽ 23 000 ₽/м² в год С учётом НДС
Характеристики 1 350 м² 5 - 6 этаж Готово к въезду
Преимущества
  • Класс А
  • Пешком от метро
  • Кондиционирование и вентиляция
  • Свой паркинг
  • Несколько провайдеров связи
  • Развитая инфраструктура

Предлагается в прямую аренду офисный блок класса А площадью 1350 кв.м в бизнес-центре "Басманов"... подробнее

Презентация по предложению

Собираете информацию? Получите подробную презентацию в удобном формате!

БЕЗ КОМИССИИ ID: 17883 Рейтинг6.0 КлассB

Москва, Плетешковский переулок, 3 с2

Бауманская → 327 м
~ 3 мин
Арендная плата в месяц 2 660 000 ₽ 22 800 ₽/м² в год С учётом НДС
Характеристики 1 400 м² 3 этаж Готово к въезду
Преимущества
  • Класс B
  • Пешком от метро
  • Кондиционирование и вентиляция

Предлагаем в прямую аренду офисное помещение класса B площадью 1400 квадратных метров в бизнес-центре... подробнее

Презентация по предложению

Собираете информацию? Получите подробную презентацию в удобном формате!

БЕЗ КОМИССИИ ID: 111031 Рейтинг8.3 КлассА

Москва, Нижняя Красносельская улица, 39 с1

Бауманская → 425 м
~ 4 мин
Арендная плата в месяц 4 240 000 ₽ 30 000 ₽/м² в год С учётом НДС
Характеристики 1 696 м² 5 - 7 этаж Готово к въезду
Преимущества
  • Класс А
  • Пешком от метро
  • Кондиционирование и вентиляция
  • Свой паркинг
  • Развитая инфраструктура

Сдается в долгосрочную аренду офисный блок класса А площадью 1696 квадр. метров в бизнес-центре "PALLAU-NK"... подробнее

Презентация по предложению

Собираете информацию? Получите подробную презентацию в удобном формате!

БЕЗ КОМИССИИ ID: 113496 Рейтинг7.1 КлассB+

Москва, Ольховская улица, 4 к1

Комсомольская → 874 м
~ 9 мин
Арендная плата в месяц 3 604 167 ₽ 25 000 ₽/м² в год С учётом НДС
Характеристики 1 730 м² 1 этаж Под отделку
Преимущества
  • Класс B+
  • Пешком от метро
  • Кондиционирование и вентиляция
  • Свой паркинг

Предлагается в долгосрочную аренду офисный блок класса B+ общей площадью 1730 кв.м в бизнес-центре "Ольховский"... подробнее

Презентация по предложению

Собираете информацию? Получите подробную презентацию в удобном формате!

БЕЗ КОМИССИИ ID: 167818 Рейтинг8.6 КлассА

Москва, Ольховская улица, 4 к1

Комсомольская → 874 м
~ 9 мин
Арендная плата в месяц 2 814 583 ₽ 25 000 ₽/м² в год С учётом НДС
Характеристики 1 351 м² 3 этаж Готово к въезду
Преимущества
  • Класс А
  • Пешком от метро
  • Кондиционирование и вентиляция
  • Свой паркинг

Сдается в долгосрочную аренду офисный блок класса А общей площадью 1351 кв.м в бизнес-центре "Мельникофф Хаус"... подробнее

Презентация по предложению

Собираете информацию? Получите подробную презентацию в удобном формате!

Посмотреть все похожие предложения
Отнеситесь рационально к процессу поиска нового офиса!

Просто ответьте на 3 вопроса, и наши специалисты сами предложат оптимальные варианты под ваш бюджет

.