8.2
Смотреть все фото
ВОЗМОЖНО ОСВОБОЖДЕНИЕ ID: 286355 Рейтинг7.6 КлассB+
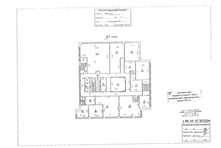
Бизнес-центр «Арбат»

Аренда офиса 350 м²

Москва, улица Ефремова, 12 с2

Фрунзенская → 665 м
~ 7 мин
Арендная плата в месяц по запросу потенциального арендатора Срок освобождение в течение 3 месяцев

Информация по помещению

Ознакомьтесь с дополнительной информацией по помещению и коммерческим условиям!

Площадь 350 м²
Планировка Кабинетная
Этаж 6

Описание

Преимущества
  • Класс B+
  • Пешком от метро
  • Кондиционирование и вентиляция
  • Свой паркинг

Коммерческие условия

Арендная плата по запросу
Ставка арендной платы по запросу
Эксплуатационные расходы Включены в ставку
Налоги С учётом НДС
Тип договора Прямая аренда
Срок договора от 11 месяцев
Размер платежей 1 месяц
Обеспечительный платеж 2 месяц
Статус Сдан

О бизнес-центре

Класс B+
Этажность 6
Лифты Есть
Общая площадь 5 000 м²
Паркинг Подземный
Вентиляция приточно-вытяжная
Кондиционирование центральное
Телекоммуникации Интернет/Телефония

Расположение

Информация по помещению

Получите дополнительную информацию по помещению и коммерческом условиям!

Похожие предложения в других зданиях

БЕЗ КОМИССИИ ID: 253237 Рейтинг7.9 КлассB

Москва, Усачёва улица, 22

Спортивная → 691 м
~ 7 мин
Арендная плата в месяц 575 000 ₽ 23 000 ₽/м² в год С учётом НДС
Характеристики 300 м² 1 этаж Отделка под арендатора
Преимущества
  • Класс B
  • Пешком от метро
  • Кондиционирование и вентиляция
  • Свой паркинг

Сдается в аренду офис класса B общей площадью 300 кв. метров в бизнес-центре... подробнее

Презентация по предложению

Собираете информацию? Получите подробную презентацию в удобном формате!

БЕЗ КОМИССИИ ID: 163180 Рейтинг6.1 КлассB

Москва, Малая Пироговская улица, 13 с1

Спортивная → 884 м
~ 9 мин
Арендная плата в месяц 622 917 ₽ 23 000 ₽/м² в год С учётом НДС
Характеристики 325 м² 4 этаж Готово к въезду
Преимущества
  • Класс B
  • Пешком от метро
  • Кондиционирование и вентиляция
  • Свой паркинг
  • Развитая инфраструктура

Предлагаем в долгосрочную аренду офисное помещение класса B площадью 325 кв. метров в историческом бизнес-центре "П13"... подробнее

Презентация по предложению

Собираете информацию? Получите подробную презентацию в удобном формате!

БЕЗ КОМИССИИ ID: 281907 Рейтинг6.6 КлассB

Москва, Малая Пироговская улица, 18 с1

Спортивная → 671 м
~ 7 мин
Арендная плата в месяц 766 667 ₽ 23 000 ₽/м² в год С учётом НДС
Характеристики 400 м² 3 этаж Готово к въезду
Преимущества
  • Класс B
  • Пешком от метро
  • Кондиционирование и вентиляция
  • Свой паркинг
  • Несколько провайдеров связи
  • Развитая инфраструктура

Предлагаем в долгосрочную аренду офис класса B площадью 400 кв. метров в историческом недавно отреконструированном бизнес-центре... подробнее

Презентация по предложению

Собираете информацию? Получите подробную презентацию в удобном формате!

БЕЗ КОМИССИИ ID: 1116148 Рейтинг6.6 КлассB

Москва, Малая Пироговская улица, 18 с1

Спортивная → 671 м
~ 7 мин
Арендная плата в месяц 577 500 ₽ 23 100 ₽/м² в год С учётом НДС
Характеристики 300 м² 5 этаж Готово к въезду
Преимущества
  • Класс B
  • Пешком от метро
  • Кондиционирование и вентиляция
  • Свой паркинг
  • Несколько провайдеров связи
  • Развитая инфраструктура

Предлагаем в долгосрочную аренду помещение под офис класса B общей площадью 300 кв. метров в историческом недавно отреконструированном бизнес-центре... подробнее

>

Виртуальный тур

Презентация по предложению

Собираете информацию? Получите подробную презентацию в удобном формате!

БЕЗ КОМИССИИ ID: 281189 Рейтинг8.2 КлассB

Москва, Усачёва улица, 35 с1

Спортивная → 267 м
~ 3 мин
Арендная плата в месяц 720 000 ₽ 24 000 ₽/м² в год С учётом НДС
Характеристики 360 м² 4 этаж Готово к въезду
Преимущества
  • Класс B
  • Пешком от метро
  • Кондиционирование и вентиляция
  • Свой паркинг
  • Несколько провайдеров связи

Сдается в прямую аренду офисное помещение класса B общей площадью 360 кв.м в бизнес-центре... подробнее

Презентация по предложению

Собираете информацию? Получите подробную презентацию в удобном формате!

Посмотреть все похожие предложения
Отнеситесь рационально к процессу поиска нового офиса!

Просто ответьте на 3 вопроса, и наши специалисты сами предложат оптимальные варианты под ваш бюджет

.