8.2
Смотреть все фото
ВОЗМОЖНО ОСВОБОЖДЕНИЕ ID: 273750 Рейтинг7.5 КлассB+
Бизнес-центр «Арт Плаза»

Аренда офиса 1060 м²

Москва, Лужнецкая набережная, 2/4 с4

Воробьевы горы → 1.26 км
~ 13 мин
Арендная плата в месяц по запросу потенциального арендатора Срок освобождение в течение 3 месяцев

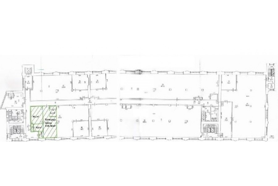
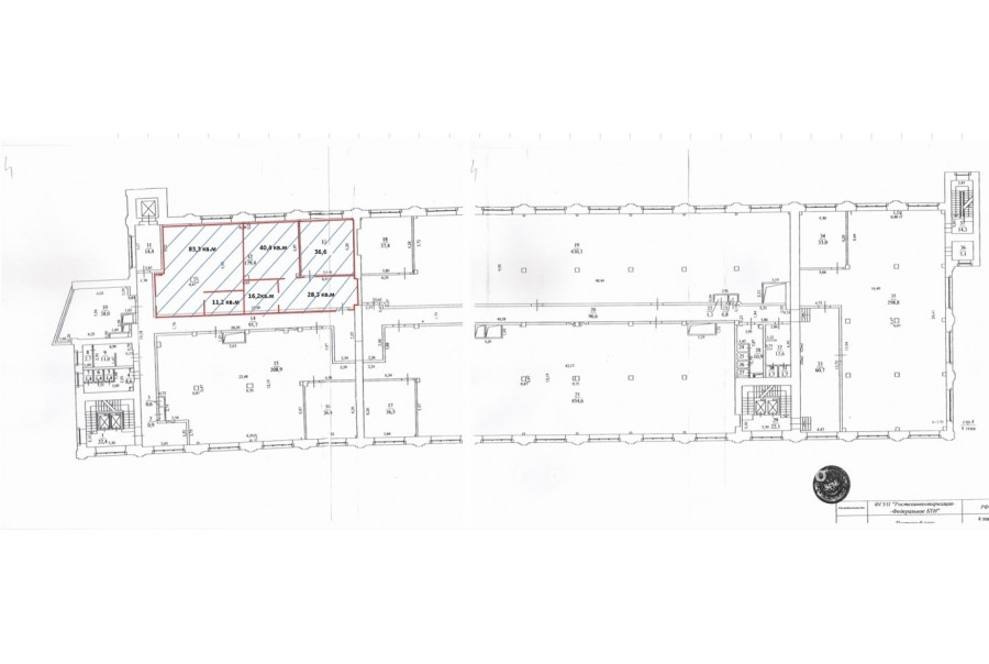
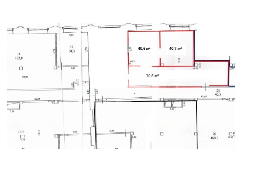
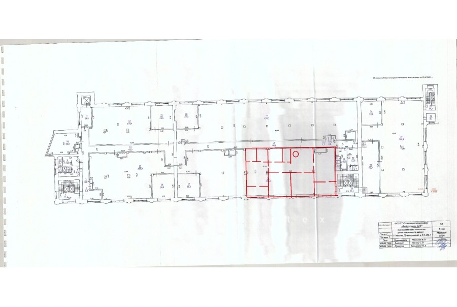
Информация по помещению

Ознакомьтесь с дополнительной информацией по помещению и коммерческим условиям!

Площадь 1 060 м²
Планировка Смешанная
Этаж 3 - 4

Описание

Преимущества
  • Класс B+
  • Пешком от метро
  • Кондиционирование и вентиляция
  • Свой паркинг
  • Несколько провайдеров связи

Коммерческие условия

Арендная плата по запросу
Ставка арендной платы по запросу
Эксплуатационные расходы Включены в ставку
Налоги С учётом НДС
Тип договора Прямая аренда
Срок договора от 11 месяцев
Размер платежей 1 месяц
Обеспечительный платеж 2 месяц
Статус Сдан

О бизнес-центре

Класс B+
Этажность 6
Лифты Есть
Общая площадь 15 371 м²
Год постройки 2007
Паркинг Наземный
Вентиляция приточно-вытяжная
Кондиционирование центральное
Телекоммуникации Интернет/Телефония

Расположение

Информация по помещению

Получите дополнительную информацию по помещению и коммерческом условиям!

Похожие предложения в других зданиях

БЕЗ КОМИССИИ ID: 3551 Рейтинг9.1 КлассB+

Москва, улица Хамовнический Вал, 26А

Спортивная → 511 м
~ 5 мин
Арендная плата в месяц 2 280 000 ₽ 22 800 ₽/м² в год С учётом НДС
Характеристики 1 200 м² 3 этаж Под отделку
Преимущества
  • Класс B+
  • Пешком от метро
  • Кондиционирование и вентиляция
  • Свой паркинг

Предлагаем в долгосрочную прямую аренду офисное помещение класса B+ общей площадью 1200 кв. метров в бизнес-центре... подробнее

Презентация по предложению

Собираете информацию? Получите подробную презентацию в удобном формате!

ВОЗМОЖНО ОСВОБОЖДЕНИЕ ID: 291941 Рейтинг8.2 КлассB

Москва, Усачёва улица, 35 с1

Спортивная → 267 м
~ 3 мин
Арендная плата в месяц 2 112 000 ₽ 24 000 ₽/м² в год С учётом НДС
Характеристики 1 056 м² 4 - 5 этаж Готово к въезду
Преимущества
  • Класс B
  • Пешком от метро
  • Кондиционирование и вентиляция
  • Свой паркинг
  • Несколько провайдеров связи

Предлагаем в долгосрочную аренду помещение под офис класса B площадью 1056 кв.м в бизнес-центре... подробнее

Презентация по предложению

Собираете информацию? Получите подробную презентацию в удобном формате!

БЕЗ КОМИССИИ ID: 149230 Рейтинг8.1 КлассB+

Москва, Усачёва улица, 33 с1

Спортивная → 250 м
~ 3 мин
Арендная плата в месяц 1 674 750 ₽ 21 000 ₽/м² в год С учётом НДС
Характеристики 957 м² 5 - 7 этаж Готово к въезду
Преимущества
  • Класс B+
  • Пешком от метро
  • Кондиционирование и вентиляция
  • Свой паркинг
  • Несколько провайдеров связи

Предлагается в долгосрочную прямую аренду помещение под офис класса B+ общей площадью 957 кв. метров в бизнес-центре "Спектр Хамовники"... подробнее

Презентация по предложению

Собираете информацию? Получите подробную презентацию в удобном формате!

БЕЗ КОМИССИИ ID: 302036 Рейтинг6.7 КлассB

Москва, улица Вавилова, 1

Ленинский проспект → 516 м
~ 5 мин
Арендная плата в месяц 1 691 667 ₽ 20 300 ₽/м² в год С учётом НДС
Характеристики 1 000 м² 2 этаж Готово к въезду
Преимущества
  • Класс B
  • Пешком от метро
  • Кондиционирование и вентиляция

Предлагаем в прямую аренду офисный блок класса B площадью 1000 квадратных метров в бизнес-центре... подробнее

Презентация по предложению

Собираете информацию? Получите подробную презентацию в удобном формате!

БЕЗ КОМИССИИ ID: 253727 Рейтинг6.6 КлассB

Москва, Малая Пироговская улица, 18 с1

Спортивная → 671 м
~ 7 мин
Арендная плата в месяц 1 932 000 ₽ 22 400 ₽/м² в год С учётом НДС
Характеристики 1 035 м² 4 - 5 этаж Готово к въезду
Преимущества
  • Класс B
  • Пешком от метро
  • Кондиционирование и вентиляция
  • Свой паркинг
  • Несколько провайдеров связи
  • Развитая инфраструктура

Сдаем в долгосрочную аренду офисный блок класса B общей площадью 1035 квадр. метров в историческом недавно отреконструированном бизнес-центре... подробнее

Презентация по предложению

Собираете информацию? Получите подробную презентацию в удобном формате!

Посмотреть все похожие предложения
Отнеситесь рационально к процессу поиска нового офиса!

Просто ответьте на 3 вопроса, и наши специалисты сами предложат оптимальные варианты под ваш бюджет

.