8.2
Смотреть все фото
БЕЗ КОМИССИИ ID: 1328807 Рейтинг8.9 КлассB+
Жилой дом «Art Residence»

Аренда офиса 190 м²

Москва, 3-я улица Ямского Поля, 9

Белорусская → 763 м
~ 8 мин
Арендная плата в месяц 839 200 ₽ 53 000 ₽/м² в год С учётом НДС

Презентация по предложению

Собираете информацию? Получите подробную презентацию в удобном формате!

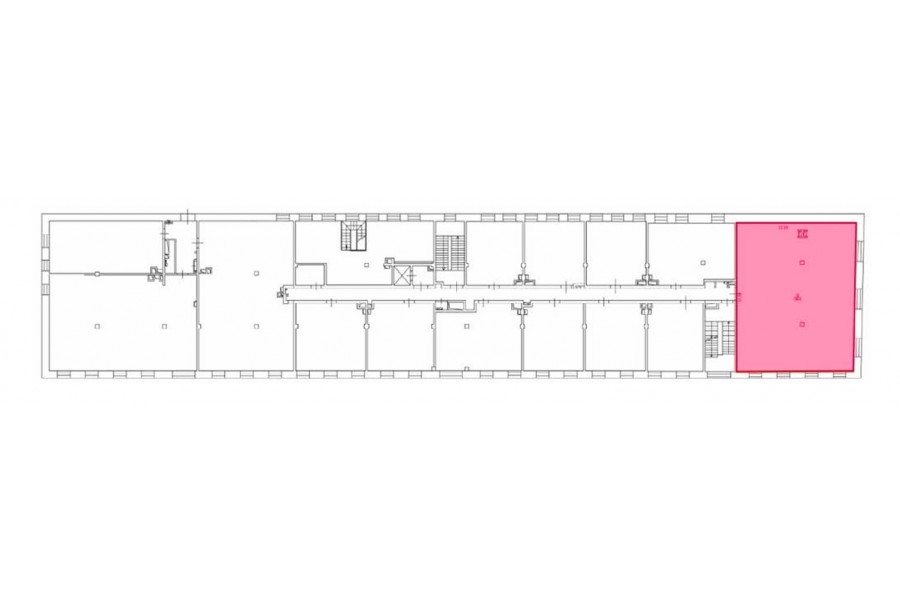
Площадь 190 м²
Состояние Под отделку
Планировка Открытая
Этаж 2

Описание

Преимущества
  • Класс B+
  • Пешком от метро
  • Кондиционирование и вентиляция
  • Свой паркинг
Предлагается в прямую аренду офисное помещение класса B+ площадью 190 квадратных метров в жилом комплексе "Art Residence".

Москва, САО, 3-я улица Ямского Поля, 9

Удобная локация здания:
- Автомобиль: близость транспортных магистралей, таких как Ленинградский проспект и других.
- Возможность аренды парковочных мест.
- Ближайшее метро: от метро "Белорусская" всего 7 мин пешком

Офис класса B+:
- Офис без отделки
- Вентиляция: Приточно-вытяжная вентиляция
- Кондиционирование: сплит-системы


Если предложение предварительно Вам подходит:

1. Мы подготовили презентацию с информацией о помещении, фотографиями и планировкой, чтобы Вы могли поделиться ей с коллегами или руководством. Попросите об этом нашего менеджера по телефону в объявлении.
2. Задайте любые вопросы менеджеру по телефону, готовы обсуждать любые предложения по финансовым условиям договора аренды.
3. Оперативно организуем просмотр помещения, договоримся на любое удобное время, подготовим виртуальный тур.

Вы можете позвонить нам в любое время. Мы ответим на Ваши вопросы по будням до 19:00, а поздно вечером или в выходные зафиксируем Ваш контакт и перезвоним в рабочее время.

Коммерческие условия

Арендная плата 839 170 ₽
Ставка арендной платы 50 000 ₽ м²/год
Эксплуатационные расходы 3 000 ₽
Налоги С учётом НДС
Тип договора Прямая аренда
Срок договора Долгосрочный
Размер платежей 1 месяц
Обеспечительный платеж 2 месяц
Статус Свободен

О бизнес-центре

Класс B+
Этажность 6
Лифты Есть
Общая площадь 0 м²
Год постройки 2014
Паркинг Наземный крытый
Вентиляция приточно-вытяжная
Кондиционирование сплит-системы
Телекоммуникации Интернет/Телефония

Расположение

Подробная презентацию по предложению

Собираете информацию? Получите подробную презентацию в удобном формате, чтобы обсудить вариант с коллегами или переслать руководству!

Похожие предложения в других зданиях

БЕЗ КОМИССИИ ID: 1329891 Рейтинг7.0 КлассB

Москва, улица Бутырский Вал, 20

Белорусская → 390 м
~ 4 мин
Арендная плата в месяц 772 000 ₽ 48 000 ₽/м² в год С учётом НДС
Характеристики 193 м² 2 этаж Готово к въезду
Преимущества
  • Класс B
  • Пешком от метро
  • Свой паркинг

Предлагается в долгосрочную прямую аренду офисное помещение класса B общей площадью 193 квадратных метров в историческом бизнес-центре... подробнее

Презентация по предложению

Собираете информацию? Получите подробную презентацию в удобном формате!

БЕЗ КОМИССИИ ID: 503979 Рейтинг8.6 КлассА

Москва, Новослободская улица, 23

Менделеевская → 12 м
~ 0 мин
Арендная плата в месяц 850 000 ₽ 50 000 ₽/м² в год С учётом НДС
Характеристики 204 м² 4 этаж Готово к въезду
Преимущества
  • Класс А
  • Пешком от метро
  • Кондиционирование и вентиляция
  • Свой паркинг
  • Несколько провайдеров связи
  • Развитая инфраструктура

Предлагается в прямую аренду офисный блок класса А общей площадью 204 квадратных метров в бизнес-центре "Мейерхольд"... подробнее

Презентация по предложению

Собираете информацию? Получите подробную презентацию в удобном формате!

БЕЗ КОМИССИИ ID: 971140 Рейтинг8.6 КлассА

Москва, Новослободская улица, 23

Менделеевская → 12 м
~ 0 мин
Арендная плата в месяц 804 167 ₽ 50 000 ₽/м² в год С учётом НДС
Характеристики 193 м² 3 этаж Готово к въезду
Преимущества
  • Класс А
  • Пешком от метро
  • Кондиционирование и вентиляция
  • Свой паркинг
  • Несколько провайдеров связи
  • Развитая инфраструктура

Предлагаем в долгосрочную аренду помещение под офис класса А площадью 193 кв.м в бизнес-центре "Мейерхольд"... подробнее

>

Виртуальный тур

Презентация по предложению

Собираете информацию? Получите подробную презентацию в удобном формате!

БЕЗ КОМИССИИ ID: 1326656 Рейтинг7.3 КлассB+

Москва, Средний Тишинский переулок, 28

Белорусская → 846 м
~ 8 мин
Арендная плата в месяц 648 125 ₽ 45 800 ₽/м² в год С учётом НДС
Характеристики 170 м² 2 этаж Готово к въезду
Преимущества
  • Класс B+
  • Пешком от метро
  • Кондиционирование и вентиляция
  • Несколько провайдеров связи
  • Развитая инфраструктура

Сдается в прямую аренду офис класса B+ площадью 170 кв.м в бизнес-центре "Чайка Плаза 2"... подробнее

>

Виртуальный тур

Презентация по предложению

Собираете информацию? Получите подробную презентацию в удобном формате!

БЕЗ КОМИССИИ ID: 1300230 Рейтинг8.9 КлассА

Москва, Долгоруковская улица, 7

Новослободская → 687 м
~ 7 мин
Арендная плата в месяц 941 001 ₽ 52 500 ₽/м² в год С учётом НДС
Характеристики 215 м² 10 этаж Готово к въезду
Преимущества
  • Класс А
  • Пешком от метро
  • Кондиционирование и вентиляция
  • Развитая инфраструктура

Сдается в прямую аренду помещение под офис класса А общей площадью 215 квадратных метров в бизнес-центре "Садовая Плаза"... подробнее

Презентация по предложению

Собираете информацию? Получите подробную презентацию в удобном формате!

Посмотреть все похожие предложения
Отнеситесь рационально к процессу поиска нового офиса!

Просто ответьте на 3 вопроса, и наши специалисты сами предложат оптимальные варианты под ваш бюджет

.