8.2
Смотреть все фото
БЕЗ КОМИССИИ ID: 1204785 Рейтинг9.1 КлассА
Бизнес-центр «Атлантик»

Аренда офиса 174 м²

Москва, улица Можайский Вал, 8

Киевская → 787 м
~ 8 мин
Арендная плата в месяц 652 500 ₽ 45 000 ₽/м² в год С учётом НДС

Презентация по предложению

Собираете информацию? Получите подробную презентацию в удобном формате!

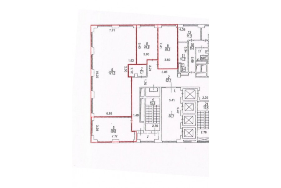
Площадь 174 м²
Состояние Готово к въезду
Планировка Открытая
Этаж 3

Описание

Преимущества
  • Класс А
  • Пешком от метро
  • Кондиционирование и вентиляция
  • Свой паркинг
Сдается в прямую аренду помещение под офис класса А общей площадью 174 квадр. метров в новом бизнес-центре "Атлантик".

Москва, ЗАО, улица Можайский Вал, 8

Удобная локация здания:
- Автомобиль: близость транспортных магистралей, таких как Кутузовский проспект и других.
- Возможность аренды парковочных мест.
- Ближайшее метро: от метро "Киевская" всего 9 мин пешком

Офис класса А:
- Помещение готово к въезду
- Вентиляция: Приточно-вытяжная вентиляция
- Кондиционирование: центральное
- Презентабельный центральный рецепшн
- Круглосуточная охрана и видеонаблюдение


Что еще можно узнать о предложении:

1. Мы отправим Вам подробную презентацию с планировкой и фотографиями в течение 10 минут после звонка, чтобы Вы могли поделиться информацией с руководством или с коллегами.
2. Ответим на любые Ваши вопросы, готовы обсуждать любые предложения по коммерческим условиям аренды помещения.
3. Оперативно организуем просмотр помещения, договоримся на любое удобное время, подготовим виртуальный тур.

Вы можете позвонить нам в любое время. Мы ответим на Ваши вопросы по будням до 19:00, а поздно вечером или в выходные сможем передать Ваш контакт нашему менеджеру.

Коммерческие условия

Арендная плата 652 500 ₽
Ставка арендной платы 45 000 ₽ м²/год
Эксплуатационные расходы Включены в ставку
Налоги С учётом НДС
Тип договора Прямая аренда
Срок договора от 11 месяцев
Размер платежей 1 месяц
Обеспечительный платеж 1 месяц
Статус Сдан

О бизнес-центре

Класс А
Этажность 16
Лифты Есть
Общая площадь 13 500 м²
Год постройки 2014
Паркинг Подземный
Вентиляция приточно-вытяжная
Кондиционирование центральное
Телекоммуникации Интернет/Телефония

Расположение

Подробная презентацию по предложению

Собираете информацию? Получите подробную презентацию в удобном формате, чтобы обсудить вариант с коллегами или переслать руководству!

Похожие предложения в других зданиях

БЕЗ КОМИССИИ ID: 1307193 Рейтинг8.3 КлассB+

Москва, Краснопресненская набережная, 8

Краснопресненская → 1.21 км
~ 12 мин
Арендная плата в месяц 681 188 ₽ 47 200 ₽/м² в год С учётом НДС
Характеристики 173 м² 2 этаж Готово к въезду
Преимущества
  • Класс B+
  • Пешком от метро
  • Кондиционирование и вентиляция
  • Свой паркинг

Предлагаем в долгосрочную прямую аренду офисное помещение класса B+ площадью 173 кв.м в бизнес-центре "Капитал"... подробнее

>

Виртуальный тур

Презентация по предложению

Собираете информацию? Получите подробную презентацию в удобном формате!

БЕЗ КОМИССИИ ID: 1380603 Рейтинг9.6 КлассА

Москва, Пресненская набережная, 16Б

Международная → 53 м
~ 1 мин
Арендная плата в месяц 600 000 ₽ 45 000 ₽/м² в год Упрощённая система налогообложения
Характеристики 160 м² 28 этаж Готово к въезду
Преимущества
  • Класс А
  • Пешком от метро
  • Кондиционирование и вентиляция
  • Свой паркинг

Сдается в прямую аренду офисное помещение класса А площадью 160 квадр. метров в бизнес-центре "Око"... подробнее

Презентация по предложению

Собираете информацию? Получите подробную презентацию в удобном формате!

БЕЗ КОМИССИИ ID: 1304868 Рейтинг8.3 КлассB

Москва, Шмитовский проезд, 3 с3

Улица 1905 года → 960 м
~ 10 мин
Арендная плата в месяц 682 500 ₽ 42 000 ₽/м² в год С учётом НДС
Характеристики 195 м² 4 этаж Готово к въезду
Преимущества
  • Класс B
  • Пешком от метро
  • Кондиционирование и вентиляция
  • Свой паркинг
  • Развитая инфраструктура

Предлагаем в прямую аренду офисное помещение класса B площадью 195 квадратных метров в бизнес-центре... подробнее

>

Виртуальный тур

Презентация по предложению

Собираете информацию? Получите подробную презентацию в удобном формате!

БЕЗ КОМИССИИ ID: 1379353 Рейтинг8.8 КлассА

Москва, Поклонная улица, 3

Кутузовская → 519 м
~ 5 мин
Арендная плата в месяц 928 115 ₽ 62 200 ₽/м² в год С учётом НДС
Характеристики 179 м² 11 этаж Готово к въезду
Преимущества
  • Класс А
  • Пешком от метро
  • Кондиционирование и вентиляция
  • Свой паркинг
  • Развитая инфраструктура

Сдается в долгосрочную прямую аренду офисное помещение класса А общей площадью 179 квадратных метров в бизнес-центре "Poklonka Place"... подробнее

Презентация по предложению

Собираете информацию? Получите подробную презентацию в удобном формате!

БЕЗ КОМИССИИ ID: 282772 Рейтинг8.5 КлассB+

Москва, Панфиловский переулок, 4 с1

Смоленская → 449 м
~ 4 мин
Арендная плата в месяц 500 000 ₽ 40 000 ₽/м² в год С учётом НДС
Характеристики 150 м² 1 этаж Готово к въезду
Преимущества
  • Класс B+
  • Пешком от метро
  • Кондиционирование и вентиляция
  • Свой паркинг

Предлагается в прямую аренду офисный блок класса B+ общей площадью 150 кв. метров в бизнес-центре... подробнее

Презентация по предложению

Собираете информацию? Получите подробную презентацию в удобном формате!

Посмотреть все похожие предложения
Отнеситесь рационально к процессу поиска нового офиса!

Просто ответьте на 3 вопроса, и наши специалисты сами предложат оптимальные варианты под ваш бюджет

.