8.2
Смотреть все фото
ВОЗМОЖНО ОСВОБОЖДЕНИЕ ID: 169829 Рейтинг7.7 КлассB+
Бизнес-центр «АТВ»

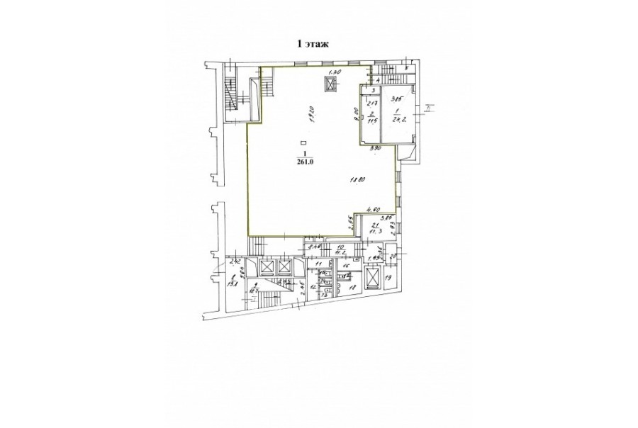
Аренда офиса 261 м²

Москва, 2-й Казачий переулок, 11 с1

Добрынинская → 639 м
~ 6 мин
Арендная плата в месяц по запросу потенциального арендатора Срок освобождение в течение 3 месяцев

Информация по помещению

Ознакомьтесь с дополнительной информацией по помещению и коммерческим условиям!

Площадь 261 м²
Планировка Смешанная
Этаж 1

Описание

Преимущества
  • Класс B+
  • Пешком от метро
  • Кондиционирование и вентиляция
  • Свой паркинг
  • Несколько провайдеров связи

Коммерческие условия

Арендная плата по запросу
Ставка арендной платы по запросу
Эксплуатационные расходы Включены в ставку
Налоги С учётом НДС
Тип договора Прямая аренда
Срок договора от 11 месяцев
Размер платежей 1 месяц
Обеспечительный платеж 1 месяц
Статус Сдан

О бизнес-центре

Класс B+
Этажность 6
Лифты Есть
Общая площадь 4 964 м²
Год постройки 1897
Паркинг Наземный
Вентиляция приточно-вытяжная
Кондиционирование сплит-системы
Телекоммуникации Интернет/Телефония

Расположение

Информация по помещению

Получите дополнительную информацию по помещению и коммерческом условиям!

Похожие предложения в других зданиях

БЕЗ КОМИССИИ ID: 292227 Рейтинг6.7 КлассB

Москва, улица Большая Полянка, 54

Добрынинская → 340 м
~ 3 мин
Арендная плата в месяц 575 000 ₽ 23 000 ₽/м² в год С учётом НДС
Характеристики 300 м² 4 этаж Готово к въезду
Преимущества
  • Класс B
  • Пешком от метро
  • Кондиционирование и вентиляция

Сдается в долгосрочную аренду помещение под офис класса B площадью 300 кв.м в историческом бизнес-центре... подробнее

Презентация по предложению

Собираете информацию? Получите подробную презентацию в удобном формате!

БЕЗ КОМИССИИ ID: 279533 Рейтинг6.2 КлассB

Москва, улица Малая Ордынка, 39 с1

Добрынинская → 537 м
~ 5 мин
Арендная плата в месяц 600 600 ₽ 25 200 ₽/м² в год С учётом НДС
Характеристики 286 м² 4 этаж Готово к въезду
Преимущества
  • Класс B
  • Пешком от метро

Собственник сдает в долгосрочную аренду офисный блок класса B общей площадью 286 кв. метров в историческом бизнес-центре... подробнее

Презентация по предложению

Собираете информацию? Получите подробную презентацию в удобном формате!

БЕЗ КОМИССИИ ID: 136919 Рейтинг8.9 КлассB+

Москва, улица Пятницкая, 74

Добрынинская → 424 м
~ 4 мин
Арендная плата в месяц 566 667 ₽ 25 000 ₽/м² в год С учётом НДС
Характеристики 272 м² 4 этаж Под отделку
Преимущества
  • Класс B+
  • Пешком от метро
  • Кондиционирование и вентиляция
  • Свой паркинг

Предлагаем в прямую аренду офис класса B+ общей площадью 272 квадратных метров в бизнес-центре "Domino"... подробнее

Презентация по предложению

Собираете информацию? Получите подробную презентацию в удобном формате!

БЕЗ КОМИССИИ ID: 179859 Рейтинг6.8 КлассB

Москва, 1-й Хвостов переулок, 3а с2

Полянка → 354 м
~ 4 мин
Арендная плата в месяц 550 000 ₽ 22 000 ₽/м² в год С учётом НДС
Характеристики 300 м² 3 этаж Готово к въезду
Преимущества
  • Класс B
  • Пешком от метро
  • Кондиционирование и вентиляция
  • Свой паркинг

Сдается в долгосрочную аренду офисное помещение класса B общей площадью 300 квадр. метров в бизнес-центре... подробнее

Презентация по предложению

Собираете информацию? Получите подробную презентацию в удобном формате!

БЕЗ КОМИССИИ ID: 103999 Рейтинг4.7 КлассB

Москва, улица Малая Ордынка, 26 с1

Третьяковская → 628 м
~ 6 мин
Арендная плата в месяц 572 000 ₽ 24 000 ₽/м² в год С учётом НДС
Характеристики 286 м² 1 - 2 этаж Готово к въезду
Преимущества
  • Класс B
  • Пешком от метро
  • Кондиционирование и вентиляция
  • Несколько провайдеров связи

Сдается в аренду офис класса B площадью 286 квадр. метров в историческом бизнес-центре... подробнее

Презентация по предложению

Собираете информацию? Получите подробную презентацию в удобном формате!

Посмотреть все похожие предложения
Отнеситесь рационально к процессу поиска нового офиса!

Просто ответьте на 3 вопроса, и наши специалисты сами предложат оптимальные варианты под ваш бюджет

.