8.2

Виртуальный тур

Смотреть все фото
БЕЗ КОМИССИИ ID: 1295955 Рейтинг8.3 КлассB+
Бизнес-центр «Авион»

Аренда офиса 1447 м²

Москва, Ленинградский проспект, 47 с2

Аэропорт → 321 м
~ 3 мин
Арендная плата в месяц 3 714 000 ₽ 30 800 ₽/м² в год С учётом НДС

Презентация по предложению

Собираете информацию? Получите подробную презентацию в удобном формате!

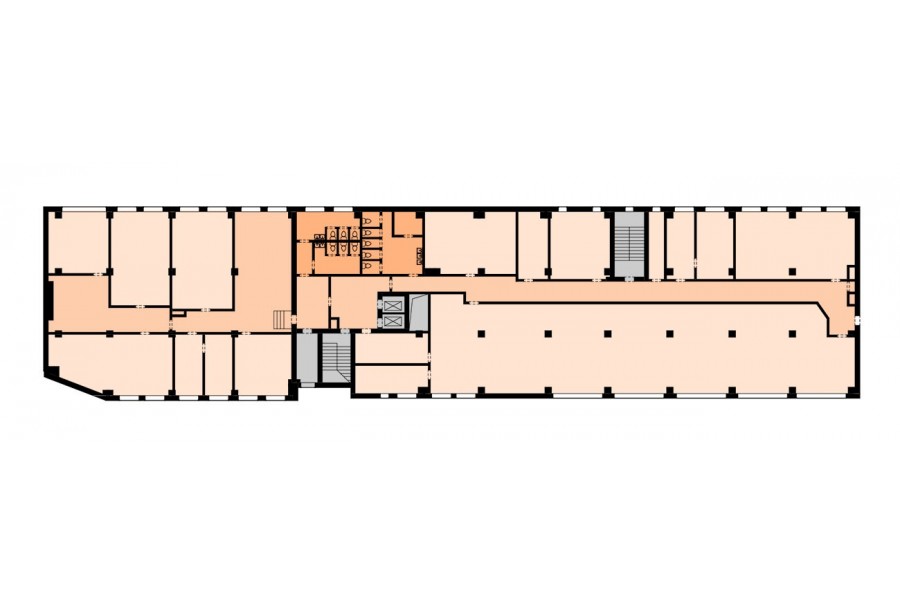
Площадь 1 447 м²
Состояние Готово к въезду
Планировка Смешанная
Этаж 5

Описание

Преимущества
  • Класс B+
  • Пешком от метро
  • Кондиционирование и вентиляция
  • Свой паркинг
  • Развитая инфраструктура
Сдается в долгосрочную аренду офисный блок класса B+ общей площадью 1447 кв.м в бизнес-центре "Авион".

Москва, САО, Ленинградский проспект, 47 с2

Удобное расположение здания для всех видов транспорта:
- Автомобиль: близость транспортных магистралей, таких как Волоколамское шоссе, Ленинградское шоссе, Ленинградский проспект и других.
- Возможность аренды парковочных мест.
- Ближайшее метро: от метро "Аэропорт" всего 3 мин пешком

Офис класса B+:
- Офис с отделкой, полностью готов к аренде
- Вентиляция: Приточно-вытяжная вентиляция
- Кондиционирование: центральное
- Презентабельный центральный ресепшн
- Круглосуточная охрана и видеонаблюдение
- Развитая инфраструктура внутри здания

Возможность заключения контракта в соответствии с 44ФЗ по госзакупкам.

Если предложение предварительно Вам подходит:

1. Мы отправим Вам подробную презентацию с планировкой и фотографиями в течение 10 минут после звонка, чтобы Вы могли поделиться информацией с руководством или с коллегами.
2. Ответим на любые Ваши вопросы, готовы обсуждать любые предложения по коммерческим условиям аренды помещения.
3.

Вы можете позвонить нам в любое время. Мы ответим на Ваши вопросы по будням до 19:00, а поздно вечером или в выходные зафиксируем Ваш контакт и перезвоним в рабочее время.

Коммерческие условия

Арендная плата 3 376 330 ₽
Ставка арендной платы 30 800 ₽ м²/год
Эксплуатационные расходы Включены в ставку
Налоги С учётом НДС
Тип договора Прямая аренда
Срок договора от 11 месяцев
Размер платежей 1 месяц
Обеспечительный платеж 2 месяц
Статус Сдан

О бизнес-центре

Класс B+
Этажность 8
Лифты Есть
Общая площадь 19 000 м²
Год постройки 2005
Паркинг Наземный
Вентиляция приточно-вытяжная
Кондиционирование центральное
Телекоммуникации Интернет/Телефония

Расположение

Подробная презентацию по предложению

Собираете информацию? Получите подробную презентацию в удобном формате, чтобы обсудить вариант с коллегами или переслать руководству!

Похожие предложения в других зданиях

БЕЗ КОМИССИИ ID: 1380103 Рейтинг8.3 КлассА

Москва, улица Авиаконструктора Микояна, 12

ЦСКА → 1.15 км
~ 11 мин
Арендная плата в месяц 4 619 835 ₽ 40 300 ₽/м² в год С учётом НДС
Характеристики 1 377 м² 2 этаж Готово к въезду
Преимущества
  • Класс А
  • Пешком от метро
  • Кондиционирование и вентиляция
  • Свой паркинг
  • Несколько провайдеров связи
  • Развитая инфраструктура

Предлагаем в долгосрочную аренду помещение под офис класса А площадью 1377 квадратных метров в бизнес-центре "Линкор"... подробнее

Презентация по предложению

Собираете информацию? Получите подробную презентацию в удобном формате!

БЕЗ КОМИССИИ ID: 1270949 Рейтинг7.8 КлассB

Москва, Ленинградский проспект, 68

Сокол → 426 м
~ 4 мин
Арендная плата в месяц 3 252 563 ₽ 31 400 ₽/м² в год С учётом НДС
Характеристики 1 245 м² 1 - 2 этаж Готово к въезду
Преимущества
  • Класс B
  • Пешком от метро
  • Кондиционирование и вентиляция
  • Свой паркинг
  • Несколько провайдеров связи
  • Развитая инфраструктура

Собственник сдает в прямую аренду офис класса B площадью 1245 кв. метров в бизнес-центре "Авиапарк"... подробнее

Презентация по предложению

Собираете информацию? Получите подробную презентацию в удобном формате!

БЕЗ КОМИССИИ ID: 1327472 Рейтинг7.7 КлассB

Москва, Ленинградский проспект, 37 к12

Динамо → 962 м
~ 10 мин
Арендная плата в месяц 4 005 000 ₽ 30 000 ₽/м² в год С учётом НДС
Характеристики 1 602 м² 3 этаж Готово к въезду
Преимущества
  • Класс B
  • Пешком от метро
  • Кондиционирование и вентиляция
  • Свой паркинг
  • Развитая инфраструктура

Предлагаем в долгосрочную прямую аренду офисное помещение класса B общей площадью 1602 кв.м в бизнес-центре... подробнее

>

Виртуальный тур

Презентация по предложению

Собираете информацию? Получите подробную презентацию в удобном формате!

БЕЗ КОМИССИИ ID: 297408 Рейтинг6.8 КлассB

Москва, улица Сурикова, 24

Панфиловская → 688 м
~ 7 мин
Арендная плата в месяц 4 131 750 ₽ 31 500 ₽/м² в год С учётом НДС
Характеристики 1 574 м² -1 - 4 этаж Готово к въезду
Преимущества
  • Класс B
  • Пешком от метро
  • Кондиционирование и вентиляция
  • Свой паркинг

Собственник сдает в прямую аренду офисный блок класса B общей площадью 1574 кв.м в историческом недавно отреконструированном бизнес-центре "На Соколе"... подробнее

Презентация по предложению

Собираете информацию? Получите подробную презентацию в удобном формате!

БЕЗ КОМИССИИ ID: 1320206 Рейтинг7.1 КлассB

Москва, Большая Академическая улица, 5

Войковская → 1.76 км
~ 18 мин
Арендная плата в месяц 3 750 000 ₽ 30 000 ₽/м² в год С учётом НДС
Характеристики 1 500 м² -1 - 4 этаж Под отделку
Преимущества
  • Класс B
  • Пешком от метро
  • Кондиционирование и вентиляция

Сдается в прямую аренду офис класса B общей площадью 1500 квадратных метров в бизнес-центре... подробнее

Презентация по предложению

Собираете информацию? Получите подробную презентацию в удобном формате!

Посмотреть все похожие предложения
Отнеситесь рационально к процессу поиска нового офиса!

Просто ответьте на 3 вопроса, и наши специалисты сами предложат оптимальные варианты под ваш бюджет

.