8.2
Смотреть все фото
БЕЗ КОМИССИИ ID: 1379797 Рейтинг8.3 КлассB+
Бизнес-центр «Авион»

Аренда офиса 527 м²

Москва, Ленинградский проспект, 47 с2

Аэропорт → 321 м
~ 3 мин
Арендная плата в месяц 2 635 000 ₽ 60 000 ₽/м² в год С учётом НДС

Презентация по предложению

Собираете информацию? Получите подробную презентацию в удобном формате!

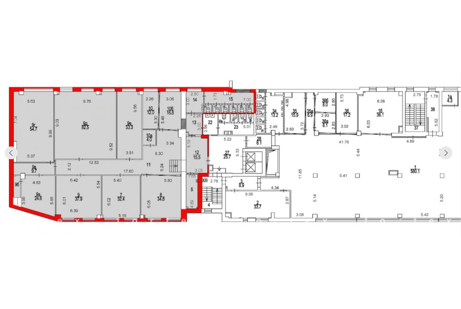
Площадь 527 м²
Состояние Готово к въезду
Планировка Смешанная
Этаж 6

Описание

Преимущества
  • Класс B+
  • Пешком от метро
  • Кондиционирование и вентиляция
  • Свой паркинг
  • Развитая инфраструктура
Сдается в долгосрочную прямую аренду офисное помещение класса B+ общей площадью 527 кв.м в бизнес-центре "Авион".

Москва, САО, Ленинградский проспект, 47 с2

Удобное расположение здания для всех видов транспорта:
- Автомобиль: близость транспортных магистралей, таких как Волоколамское шоссе, Ленинградский проспект, Ленинградское шоссе и других.
- Возможность аренды парковочных мест.
- Ближайшее метро: от метро "Аэропорт" всего 3 мин пешком

Офис класса B+:
- Помещение готово к въезду
- Вентиляция: Приточно-вытяжная вентиляция
- Кондиционирование: центральное
- Презентабельный центральный ресепшн
- Круглосуточная охрана и видеонаблюдение
- Развитая инфраструктура внутри здания

Возможность заключения контракта в соответствии с 44ФЗ по госзакупкам.

Если предложение предварительно Вам подходит:

1. Мы отправим Вам подробную презентацию с планировкой и фотографиями в течение 10 минут после звонка, чтобы Вы могли поделиться информацией с руководством или с коллегами.
2. Мы готовы ответить на любые Ваши вопросы о помещении и коммерческих условиях аренды.
3. Оперативно организуем просмотр помещения, договоримся на любое удобное время, подготовим виртуальный тур.

Звоните нам в любое время. По будням мы сможем ответить на Ваши вопросы до 19:00. В выходные или вечернее время мы передадим Ваш контакт нашему менеджеру по аренде.

Коммерческие условия

Арендная плата 2 635 000 ₽
Ставка арендной платы 60 000 ₽ м²/год
Эксплуатационные расходы Включены в ставку
Налоги С учётом НДС
Тип договора Прямая аренда
Срок договора Долгосрочный
Размер платежей 2 месяц
Обеспечительный платеж 2 месяц
Статус Свободен

О бизнес-центре

Класс B+
Этажность 8
Лифты Есть
Общая площадь 19 000 м²
Год постройки 2005
Паркинг Наземный
Вентиляция приточно-вытяжная
Кондиционирование центральное
Телекоммуникации Интернет/Телефония

Расположение

Подробная презентацию по предложению

Собираете информацию? Получите подробную презентацию в удобном формате, чтобы обсудить вариант с коллегами или переслать руководству!

Похожие предложения в других зданиях

БЕЗ КОМИССИИ ID: 1381294 Рейтинг8.9 КлассА

Москва, улица Викторенко, 9 с1

Аэропорт → 711 м
~ 9 мин
Арендная плата в месяц 2 583 877 ₽ 57 800 ₽/м² в год С учётом НДС
Характеристики 536 м² 1 - 23 этаж Готово к въезду
Преимущества
  • Класс А
  • Пешком от метро
  • Новое строительство
  • Кондиционирование и вентиляция
  • Свой паркинг

Сдается в прямую аренду офисное помещение класса А площадью 536 кв.м в бизнес-центре "Прайм Тайм"... подробнее

Презентация по предложению

Собираете информацию? Получите подробную презентацию в удобном формате!

ВОЗМОЖНО ОСВОБОЖДЕНИЕ ID: 1315463 Рейтинг8.8 КлассА

Москва, Ленинградский проспект, 70

Сокол → 216 м
~ 2 мин
Арендная плата в месяц 2 343 822 ₽ 60 700 ₽/м² в год С учётом НДС
Характеристики 463 м² 6 этаж Готово к въезду
Преимущества
  • Класс А
  • Пешком от метро
  • Кондиционирование и вентиляция

Предлагаем в прямую аренду офисный блок класса А общей площадью 463 квадратных метров в бизнес-центре "АЛКОН II"... подробнее

Презентация по предложению

Собираете информацию? Получите подробную презентацию в удобном формате!

ВОЗМОЖНО ОСВОБОЖДЕНИЕ ID: 303041 Рейтинг9.5 КлассА

Москва, Ленинградский проспект, 72 с1

Сокол → 387 м
~ 4 мин
Арендная плата в месяц 2 904 500 ₽ 62 800 ₽/м² в год С учётом НДС
Характеристики 555 м² 1 этаж Готово к въезду
Преимущества
  • Класс А
  • Пешком от метро
  • Кондиционирование и вентиляция
  • Свой паркинг

Сдается в долгосрочную прямую аренду офисное помещение класса А площадью 555 кв.м в бизнес-центре "Алкон"... подробнее

>

Виртуальный тур

Презентация по предложению

Собираете информацию? Получите подробную презентацию в удобном формате!

ВОЗМОЖНО ОСВОБОЖДЕНИЕ ID: 303045 Рейтинг9.5 КлассА

Москва, Ленинградский проспект, 72 с1

Сокол → 387 м
~ 4 мин
Арендная плата в месяц 2 470 133 ₽ 62 800 ₽/м² в год С учётом НДС
Характеристики 472 м² 4 этаж Готово к въезду
Преимущества
  • Класс А
  • Пешком от метро
  • Кондиционирование и вентиляция
  • Свой паркинг

Предлагаем в прямую аренду помещение под офис класса А площадью 472 квадратных метров в бизнес-центре "Алкон"... подробнее

>

Виртуальный тур

Презентация по предложению

Собираете информацию? Получите подробную презентацию в удобном формате!

БЕЗ КОМИССИИ ID: 1373823 Рейтинг8.4 КлассB+

Москва, Вятская улица, 27 с4

Савеловская → 498 м
~ 5 мин
Арендная плата в месяц 2 194 577 ₽ 52 500 ₽/м² в год С учётом НДС
Характеристики 502 м² 2 этаж Готово к въезду
Преимущества
  • Класс B+
  • Пешком от метро
  • Кондиционирование и вентиляция
  • Свой паркинг

Предлагается в прямую аренду помещение под офис класса B+ общей площадью 502 квадратных метров в бизнес-центре "Фактория"... подробнее

Презентация по предложению

Собираете информацию? Получите подробную презентацию в удобном формате!

Посмотреть все похожие предложения
Отнеситесь рационально к процессу поиска нового офиса!

Просто ответьте на 3 вопроса, и наши специалисты сами предложат оптимальные варианты под ваш бюджет

.