8.2

Виртуальный тур

Смотреть все фото
БЕЗ КОМИССИИ ID: 1318541 Рейтинг8.3 КлассB+
Бизнес-центр «Авион»

Аренда офиса 627 м²

Москва, Ленинградский проспект, 47 с2

Аэропорт → 321 м
~ 3 мин
Арендная плата в месяц 2 090 000 ₽ 40 000 ₽/м² в год С учётом НДС

Презентация по предложению

Собираете информацию? Получите подробную презентацию в удобном формате!

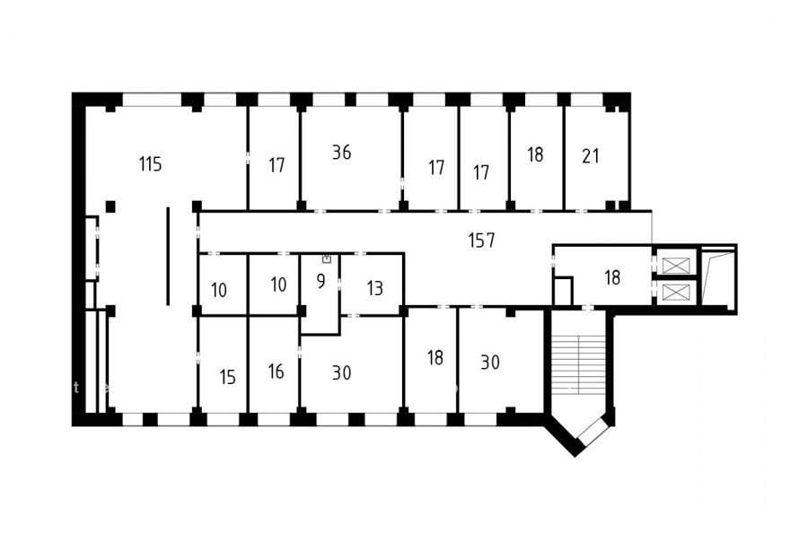
Площадь 627 м²
Состояние Готово к въезду
Планировка Смешанная
Этаж 3

Описание

Преимущества
  • Класс B+
  • Пешком от метро
  • Кондиционирование и вентиляция
  • Свой паркинг
  • Развитая инфраструктура
Предлагается в прямую аренду офисное помещение класса B+ площадью 627 квадратных метров в бизнес-центре "Авион".

Москва, САО, Ленинградский проспект, 47 с2

Удобное расположение здания для всех видов транспорта:
- Автомобиль: близость транспортных магистралей, таких как Ленинградское шоссе, Ленинградский проспект, Волоколамское шоссе и других.
- Возможность аренды парковочных мест.
- Ближайшее метро: от метро "Аэропорт" всего 3 мин пешком

Офис класса B+:
- Помещение готово к въезду
- Вентиляция: Приточно-вытяжная вентиляция
- Кондиционирование: центральное
- Презентабельный центральный ресепшн
- Круглосуточная охрана и видеонаблюдение
- Развитая инфраструктура внутри здания

Возможность заключения контракта в соответствии с 44ФЗ по госзакупкам.

Если предложение предварительно Вам подходит:

1. Получите презентацию в течение 10 минут в Whatsapp или на почту с фотографиями и планировкой, чтобы обсудить данный вариант с коллегами или переслать руководству. Для этого позвоните по телефону, указанному в объявлении.
2. Мы готовы ответить на любые Ваши вопросы о помещении и коммерческих условиях аренды.
3.

Вы можете позвонить нам в любое время. Мы ответим на Ваши вопросы по будням до 19:00, а поздно вечером или в выходные зафиксируем Ваш контакт и перезвоним в рабочее время.

Коммерческие условия

Арендная плата 2 090 000 ₽
Ставка арендной платы 40 000 ₽ м²/год
Эксплуатационные расходы Включены в ставку
Налоги С учётом НДС
Тип договора Прямая аренда
Срок договора Долгосрочный
Размер платежей 1 месяц
Обеспечительный платеж 2 месяц
Статус Сдан

О бизнес-центре

Класс B+
Этажность 8
Лифты Есть
Общая площадь 19 000 м²
Год постройки 2005
Паркинг Наземный
Вентиляция приточно-вытяжная
Кондиционирование центральное
Телекоммуникации Интернет/Телефония

Расположение

Подробная презентацию по предложению

Собираете информацию? Получите подробную презентацию в удобном формате, чтобы обсудить вариант с коллегами или переслать руководству!

Похожие предложения в других зданиях

БЕЗ КОМИССИИ ID: 287319 Рейтинг8.9 КлассА

Москва, улица Викторенко, 5 с1

Аэропорт → 204 м
~ 2 мин
Арендная плата в месяц 1 656 150 ₽ 36 600 ₽/м² в год С учётом НДС
Характеристики 543 м² 5 этаж Готово к въезду
Преимущества
  • Класс А
  • Пешком от метро
  • Кондиционирование и вентиляция
  • Свой паркинг
  • Несколько провайдеров связи
  • Развитая инфраструктура

Предлагается в долгосрочную прямую аренду офисное помещение класса А площадью 543 квадр. метров в бизнес-центре "Виктори Плаза"... подробнее

Презентация по предложению

Собираете информацию? Получите подробную презентацию в удобном формате!

БЕЗ КОМИССИИ ID: 1265440 Рейтинг8.7 КлассА

Москва, Ленинградский проспект, 37

ЦСКА → 1.09 км
~ 11 мин
Арендная плата в месяц 2 347 033 ₽ 40 700 ₽/м² в год С учётом НДС
Характеристики 692 м² 7 этаж Готово к въезду
Преимущества
  • Класс А
  • Пешком от метро
  • Кондиционирование и вентиляция
  • Свой паркинг
  • Несколько провайдеров связи
  • Развитая инфраструктура

Предлагается в долгосрочную аренду офисное помещение класса А общей площадью 692 квадратных метров в бизнес-центре "Аэродом"... подробнее

>

Виртуальный тур

Презентация по предложению

Собираете информацию? Получите подробную презентацию в удобном формате!

БЕЗ КОМИССИИ ID: 1319701 Рейтинг8.0 КлассB+

Москва, Чапаевский переулок, 14

Сокол → 1.02 км
~ 10 мин
Арендная плата в месяц 1 941 167 ₽ 38 000 ₽/м² в год С учётом НДС
Характеристики 613 м² 6 этаж Готово к въезду
Преимущества
  • Класс B+
  • Пешком от метро
  • Кондиционирование и вентиляция
  • Свой паркинг
  • Несколько провайдеров связи
  • Развитая инфраструктура

Предлагается в долгосрочную аренду помещение под офис класса B+ площадью 613 кв. метров в бизнес-центре "Сокол Плейс"... подробнее

>

Виртуальный тур

Презентация по предложению

Собираете информацию? Получите подробную презентацию в удобном формате!

БЕЗ КОМИССИИ ID: 74507 Рейтинг6.7 КлассB

Москва, улица Усиевича, 20 к1

Сокол → 668 м
~ 7 мин
Арендная плата в месяц 1 738 500 ₽ 34 200 ₽/м² в год С учётом НДС
Характеристики 610 м² 1 - 2 этаж Готово к въезду
Преимущества
  • Класс B
  • Пешком от метро
  • Кондиционирование и вентиляция
  • Свой паркинг

Предлагаем в долгосрочную аренду офис класса B площадью 610 квадр. метров в историческом недавно отреконструированном бизнес-центре "Сокол Плаза"... подробнее

Презентация по предложению

Собираете информацию? Получите подробную презентацию в удобном формате!

БЕЗ КОМИССИИ ID: 285441 Рейтинг8.3 КлассB

Москва, Ленинградский проспект, 74А

Сокол → 223 м
~ 2 мин
Арендная плата в месяц 1 759 542 ₽ 34 900 ₽/м² в год С учётом НДС
Характеристики 605 м² 3 этаж Готово к въезду
Преимущества
  • Класс B
  • Пешком от метро
  • Кондиционирование и вентиляция
  • Свой паркинг
  • Развитая инфраструктура

Предлагается в долгосрочную прямую аренду офис класса B общей площадью 605 кв.м в бизнес-центре "Сокол Центр"... подробнее

Презентация по предложению

Собираете информацию? Получите подробную презентацию в удобном формате!

Посмотреть все похожие предложения
Отнеситесь рационально к процессу поиска нового офиса!

Просто ответьте на 3 вопроса, и наши специалисты сами предложат оптимальные варианты под ваш бюджет

.