8.2
Смотреть все фото
БЕЗ КОМИССИИ ID: 265425 Рейтинг9.2 КлассА
Бизнес-центр «Бахрушин Хауз»

Аренда офиса 1687 м²

Москва, улица Бахрушина, 32 с1

Павелецкая → 140 м
~ 1 мин
Арендная плата в месяц 4 639 200 ₽ 33 000 ₽/м² в год С учётом НДС

Презентация по предложению

Собираете информацию? Получите подробную презентацию в удобном формате!

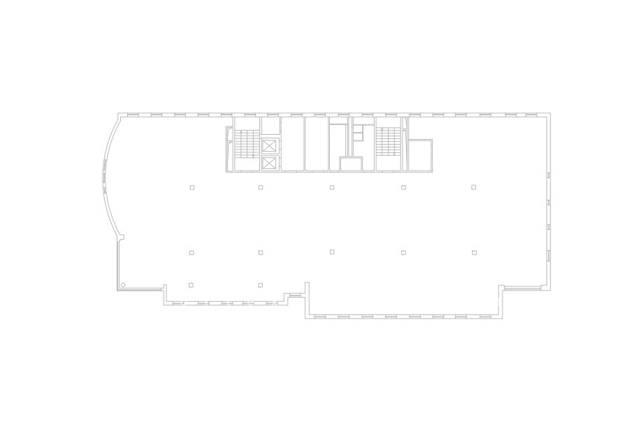
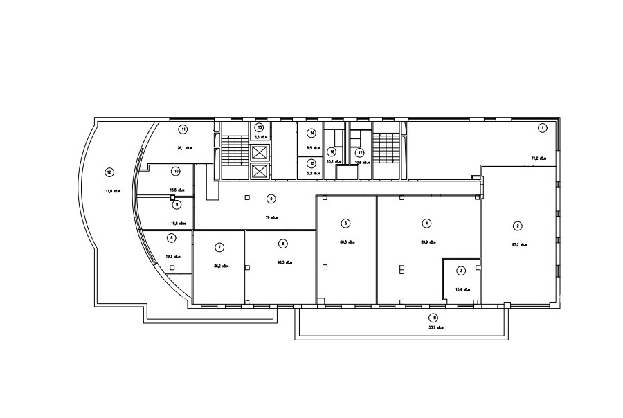
Площадь 1 687 м²
Состояние Готово к въезду
Планировка Кабинетная
Этаж 4 - 5

Описание

Преимущества
  • Класс А
  • Пешком от метро
  • Кондиционирование и вентиляция
  • Свой паркинг
Предлагается в долгосрочную прямую аренду помещение под офис класса А общей площадью 1687 квадр. метров в бизнес-центре "Бахрушин Хауз".

Москва, ЦАО, улица Бахрушина, 32 с1

Удобное расположение в пределах Садового кольца:
- Возможность аренды парковочных мест.
- Ближайшее метро: буквально 1 мин пешком от метро "Павелецкая"

Офис класса А:
- Помещение готово к въезду
- Вентиляция: Приточно-вытяжная вентиляция
- Кондиционирование: центральное
- Круглосуточная охрана и видеонаблюдение

Возможность заключения контракта в соответствии с 44ФЗ по госзакупкам.

Что еще можно узнать о предложении:

1. Получите презентацию в течение 10 минут в Whatsapp или на почту с фотографиями и планировкой, чтобы обсудить данный вариант с коллегами или переслать руководству. Для этого позвоните по телефону, указанному в объявлении.
2. Ответим на любые Ваши вопросы, готовы обсуждать любые предложения по коммерческим условиям аренды помещения.
3. Оперативно организуем просмотр помещения, договоримся на любое удобное время, подготовим виртуальный тур.

Звоните нам в любое время. По будням мы сможем ответить на Ваши вопросы до 19:00. В выходные или вечернее время мы передадим Ваш контакт нашему менеджеру по аренде.

Коммерческие условия

Арендная плата 5 659 890 ₽
Ставка арендной платы 33 000 ₽ м²/год
Эксплуатационные расходы Включены в ставку
Налоги С учётом НДС
Тип договора Прямая аренда
Срок договора от 11 месяцев
Размер платежей 1 месяц
Обеспечительный платеж 1 месяц
Статус Сдан

О бизнес-центре

Класс А
Этажность 6
Лифты Есть
Общая площадь 5 199 м²
Год постройки 2002
Паркинг Подземный
Вентиляция приточно-вытяжная
Кондиционирование центральное
Телекоммуникации Интернет/Телефония

Расположение

Подробная презентацию по предложению

Собираете информацию? Получите подробную презентацию в удобном формате, чтобы обсудить вариант с коллегами или переслать руководству!

Похожие предложения в других зданиях

БЕЗ КОМИССИИ ID: 150712 Рейтинг9.5 КлассА

Москва, Садовническая улица, 82

Павелецкая → 680 м
~ 7 мин
Арендная плата в месяц 5 918 500 ₽ 38 000 ₽/м² в год С учётом НДС
Характеристики 1 869 м² 2 этаж Готово к въезду
Преимущества
  • Класс А
  • Пешком от метро
  • Кондиционирование и вентиляция
  • Свой паркинг
  • Несколько провайдеров связи

Предлагается в долгосрочную аренду помещение под офис класса А площадью 1869 квадр. метров в бизнес-центре "Аврора Бизнес Парк 3"... подробнее

Презентация по предложению

Собираете информацию? Получите подробную презентацию в удобном формате!

ВОЗМОЖНО ОСВОБОЖДЕНИЕ ID: 166004 Рейтинг8.5 КлассА

Москва, Садовническая улица, 82 с2

Павелецкая → 612 м
~ 6 мин
Арендная плата в месяц 5 918 500 ₽ 38 000 ₽/м² в год С учётом НДС
Характеристики 1 869 м² 2 этаж Готово к въезду
Преимущества
  • Класс А
  • Пешком от метро
  • Кондиционирование и вентиляция
  • Свой паркинг
  • Развитая инфраструктура

Предлагаем в долгосрочную аренду офисный блок класса А общей площадью 1869 квадратных метров в бизнес-центре "Аврора Бизнес Парк"... подробнее

Презентация по предложению

Собираете информацию? Получите подробную презентацию в удобном формате!

БЕЗ КОМИССИИ ID: 285776 Рейтинг9.5 КлассА

Москва, Валовая улица, 26

Добрынинская → 463 м
~ 5 мин
Арендная плата в месяц 5 024 000 ₽ 32 000 ₽/м² в год С учётом НДС
Характеристики 1 884 м² 8 этаж Готово к въезду
Преимущества
  • Класс А
  • Пешком от метро
  • Кондиционирование и вентиляция
  • Свой паркинг
  • Развитая инфраструктура

Собственник сдает в долгосрочную прямую аренду помещение под офис класса А общей площадью 1884 кв.м в бизнес-центре "Лайтхаус"... подробнее

Презентация по предложению

Собираете информацию? Получите подробную презентацию в удобном формате!

БЕЗ КОМИССИИ ID: 259016 Рейтинг9.5 КлассА

Москва, Валовая улица, 26

Добрынинская → 463 м
~ 5 мин
Арендная плата в месяц 4 026 667 ₽ 32 000 ₽/м² в год С учётом НДС
Характеристики 1 510 м² 7 этаж Готово к въезду
Преимущества
  • Класс А
  • Пешком от метро
  • Кондиционирование и вентиляция
  • Свой паркинг
  • Развитая инфраструктура

Предлагается в долгосрочную прямую аренду офисный блок класса А площадью 1510 квадр. метров в бизнес-центре "Лайтхаус"... подробнее

Презентация по предложению

Собираете информацию? Получите подробную презентацию в удобном формате!

БЕЗ КОМИССИИ ID: 1316976 Рейтинг6.5 КлассB

Москва, Кожевническая улица, 7

Павелецкая → 525 м
~ 5 мин
Арендная плата в месяц 4 432 400 ₽ 33 600 ₽/м² в год С учётом НДС
Характеристики 1 583 м² 5 этаж Готово к въезду
Преимущества
  • Класс B
  • Пешком от метро
  • Кондиционирование и вентиляция
  • Свой паркинг
  • Развитая инфраструктура

Предлагается в прямую аренду офис класса B площадью 1583 квадратных метров в бизнес-центре... подробнее

>

Виртуальный тур

Презентация по предложению

Собираете информацию? Получите подробную презентацию в удобном формате!

Посмотреть все похожие предложения
Отнеситесь рационально к процессу поиска нового офиса!

Просто ответьте на 3 вопроса, и наши специалисты сами предложат оптимальные варианты под ваш бюджет

.