8.2
Смотреть все фото
БЕЗ КОМИССИИ ID: 246174 Рейтинг7.2 КлассB
Бизнес-центр «Бакунинский»

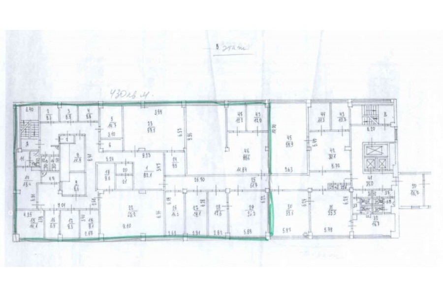
Аренда офиса 450 м²

Москва, Бакунинская улица, 71 с10

Электрозаводская → 1.19 км
~ 12 мин
Арендная плата в месяц 551 200 ₽ 14 700 ₽/м² в год С учётом НДС

Презентация по предложению

Собираете информацию? Получите подробную презентацию в удобном формате!

Площадь 450 м²
Состояние Готово к въезду
Планировка Кабинетная
Этаж 5

Описание

Преимущества
  • Класс B
  • Пешком от метро
  • Кондиционирование и вентиляция
  • Свой паркинг
  • Несколько провайдеров связи
Сдается в прямую аренду офисное помещение класса B площадью 450 квадратных метров в бизнес-центре "Бакунинский".

Москва, ЦАО, Бакунинская улица, 71 с10

Удобная локация здания:
- Автомобиль: близость транспортных магистралей, таких как Русаковская улица, Третье Транспортное Кольцо, улица Стромынка, Большая Черкизовская улица и других.
- Возможность аренды парковочных мест.
- Ближайшее метро: от метро "Электрозаводская" всего 11 мин пешком

Офис класса B:
- Офис с отделкой, полностью готов к аренде
- Вентиляция: Приточно-вытяжная вентиляция
- Кондиционирование: центральное
- Круглосуточная охрана и видеонаблюдение


Если данное предложение подходит Вашему запросу:

1. Получите презентацию в течение 10 минут в Whatsapp или на почту с фотографиями и планировкой, чтобы обсудить данный вариант с коллегами или переслать руководству. Для этого позвоните по телефону, указанному в объявлении.
2. Ответим на любые Ваши вопросы, готовы обсуждать любые предложения по коммерческим условиям аренды помещения.
3. Оперативно организуем просмотр помещения с менеджерами на объекте или подготовим виртуальный тур.

Вы можете позвонить нам в любое время. Мы ответим на Ваши вопросы по будням до 19:00, а поздно вечером или в выходные зафиксируем Ваш контакт и перезвоним в рабочее время.

Коммерческие условия

Арендная плата 551 250 ₽
Ставка арендной платы 14 700 ₽ м²/год
Эксплуатационные расходы Включены в ставку
Налоги С учётом НДС
Тип договора Прямая аренда
Срок договора от 11 месяцев
Размер платежей 1 месяц
Обеспечительный платеж 1 месяц
Статус Сдан

О бизнес-центре

Класс B
Этажность 10
Лифты Есть
Общая площадь 26 000 м²
Год постройки 2001
Паркинг Наземный
Вентиляция приточно-вытяжная
Кондиционирование центральное
Телекоммуникации Интернет/Телефония

Расположение

Подробная презентацию по предложению

Собираете информацию? Получите подробную презентацию в удобном формате, чтобы обсудить вариант с коллегами или переслать руководству!

Похожие предложения в других зданиях

БЕЗ КОМИССИИ ID: 448802 Рейтинг7.7 КлассB

Москва, Переведеновский переулок, 13 с4

Электрозаводская → 1.21 км
~ 12 мин
Арендная плата в месяц 632 500 ₽ 16 500 ₽/м² в год С учётом НДС
Характеристики 460 м² -1 - 1 этаж Готово к въезду
Преимущества
  • Класс B
  • Пешком от метро
  • Кондиционирование и вентиляция
  • Свой паркинг

Предлагается в прямую аренду офисный блок класса B общей площадью 460 кв.м в бизнес-центре... подробнее

Презентация по предложению

Собираете информацию? Получите подробную презентацию в удобном формате!

БЕЗ КОМИССИИ ID: 261989 Рейтинг5.0 КлассB

Москва, Переведеновский переулок, 18

Бауманская → 1.33 км
~ 13 мин
Арендная плата в месяц 503 750 ₽ 15 500 ₽/м² в год С учётом НДС
Характеристики 390 м² 2 этаж Под отделку
Преимущества
  • Класс B
  • Пешком от метро
  • Свой паркинг
  • Развитая инфраструктура

Предлагаем в прямую аренду офисное помещение класса B площадью 390 квадр. метров в бизнес-центре... подробнее

Презентация по предложению

Собираете информацию? Получите подробную презентацию в удобном формате!

БЕЗ КОМИССИИ ID: 205724 Рейтинг6.0 КлассB

Москва, улица Фридриха Энгельса, 75 с21

Электрозаводская → 1.07 км
~ 11 мин
Арендная плата в месяц 625 000 ₽ 15 000 ₽/м² в год С учётом НДС
Характеристики 500 м² 9 этаж Готово к въезду
Преимущества
  • Класс B
  • Пешком от метро
  • Кондиционирование и вентиляция
  • Свой паркинг
  • Развитая инфраструктура

Сдается в долгосрочную прямую аренду офисный блок класса B общей площадью 500 квадратных метров в бизнес-центре... подробнее

Презентация по предложению

Собираете информацию? Получите подробную презентацию в удобном формате!

БЕЗ КОМИССИИ ID: 448347 Рейтинг6.5 КлассB

Москва, Бакунинская улица, 74-76 к1

Бауманская → 1.11 км
~ 11 мин
Арендная плата в месяц 533 333 ₽ 16 000 ₽/м² в год С учётом НДС
Характеристики 400 м² 1 этаж Готово к въезду
Преимущества
  • Класс B
  • Пешком от метро
  • Кондиционирование и вентиляция
  • Свой паркинг
  • Несколько провайдеров связи
  • Развитая инфраструктура

Сдается в долгосрочную аренду помещение под офис класса B общей площадью 400 квадр. метров в бизнес-центре... подробнее

Презентация по предложению

Собираете информацию? Получите подробную презентацию в удобном формате!

БЕЗ КОМИССИИ ID: 1283339 Рейтинг5.7 КлассB

Москва, Переведеновский переулок, 13 с30

Электрозаводская → 1.27 км
~ 13 мин
Арендная плата в месяц 550 007 ₽ 14 300 ₽/м² в год С учётом НДС
Характеристики 460 м² 1 - 2 этаж Готово к въезду
Преимущества
  • Класс B
  • Пешком от метро
  • Кондиционирование и вентиляция
  • Свой паркинг

Предлагаем в долгосрочную аренду офисное здание класса B общей площадью 460 кв.м. .. подробнее

Презентация по предложению

Собираете информацию? Получите подробную презентацию в удобном формате!

Посмотреть все похожие предложения
Отнеситесь рационально к процессу поиска нового офиса!

Просто ответьте на 3 вопроса, и наши специалисты сами предложат оптимальные варианты под ваш бюджет

.