8.2

Виртуальный тур

Смотреть все фото
БЕЗ КОМИССИИ ID: 1318463 Рейтинг7.2 КлассB
Бизнес-центр «Бакунинский»

Аренда офиса 855 м²

Москва, Бакунинская улица, 71 с10

Электрозаводская → 1.17 км
~ 12 мин
Арендная плата в месяц 1 389 400 ₽ 19 500 ₽/м² в год С учётом НДС

Презентация по предложению

Собираете информацию? Получите подробную презентацию в удобном формате!

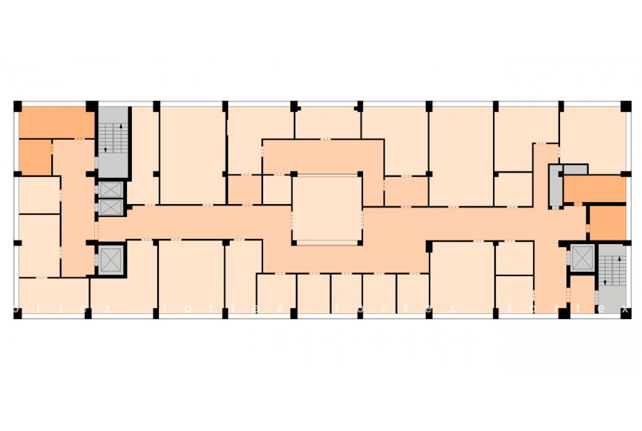
Площадь 855 м²
Состояние Готово к въезду
Планировка Кабинетная
Этаж 4

Описание

Преимущества
  • Класс B
  • Пешком от метро
  • Кондиционирование и вентиляция
  • Свой паркинг
  • Несколько провайдеров связи
Предлагается в долгосрочную прямую аренду офисный блок класса B общей площадью 855 квадратных метров в бизнес-центре "Бакунинский".

Москва, ЦАО, Бакунинская улица, 71 с10

Удобная локация здания:
- Автомобиль: близость транспортных магистралей, таких как улица Стромынка, Большая Черкизовская улица, Русаковская улица, Третье Транспортное Кольцо и других.
- Возможность аренды парковочных мест.
- Ближайшее метро: от метро "Электрозаводская" всего 11 мин пешком

Офис класса B:
- Помещение с отделкой, готово к въезду
- Вентиляция: Приточно-вытяжная вентиляция
- Кондиционирование: центральное
- Круглосуточная охрана и видеонаблюдение

Возможность заключения контракта в соответствии с 44ФЗ по госзакупкам.

Что еще можно узнать о предложении:

1. Мы подготовили презентацию с информацией о помещении, фотографиями и планировкой, чтобы Вы могли поделиться ей с коллегами или руководством. Попросите об этом нашего менеджера по телефону в объявлении.
2. Задайте любые вопросы менеджеру по телефону, готовы обсуждать любые предложения по финансовым условиям договора аренды.
3.

Вы можете позвонить нам в любое время. Мы ответим на Ваши вопросы по будням до 19:00, а поздно вечером или в выходные зафиксируем Ваш контакт и перезвоним в рабочее время.

Коммерческие условия

Арендная плата 1 389 380 ₽
Ставка арендной платы 19 500 ₽ м²/год
Эксплуатационные расходы Включены в ставку
Налоги С учётом НДС
Тип договора Прямая аренда
Срок договора от 11 месяцев
Размер платежей 1 месяц
Обеспечительный платеж 1 месяц
Статус Сдан

О бизнес-центре

Класс B
Этажность 10
Лифты Есть
Общая площадь 26 000 м²
Год постройки 2001
Паркинг Наземный
Вентиляция приточно-вытяжная
Кондиционирование центральное
Телекоммуникации Интернет/Телефония

Расположение

Подробная презентацию по предложению

Собираете информацию? Получите подробную презентацию в удобном формате, чтобы обсудить вариант с коллегами или переслать руководству!

Похожие предложения в других зданиях

БЕЗ КОМИССИИ ID: 174066 Рейтинг5.5 КлассB

Москва, Леснорядский переулок, 18 с2

Сокольники → 1.04 км
~ 10 мин
Арендная плата в месяц 1 545 333 ₽ 19 000 ₽/м² в год С учётом НДС
Характеристики 976 м² 3 этаж Готово к въезду
Преимущества
  • Класс B
  • Пешком от метро
  • Кондиционирование и вентиляция
  • Свой паркинг

Предлагаем в долгосрочную прямую аренду офисный блок класса B площадью 976 квадратных метров в историческом бизнес-центре... подробнее

Презентация по предложению

Собираете информацию? Получите подробную презентацию в удобном формате!

БЕЗ КОМИССИИ ID: 178808 Рейтинг9.0 КлассB+

Москва, Бауманская улица, 21

Бауманская → 281 м
~ 3 мин
Арендная плата в месяц 1 391 750 ₽ 19 000 ₽/м² в год С учётом НДС
Характеристики 879 м² -1 - 3 этаж Готово к въезду
Преимущества
  • Класс B+
  • Пешком от метро
  • Кондиционирование и вентиляция
  • Свой паркинг

Предлагается в прямую аренду офисный блок класса B+ общей площадью 879 квадратных метров в бизнес-центре... подробнее

Презентация по предложению

Собираете информацию? Получите подробную презентацию в удобном формате!

БЕЗ КОМИССИИ ID: 1325847 Рейтинг7.6 КлассB

Москва, Нижняя Красносельская улица, 35 с64

Бауманская → 580 м
~ 6 мин
Арендная плата в месяц 1 434 008 ₽ 21 700 ₽/м² в год С учётом НДС
Характеристики 793 м² 3 - 5 этаж Готово к въезду
Преимущества
  • Класс B
  • Пешком от метро
  • Кондиционирование и вентиляция
  • Свой паркинг
  • Несколько провайдеров связи
  • Развитая инфраструктура

Предлагается в долгосрочную прямую аренду помещение под офис класса B площадью 793 кв. метров в недавно отреконструированном бизнес-центре "Виктория Плаза"... подробнее

Презентация по предложению

Собираете информацию? Получите подробную презентацию в удобном формате!

БЕЗ КОМИССИИ ID: 12294 Рейтинг7.5 КлассB+

Москва, Большая Семеновская улица, 32 с1

Электрозаводская → 377 м
~ 4 мин
Арендная плата в месяц 1 125 000 ₽ 18 000 ₽/м² в год С учётом НДС
Характеристики 750 м² 5 этаж Готово к въезду
Преимущества
  • Класс B+
  • Пешком от метро
  • Кондиционирование и вентиляция
  • Свой паркинг
  • Развитая инфраструктура

Собственник сдает в долгосрочную прямую аренду офисное помещение класса B+ площадью 750 кв.м в недавно отреконструированном бизнес-центре "Республиканский"... подробнее

Презентация по предложению

Собираете информацию? Получите подробную презентацию в удобном формате!

БЕЗ КОМИССИИ ID: 1238680 Рейтинг5.4 КлассB

Москва, Ольховская улица, 22

Красносельская → 804 м
~ 8 мин
Арендная плата в месяц 1 245 000 ₽ 18 000 ₽/м² в год С учётом НДС
Характеристики 830 м² 6 этаж Готово к въезду
Преимущества
  • Класс B
  • Пешком от метро
  • Кондиционирование и вентиляция

Сдается в долгосрочную аренду офисный блок класса B площадью 830 кв. метров в бизнес-центре... подробнее

>

Виртуальный тур

Презентация по предложению

Собираете информацию? Получите подробную презентацию в удобном формате!

Посмотреть все похожие предложения
Отнеситесь рационально к процессу поиска нового офиса!

Просто ответьте на 3 вопроса, и наши специалисты сами предложат оптимальные варианты под ваш бюджет

.