8.2
Смотреть все фото
БЕЗ КОМИССИИ ID: 1079126 Рейтинг8.5 КлассB+

Москва, улица Барклая, 6 с5

Багратионовская → 912 м
~ 9 мин
Стоимость 55 млн ₽ 401 500 ₽/м²

Презентация по предложению

Собираете информацию? Получите подробную презентацию в удобном формате!

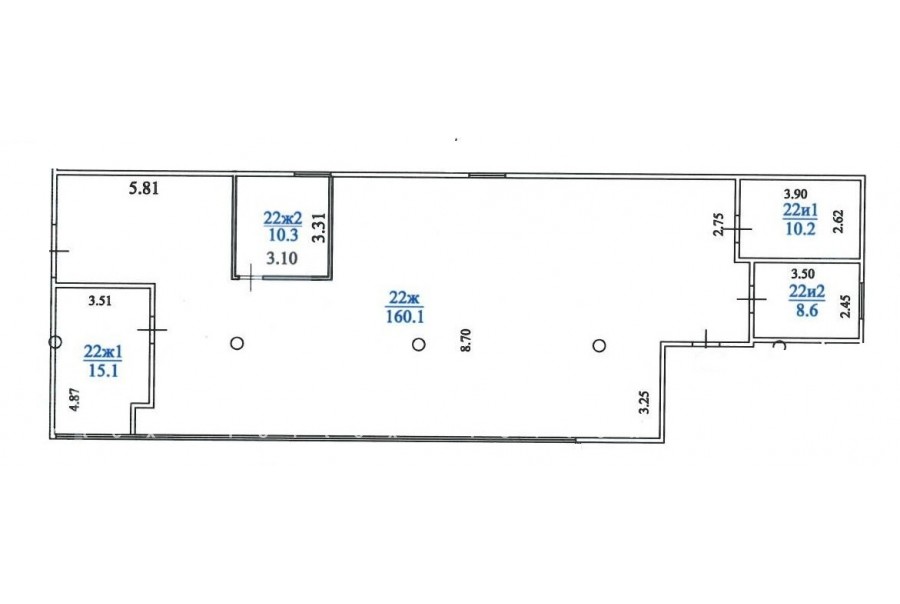
Площадь 137 м²
Состояние Готово к въезду
Планировка Кабинетная
Этаж 3

Описание

Преимущества
  • Класс B+
  • Пешком от метро
  • Кондиционирование и вентиляция
  • Свой паркинг
  • Несколько провайдеров связи
  • Развитая инфраструктура
Продается офисный блок общей площадью 137 квадратных метров в бизнес-центре "Барклай Плаза II".

Помещение можно адаптировать под любой бизнес благодаря функциональной планировке - идеальный баланс комфорта и экономической выгоды. Оптимальное решение для стабильного бизнеса или выгодных инвестиций.

Офис класса B+:
- Помещение готово к въезду
- Вентиляция: Приточно-вытяжная вентиляция
- Кондиционирование: центральное

О офисном центре:
Москва, ЗАО, улица Барклая, 6 с5

Удобная локация здания:
- Автомобиль: близость транспортных магистралей, таких как Третье Транспортное Кольцо, Кутузовский проспект и других.
- Возможность аренды парковочных мест.
- Ближайшее метро: от метро "Багратионовская" всего 9 мин пешком



Если предложение предварительно Вам подходит:

1. Получите презентацию в течение 10 минут в Whatsapp или на почту с фотографиями и планировкой, чтобы обсудить данный вариант с коллегами или переслать руководству. Для этого позвоните по телефону, указанному в объявлении.
2. Мы готовы ответить на любые Ваши вопросы о помещении и коммерческих условиях продажи.

Звоните нам в любое время. По будням мы сможем ответить на Ваши вопросы до 19:00. В выходные или вечернее время мы передадим Ваш контакт нашему менеджеру.

О бизнес-центре

Класс B+
Этажность 8
Лифты Есть
Общая площадь 42 521 м²
Год постройки 2008
Паркинг Наземный
Вентиляция приточно-вытяжная
Кондиционирование центральное
Телекоммуникации Интернет/Телефония

Расположение

Подробная презентацию по предложению

Собираете информацию? Получите подробную презентацию в удобном формате, чтобы обсудить вариант с коллегами или переслать руководству!

Похожие предложения в других зданиях

БЕЗ КОМИССИИ ID: 1325958 Рейтинг8.4 КлассB+

Москва, улица Неверовского, 10 с3

Парк Победы → 528 м
~ 5 мин
Стоимость 92 400 000 ₽ 420 000 ₽/м²
Характеристики 220 м² 3 этаж Готово к въезду
Преимущества
  • Класс B+
  • Пешком от метро
  • Кондиционирование и вентиляция
  • Свой паркинг

Продается офисное помещение площадью 220 кв.м в бизнес-центре "Crosswall". .. подробнее

Презентация по предложению

Собираете информацию? Получите подробную презентацию в удобном формате!

БЕЗ КОМИССИИ ID: 1299373 Рейтинг8.5 КлассB+

Москва, улица Василисы Кожиной, 1

Багратионовская → 1.08 км
~ 11 мин
Стоимость 320 250 000 ₽ 420 000 ₽/м²
Характеристики 625 м² 3 этаж Готово к въезду
Преимущества
  • Класс B+
  • Пешком от метро
  • Кондиционирование и вентиляция
  • Свой паркинг

Продается офисный блок общей площадью 625 кв.м в бизнес-центре "Парк Победы". .. подробнее

Презентация по предложению

Собираете информацию? Получите подробную презентацию в удобном формате!

БЕЗ КОМИССИИ ID: 1299371 Рейтинг8.5 КлассB+

Москва, улица Василисы Кожиной, 1

Багратионовская → 1.08 км
~ 11 мин
Стоимость 281 820 000 ₽ 420 000 ₽/м²
Характеристики 550 м² 17 этаж Готово к въезду
Преимущества
  • Класс B+
  • Пешком от метро
  • Кондиционирование и вентиляция
  • Свой паркинг

В продаже офисный блок площадью 550 кв. метров в бизнес-центре "Парк Победы". .. подробнее

Презентация по предложению

Собираете информацию? Получите подробную презентацию в удобном формате!

БЕЗ КОМИССИИ ID: 1323842 Рейтинг9.0 КлассА

Москва, Кастанаевская улица, 16 с1

Багратионовская → 714 м
~ 7 мин
Стоимость 457 039 310 ₽ 502 200 ₽/м²
Характеристики 910 м² 7 этаж Под отделку
Преимущества
  • Класс А
  • Пешком от метро
  • Новое строительство
  • Кондиционирование и вентиляция
  • Свой паркинг

Продается офисный блок площадью 910 кв.м в бизнес-центре "FILI RESIDENCE". .. подробнее

Презентация по предложению

Собираете информацию? Получите подробную презентацию в удобном формате!

БЕЗ КОМИССИИ ID: 1378221 Рейтинг9.0 КлассА

Москва, Кастанаевская улица, 16 с1

Багратионовская → 714 м
~ 7 мин
Стоимость 279 674 208 ₽ 514 100 ₽/м²
Характеристики 544 м² 7 этаж Под отделку
Преимущества
  • Класс А
  • Пешком от метро
  • Новое строительство
  • Кондиционирование и вентиляция
  • Свой паркинг

Продается офис площадью 544 кв. метров в бизнес-центре "FILI RESIDENCE". .. подробнее

Презентация по предложению

Собираете информацию? Получите подробную презентацию в удобном формате!

Посмотреть все похожие предложения
Отнеситесь рационально к процессу поиска нового офиса!

Просто ответьте на 3 вопроса, и наши специалисты сами предложат оптимальные варианты под ваш бюджет

.