8.2
Смотреть все фото
БЕЗ КОМИССИИ ID: 1379787 Рейтинг5.0 КлассB+
Бизнес-центр «Барышиха 37А»

Аренда офиса 430 м²

Москва, улица Барышиха, 37А

Пятницкое шоссе → 1.2 км
~ 12 мин
Арендная плата в месяц 1 110 800 ₽ 31 000 ₽/м² в год С учётом НДС

Презентация по предложению

Собираете информацию? Получите подробную презентацию в удобном формате!

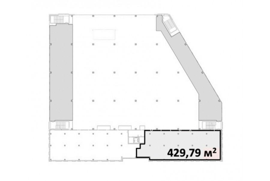
Площадь 430 м²
Состояние Под отделку
Планировка Кабинетная
Этаж 4

Описание

Преимущества
  • Класс B+
  • Пешком от метро
  • Свой паркинг
Сдается в долгосрочную прямую аренду помещение под офис класса B+ общей площадью 430 квадратных метров в бизнес-центре.

Москва, СЗАО, улица Барышиха, 32

Характеристики местоположения:
- Ближайшее метро: от метро "Пятницкое шоссе" всего 12 мин пешком

Офис класса B+:
- Офис в состоянии shell & core


Если данное предложение подходит Вашему запросу:

1. Получите презентацию в течение 10 минут в Whatsapp или на почту с фотографиями и планировкой, чтобы обсудить данный вариант с коллегами или переслать руководству. Для этого позвоните по телефону, указанному в объявлении.
2. Мы готовы ответить на любые Ваши вопросы о помещении и коммерческих условиях аренды.
3. Оперативно организуем просмотр помещения, договоримся на любое удобное время, подготовим виртуальный тур.

Звоните нам в любое время. По будням мы сможем ответить на Ваши вопросы до 19:00. В выходные или вечернее время мы передадим Ваш контакт нашему менеджеру по аренде.

Коммерческие условия

Арендная плата 1 110 830 ₽
Ставка арендной платы 31 000 ₽ м²/год
Эксплуатационные расходы Включены в ставку
Налоги С учётом НДС
Тип договора Прямая аренда
Срок договора от 11 месяцев
Размер платежей 1 месяц
Обеспечительный платеж 2 месяц
Статус Сдан

О бизнес-центре

Класс B+
Этажность 4
Лифты Нет
Общая площадь 11 776 м²
Паркинг Наземный
Вентиляция приточно-вытяжная
Кондиционирование сплит-системы
Телекоммуникации Интернет/Телефония

Расположение

Подробная презентацию по предложению

Собираете информацию? Получите подробную презентацию в удобном формате, чтобы обсудить вариант с коллегами или переслать руководству!

Похожие предложения в других зданиях

БЕЗ КОМИССИИ ID: 1379965 Рейтинг8.0 КлассB+

Москва, Волоколамское шоссе, 116 с4

Тушинская → 1.69 км
~ 17 мин
Арендная плата в месяц 1 005 750 ₽ 27 000 ₽/м² в год Упрощённая система налогообложения
Характеристики 447 м² 1 этаж Готово к въезду
Преимущества
  • Класс B+
  • Пешком от метро
  • Свежая реконструкция
  • Кондиционирование и вентиляция
  • Свой паркинг

Сдается в прямую аренду офис класса B+ общей площадью 447 кв.м в недавно отреконструированном бизнес-центре "Академия Лофт"... подробнее

Презентация по предложению

Собираете информацию? Получите подробную презентацию в удобном формате!

Посмотреть все похожие предложения
Отнеситесь рационально к процессу поиска нового офиса!

Просто ответьте на 3 вопроса, и наши специалисты сами предложат оптимальные варианты под ваш бюджет

.