8.2
Смотреть все фото
БЕЗ КОМИССИИ ID: 1322161 Рейтинг9.3 КлассА

Москва, Пресненская набережная, 12

Международная → 342 м
~ 3 мин
Арендная плата в месяц 1 920 000 ₽ 171 900 ₽/м² в год С учётом НДС

Презентация по предложению

Собираете информацию? Получите подробную презентацию в удобном формате!

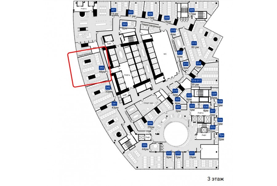
Площадь 134 м²
Состояние Готово к въезду
Планировка Смешанная
Этаж 3

Описание

Преимущества
  • Класс А
  • Пешком от метро
  • Кондиционирование и вентиляция
  • Свой паркинг
  • Развитая инфраструктура
Предлагаем в долгосрочную аренду высококачественный сервисный офис на 48 рабочих мест в бизнес-центре "Башня Федерация".

Сервисный офис - это современное офисное решение. Высококлассная дизайнерская отделка, полностью укомплектованные рабочие места, мягкие зоны отдыха, переговорные комнаты - это готовый к работе офис. Ежедневная уборка, обеспечение расходными материалами, включая кухни и санузлы, любая АХО-поддержка - это сервис, который уже включен в стоимость.

Услуги, включенные в арендную плату:
- Качественная мебель для комфортной работы
- Бронирование переговорных комнат
- Печать, IT-услуги и техническое обслуживание офиса
- Зоны отдыха, чай, кофе, вода
- Пополнение расходных материалов
- Ежедневная уборка офиса
- Высокоскоростной интернет

Офис класса А:
- Офис с отделкой, полностью готов к аренде
- Вентиляция: Приточно-вытяжная вентиляция
- Кондиционирование: центральное
- Презентабельный центральный ресепшн
- Круглосуточная охрана и видеонаблюдение
- Развитая инфраструктура внутри здания

О бизнес-центре "Башня Федерация" :
Москва, ЦАО, Пресненская набережная, 12

Удобное расположение здания для всех видов транспорта:
- Автомобиль: близость транспортных магистралей, таких как Третье Транспортное Кольцо, Кутузовский проспект и других.
- Возможность аренды парковочных мест.
- Ближайшее метро: от метро "Международная" всего 3 мин пешком

Возможность заключения контракта в соответствии с 44ФЗ по госзакупкам.

Если предложение предварительно Вам подходит:

1. Мы подготовили презентацию с информацией о помещении, фотографиями и планировкой, чтобы Вы могли поделиться ей с коллегами или руководством. Попросите об этом нашего менеджера по телефону в объявлении.
2. Ответим на любые Ваши вопросы, готовы обсуждать любые предложения по коммерческим условиям аренды помещения.
3. Оперативно организуем просмотр помещения с менеджерами на объекте или подготовим виртуальный тур.

Вы можете позвонить нам в любое время. Мы ответим на Ваши вопросы по будням до 19:00, а поздно вечером или в выходные зафиксируем Ваш контакт и перезвоним в рабочее время.

Коммерческие условия

Арендная плата 1 920 010 ₽
Ставка арендной платы 171 900 ₽ м²/год
Эксплуатационные расходы Включены в ставку
Налоги С учётом НДС
Тип договора Субаренда
Срок договора Долгосрочный
Размер платежей 1 месяц
Обеспечительный платеж 2 месяц
Статус Свободен

О бизнес-центре

Класс А
Этажность 95
Лифты Есть
Общая площадь 412 248 м²
Год постройки 2008
Паркинг Подземный
Вентиляция приточно-вытяжная
Кондиционирование центральное
Телекоммуникации Интернет/Телефония

Расположение

Подробная презентацию по предложению

Собираете информацию? Получите подробную презентацию в удобном формате, чтобы обсудить вариант с коллегами или переслать руководству!

Похожие предложения в других зданиях

БЕЗ КОМИССИИ ID: 1327538 Рейтинг9.3 КлассА

Москва, Пресненская набережная, 12

Международная → 342 м
~ 3 мин
Арендная плата в месяц 1 820 000 ₽ 156 000 ₽/м² в год С учётом НДС
Характеристики 140 м² 36 этаж Готово к въезду
Преимущества
  • Класс А
  • Пешком от метро
  • Кондиционирование и вентиляция
  • Свой паркинг
  • Развитая инфраструктура

Предлагается в долгосрочную аренду комфортабельный сервисный офис на 28 рабочих мест в бизнес-центре "Башня Федерация"... подробнее

Презентация по предложению

Собираете информацию? Получите подробную презентацию в удобном формате!

БЕЗ КОМИССИИ ID: 1322159 Рейтинг9.3 КлассА

Москва, Пресненская набережная, 12

Международная → 342 м
~ 3 мин
Арендная плата в месяц 1 720 003 ₽ 151 800 ₽/м² в год С учётом НДС
Характеристики 136 м² 3 этаж Готово к въезду
Преимущества
  • Класс А
  • Пешком от метро
  • Кондиционирование и вентиляция
  • Свой паркинг
  • Развитая инфраструктура

Предлагаем в аренду высококачественный сервисный офис на 43 рабочих места в бизнес-центре "Башня Федерация"... подробнее

Презентация по предложению

Собираете информацию? Получите подробную презентацию в удобном формате!

БЕЗ КОМИССИИ ID: 1322160 Рейтинг9.3 КлассА

Москва, Пресненская набережная, 12

Международная → 342 м
~ 3 мин
Арендная плата в месяц 1 600 000 ₽ 173 000 ₽/м² в год С учётом НДС
Характеристики 111 м² 3 этаж Готово к въезду
Преимущества
  • Класс А
  • Пешком от метро
  • Кондиционирование и вентиляция
  • Свой паркинг
  • Развитая инфраструктура

Предлагается в долгосрочную аренду высококачественный сервисный офис на 32 рабочих места в бизнес-центре "Башня Федерация"... подробнее

Презентация по предложению

Собираете информацию? Получите подробную презентацию в удобном формате!

Посмотреть все похожие предложения
Отнеситесь рационально к процессу поиска нового офиса!

Просто ответьте на 3 вопроса, и наши специалисты сами предложат оптимальные варианты под ваш бюджет

.