8.2
Смотреть все фото
БЕЗ КОМИССИИ ID: 1315907 Рейтинг4.0 КлассB

Москва, Бауманская улица, 20 с7

Бауманская → 473 м
~ 5 мин
Арендная плата в месяц 577 500 ₽ 19 500 ₽/м² в год С учётом НДС

Презентация по предложению

Собираете информацию? Получите подробную презентацию в удобном формате!

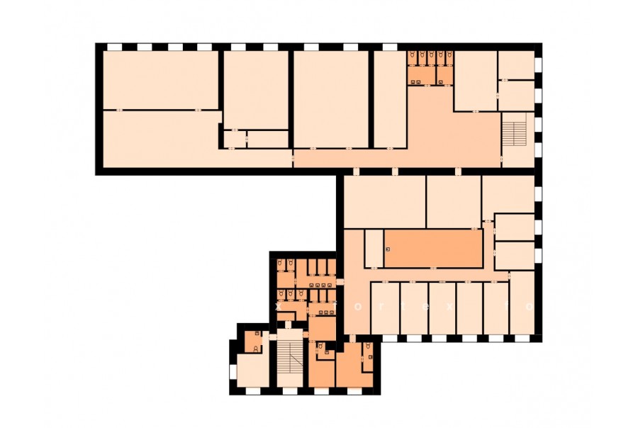
Площадь 356 м²
Состояние Готово к въезду
Планировка Кабинетная
Этаж 2

Описание

Преимущества
  • Класс B
  • Пешком от метро
  • Кондиционирование и вентиляция
Сдается в прямую аренду помещение под офис класса B общей площадью 356 кв.м в бизнес-центре.

Москва, ЦАО, Бауманская улица, 20 с7

Удобное расположение здания для всех видов транспорта:
- Автомобиль: близость транспортных магистралей, таких как Третье Транспортное Кольцо, Русаковская улица и других.
- Ближайшее метро: от метро "Бауманская" всего 4 мин пешком

Офис класса B:
- Помещение с отделкой, готово к въезду
- Кондиционирование: сплит-системы


Если предложение предварительно Вам подходит:

1. Мы подготовили презентацию с информацией о помещении, фотографиями и планировкой, чтобы Вы могли поделиться ей с коллегами или руководством. Попросите об этом нашего менеджера по телефону в объявлении.
2. Задайте любые вопросы менеджеру по телефону, готовы обсуждать любые предложения по финансовым условиям договора аренды.
3. Оперативно организуем просмотр помещения, договоримся на любое удобное время, подготовим виртуальный тур.

Вы можете позвонить нам в любое время. Мы ответим на Ваши вопросы по будням до 19:00, а поздно вечером или в выходные зафиксируем Ваш контакт и перезвоним в рабочее время.

Коммерческие условия

Арендная плата 549 990 ₽
Ставка арендной платы 19 500 ₽ м²/год
Эксплуатационные расходы Включены в ставку
Налоги С учётом НДС
Тип договора Прямая аренда
Срок договора от 11 месяцев
Размер платежей 1 месяц
Обеспечительный платеж 1 месяц
Статус Сдан

О бизнес-центре

Класс B
Этажность 2
Лифты Нет
Общая площадь 1 454 м²
Паркинг Стихийный
Вентиляция естественная
Кондиционирование сплит-системы
Телекоммуникации Интернет/Телефония

Расположение

Подробная презентацию по предложению

Собираете информацию? Получите подробную презентацию в удобном формате, чтобы обсудить вариант с коллегами или переслать руководству!

Похожие предложения в других зданиях

БЕЗ КОМИССИИ ID: 389225 Рейтинг6.6 КлассB

Москва, Бауманская улица, 16

Бауманская → 443 м
~ 4 мин
Арендная плата в месяц 600 000 ₽ 18 000 ₽/м² в год С учётом НДС
Характеристики 400 м² 3 - 5 этаж Готово к въезду
Преимущества
  • Класс B
  • Пешком от метро
  • Кондиционирование и вентиляция
  • Свой паркинг

Предлагается в долгосрочную аренду офисный блок класса B общей площадью 400 кв.м в недавно отреконструированном бизнес-центре... подробнее

Презентация по предложению

Собираете информацию? Получите подробную презентацию в удобном формате!

БЕЗ КОМИССИИ ID: 1325686 Рейтинг7.6 КлассB

Москва, Нижняя Красносельская улица, 35 с64

Бауманская → 580 м
~ 6 мин
Арендная плата в месяц 720 014 ₽ 22 400 ₽/м² в год Упрощённая система налогообложения
Характеристики 385 м² 5 этаж Готово к въезду
Преимущества
  • Класс B
  • Пешком от метро
  • Кондиционирование и вентиляция
  • Свой паркинг
  • Несколько провайдеров связи
  • Развитая инфраструктура

Предлагается в прямую аренду офис класса B общей площадью 385 квадратных метров в недавно отреконструированном бизнес-центре "Виктория Плаза"... подробнее

Презентация по предложению

Собираете информацию? Получите подробную презентацию в удобном формате!

БЕЗ КОМИССИИ ID: 235745 Рейтинг8.8 КлассB

Москва, Елоховский проезд, 3 с2

Бауманская → 393 м
~ 4 мин
Арендная плата в месяц 733 333 ₽ 22 000 ₽/м² в год С учётом НДС
Характеристики 400 м² 2 - 3 этаж Готово к въезду
Преимущества
  • Класс B
  • Пешком от метро
  • Кондиционирование и вентиляция
  • Свой паркинг

Сдается в прямую аренду офисное помещение класса B площадью 400 кв. метров в бизнес-центре... подробнее

Презентация по предложению

Собираете информацию? Получите подробную презентацию в удобном формате!

БЕЗ КОМИССИИ ID: 125430 Рейтинг7.3 КлассB+

Москва, Новорязанская улица, 31/7 к1

Бауманская → 577 м
~ 6 мин
Арендная плата в месяц 600 000 ₽ 18 000 ₽/м² в год С учётом НДС
Характеристики 400 м² 2 этаж Готово к въезду
Преимущества
  • Класс B+
  • Пешком от метро
  • Кондиционирование и вентиляция
  • Свой паркинг
  • Несколько провайдеров связи

Сдаем в прямую аренду офисный блок класса B+ площадью 400 квадратных метров в бизнес-центре "Немецкая Слобода"... подробнее

Презентация по предложению

Собираете информацию? Получите подробную презентацию в удобном формате!

БЕЗ КОМИССИИ ID: 182488 Рейтинг8.0 КлассB+

Москва, Нижняя Красносельская улица, 5 с6

Красносельская → 236 м
~ 2 мин
Арендная плата в месяц 614 250 ₽ 21 000 ₽/м² в год С учётом НДС
Характеристики 351 м² 0 - 1 этаж Готово к въезду
Преимущества
  • Класс B+
  • Пешком от метро
  • Кондиционирование и вентиляция
  • Свой паркинг

Предлагаем в прямую аренду офис класса B+ общей площадью 351 квадратных метров в бизнес-центре... подробнее

Презентация по предложению

Собираете информацию? Получите подробную презентацию в удобном формате!

Посмотреть все похожие предложения
Отнеситесь рационально к процессу поиска нового офиса!

Просто ответьте на 3 вопроса, и наши специалисты сами предложат оптимальные варианты под ваш бюджет

.