8.2
Смотреть все фото
БЕЗ КОМИССИИ ID: 1317132 Рейтинг9.5 КлассА
Бизнес-центр «Белые сады»

Аренда офиса 960 м²

Москва, Лесная улица, 7

Белорусская → 238 м
~ 2 мин
Арендная плата в месяц 7 954 400 ₽ 99 400 ₽/м² в год С учётом НДС

Презентация по предложению

Собираете информацию? Получите подробную презентацию в удобном формате!

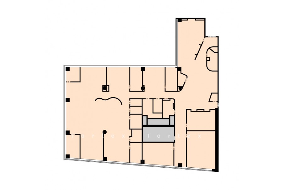
Площадь 960 м²
Состояние Готово к въезду
Планировка Смешанная
Этаж 7

Описание

Преимущества
  • Класс А
  • Пешком от метро
  • Кондиционирование и вентиляция
  • Свой паркинг
  • Развитая инфраструктура
Предлагаем в прямую аренду офисный блок класса А общей площадью 960 кв.м в бизнес-центре "Белые сады".

Москва, ЦАО, Лесная улица, 7

Удобное расположение здания для всех видов транспорта:
- Автомобиль: близость транспортных магистралей, таких как Ленинградский проспект и других.
- Возможность аренды парковочных мест.
- Ближайшее метро: буквально 3 мин пешком от метро "Белорусская"

Офис класса А:
- Помещение готово к въезду
- Вентиляция: Приточно-вытяжная вентиляция
- Кондиционирование: центральное
- Презентабельный центральный ресепшн
- Круглосуточная охрана и видеонаблюдение
- Развитая инфраструктура внутри здания

Возможность заключения контракта в соответствии с 44ФЗ по госзакупкам.

Что еще можно узнать о предложении:

1. Мы отправим Вам подробную презентацию с планировкой и фотографиями в течение 10 минут после звонка, чтобы Вы могли поделиться информацией с руководством или с коллегами.
2. Ответим на любые Ваши вопросы, готовы обсуждать любые предложения по коммерческим условиям аренды помещения.
3. Проводим показы ежедневно, договоримся на удобное для Вас время. Можем организовать виртуальный тур по офисному блоку.

Звоните нам в любое время. По будням мы сможем ответить на Ваши вопросы до 19:00. В выходные или вечернее время мы передадим Ваш контакт нашему менеджеру по аренде.

Коммерческие условия

Арендная плата 7 954 400 ₽
Ставка арендной платы 99 400 ₽ м²/год
Эксплуатационные расходы Включены в ставку
Налоги С учётом НДС
Тип договора Прямая аренда
Срок договора Долгосрочный
Размер платежей 3 месяц
Обеспечительный платеж 3 месяц
Статус Сдан

О бизнес-центре

Класс А
Этажность 17
Лифты Есть
Общая площадь 103 245 м²
Год постройки 2012
Паркинг Подземный
Вентиляция приточно-вытяжная
Кондиционирование центральное
Телекоммуникации Интернет/Телефония

Расположение

Подробная презентацию по предложению

Собираете информацию? Получите подробную презентацию в удобном формате, чтобы обсудить вариант с коллегами или переслать руководству!

Похожие предложения в других зданиях

БЕЗ КОМИССИИ ID: 1329127 Рейтинг9.3 КлассА

Москва, 1-я Тверская-Ямская улица, 21

Белорусская → 332 м
~ 4 мин
Арендная плата в месяц 6 763 578 ₽ 86 600 ₽/м² в год С учётом НДС
Характеристики 937 м² 9 этаж Готово к въезду
Преимущества
  • Класс А
  • Пешком от метро
  • Кондиционирование и вентиляция
  • Свой паркинг
  • Несколько провайдеров связи
  • Развитая инфраструктура

Сдается в долгосрочную аренду помещение под офис класса А площадью 937 кв. метров в бизнес-центре "Четыре Ветра"... подробнее

Презентация по предложению

Собираете информацию? Получите подробную презентацию в удобном формате!

БЕЗ КОМИССИИ ID: 188761 Рейтинг8.9 КлассА

Москва, Большая Грузинская улица, 30А с1

Баррикадная → 880 м
~ 9 мин
Арендная плата в месяц 8 601 000 ₽ 109 800 ₽/м² в год С учётом НДС
Характеристики 940 м² 4 этаж Отделка под арендатора
Преимущества
  • Класс А
  • Пешком от метро
  • Кондиционирование и вентиляция
  • Свой паркинг

Предлагается в долгосрочную аренду офисное помещение класса А общей площадью 940 квадр. метров в недавно отреконструированном бизнес-центре "Грузинка 30"... подробнее

Презентация по предложению

Собираете информацию? Получите подробную презентацию в удобном формате!

БЕЗ КОМИССИИ ID: 1327261 Рейтинг8.1 КлассА

Москва, Садовая-Кудринская улица, 32 с1

Маяковская → 581 м
~ 6 мин
Арендная плата в месяц 6 389 167 ₽ 85 000 ₽/м² в год С учётом НДС
Характеристики 902 м² 5 этаж Готово к въезду
Преимущества
  • Класс А
  • Пешком от метро
  • Кондиционирование и вентиляция
  • Свой паркинг
  • Развитая инфраструктура

Предлагаем в долгосрочную прямую аренду офис класса А общей площадью 902 кв.м в бизнес-центре "Бронная Плаза"... подробнее

Презентация по предложению

Собираете информацию? Получите подробную презентацию в удобном формате!

БЕЗ КОМИССИИ ID: 1100537 Рейтинг7.2 КлассB

Москва, Тверская улица, 18 к1

Пушкинская → 335 м
~ 3 мин
Арендная плата в месяц 9 150 000 ₽ 109 800 ₽/м² в год С учётом НДС
Характеристики 1 000 м² 4 этаж Готово к въезду
Преимущества
  • Класс B
  • Пешком от метро
  • Кондиционирование и вентиляция
  • Развитая инфраструктура

Собственник сдает в долгосрочную прямую аренду помещение под офис класса B общей площадью 1000 квадратных метров в бизнес-центре... подробнее

>

Виртуальный тур

Презентация по предложению

Собираете информацию? Получите подробную презентацию в удобном формате!

БЕЗ КОМИССИИ ID: 302747 Рейтинг7.2 КлассB

Москва, Тверская улица, 18 к1

Пушкинская → 335 м
~ 3 мин
Арендная плата в месяц 8 235 000 ₽ 109 800 ₽/м² в год С учётом НДС
Характеристики 900 м² 2 - 3 этаж Под отделку
Преимущества
  • Класс B
  • Пешком от метро
  • Кондиционирование и вентиляция
  • Развитая инфраструктура

Предлагается в долгосрочную прямую аренду офисное помещение класса B общей площадью 900 квадр. метров в бизнес-центре... подробнее

Презентация по предложению

Собираете информацию? Получите подробную презентацию в удобном формате!

Посмотреть все похожие предложения
Отнеситесь рационально к процессу поиска нового офиса!

Просто ответьте на 3 вопроса, и наши специалисты сами предложат оптимальные варианты под ваш бюджет

.