8.2
Смотреть все фото
БЕЗ КОМИССИИ ID: 1304231 Рейтинг4.9 КлассB

Москва, Бережковская набережная, 20

Киевская → 2.78 км
~ 11 мин
Арендная плата в месяц 920 300 ₽ 24 600 ₽/м² в год С учётом НДС

Презентация по предложению

Собираете информацию? Получите подробную презентацию в удобном формате!

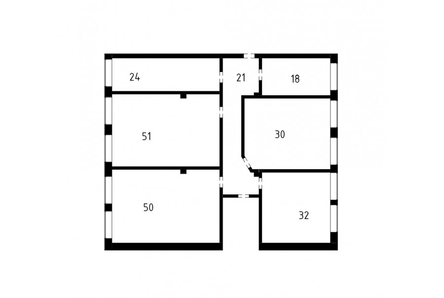
Площадь 449 м²
Состояние Готово к въезду
Планировка Кабинетная
Этаж 2

Описание

Преимущества
  • Класс B
  • Кондиционирование и вентиляция
  • Свой паркинг
Предлагаем в долгосрочную прямую аренду офисный блок класса B общей площадью 449 квадр. метров в бизнес-центре.

Москва, ЗАО, Бережковская набережная, 20

Характеристики местоположения:
- Автомобиль: близость транспортных магистралей, таких как Третье Транспортное Кольцо и других.
- Возможность аренды парковочных мест.
- Ближайшее метро: метро "Киевская", далее городской транспорт до здания

Офис класса B:
- Помещение готово к въезду


Если предложение предварительно Вам подходит:

1. Мы отправим Вам подробную презентацию с планировкой и фотографиями в течение 10 минут после звонка, чтобы Вы могли поделиться информацией с руководством или с коллегами.
2. Мы готовы ответить на любые Ваши вопросы о помещении и коммерческих условиях аренды.
3. Проводим показы ежедневно, договоримся на удобное для Вас время. Можем организовать виртуальный тур по офисному блоку.

Звоните нам в любое время. По будням мы сможем ответить на Ваши вопросы до 19:00. В выходные или вечернее время мы передадим Ваш контакт нашему менеджеру по аренде.

Коммерческие условия

Арендная плата 876 450 ₽
Ставка арендной платы 24 600 ₽ м²/год
Эксплуатационные расходы Включены в ставку
Налоги С учётом НДС
Тип договора Прямая аренда
Срок договора от 11 месяцев
Размер платежей 1 месяц
Обеспечительный платеж 1 месяц
Статус Сдан

О бизнес-центре

Класс B
Этажность 8
Лифты Нет
Общая площадь 100 000 м²
Паркинг Наземный
Вентиляция естественная
Кондиционирование возможность установки
Телекоммуникации Интернет/Телефония

Расположение

Подробная презентацию по предложению

Собираете информацию? Получите подробную презентацию в удобном формате, чтобы обсудить вариант с коллегами или переслать руководству!

Похожие предложения в других зданиях

БЕЗ КОМИССИИ ID: 181536 Рейтинг7.3 КлассB

Москва, Бережковская набережная, 28

Лужники → 1.7 км
~ 17 мин
Арендная плата в месяц 890 400 ₽ 21 200 ₽/м² в год С учётом НДС
Характеристики 504 м² 1 - 1 этаж Готово к въезду
Преимущества
  • Класс B
  • Пешком от метро
  • Кондиционирование и вентиляция
  • Свой паркинг

Предлагается в долгосрочную прямую аренду офис класса B общей площадью 504 квадр. метров в историческом недавно отреконструированном бизнес-центре "Мельников плаза"... подробнее

Презентация по предложению

Собираете информацию? Получите подробную презентацию в удобном формате!

БЕЗ КОМИССИИ ID: 263961 Рейтинг7.3 КлассB

Москва, Бережковская набережная, 28

Лужники → 1.7 км
~ 17 мин
Арендная плата в месяц 812 667 ₽ 21 200 ₽/м² в год С учётом НДС
Характеристики 460 м² -1 этаж Готово к въезду
Преимущества
  • Класс B
  • Пешком от метро
  • Кондиционирование и вентиляция
  • Свой паркинг

Сдается в долгосрочную аренду офис класса B площадью 460 квадр. метров в историческом недавно отреконструированном бизнес-центре "Мельников плаза"... подробнее

Презентация по предложению

Собираете информацию? Получите подробную презентацию в удобном формате!

БЕЗ КОМИССИИ ID: 302627 Рейтинг6.6 КлассB

Москва, Воробьевское шоссе, 6

Киевская → 3.74 км
~ 13 мин
Арендная плата в месяц 1 097 800 ₽ 26 400 ₽/м² в год С учётом НДС
Характеристики 499 м² 2 этаж Готово к въезду
Преимущества
  • Класс B
  • Кондиционирование и вентиляция
  • Свой паркинг

Предлагается в долгосрочную прямую аренду помещение под офис класса B общей площадью 499 квадр. метров в историческом бизнес-центре... подробнее

>

Виртуальный тур

Презентация по предложению

Собираете информацию? Получите подробную презентацию в удобном формате!

БЕЗ КОМИССИИ ID: 239063 Рейтинг6.6 КлассB

Москва, Воробьевское шоссе, 6

Киевская → 3.74 км
~ 13 мин
Арендная плата в месяц 944 167 ₽ 22 000 ₽/м² в год С учётом НДС
Характеристики 515 м² 1 этаж Готово к въезду
Преимущества
  • Класс B
  • Кондиционирование и вентиляция
  • Свой паркинг

Предлагается в долгосрочную прямую аренду офисное помещение класса B общей площадью 515 кв.м в историческом бизнес-центре... подробнее

Презентация по предложению

Собираете информацию? Получите подробную презентацию в удобном формате!

БЕЗ КОМИССИИ ID: 146183 Рейтинг7.8 КлассB+

Москва, Большой Саввинский переулок, 17

Спортивная → 1.42 км
~ 14 мин
Арендная плата в месяц 1 167 750 ₽ 27 000 ₽/м² в год С учётом НДС
Характеристики 519 м² 2 этаж Готово к въезду
Преимущества
  • Класс B+
  • Пешком от метро
  • Кондиционирование и вентиляция
  • Свой паркинг

Сдается в долгосрочную прямую аренду офисный блок класса B+ площадью 519 квадратных метров в историческом бизнес-центре... подробнее

Презентация по предложению

Собираете информацию? Получите подробную презентацию в удобном формате!

Посмотреть все похожие предложения
Отнеситесь рационально к процессу поиска нового офиса!

Просто ответьте на 3 вопроса, и наши специалисты сами предложат оптимальные варианты под ваш бюджет

.