8.2
Смотреть все фото
БЕЗ КОМИССИИ ID: 1318198 Рейтинг7.4 КлассА
Бизнес-центр «Берников»

Аренда офиса 2000 м²

Москва, Николоямская улица, 11 с2

Таганская → 1.04 км
~ 10 мин
Арендная плата в месяц 7 930 000 ₽ 47 600 ₽/м² в год С учётом НДС

Презентация по предложению

Собираете информацию? Получите подробную презентацию в удобном формате!

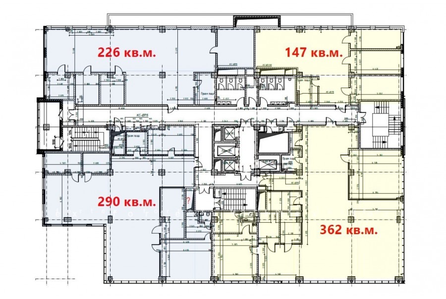
Площадь 2 000 м²
Состояние Под отделку
Планировка Открытая
Этаж 6 - 7

Описание

Преимущества
  • Класс А
  • Пешком от метро
  • Свой паркинг
Предлагаем в долгосрочную аренду офис класса А общей площадью 2000 квадратных метров в бизнес-центре "Берников".

Москва, ЦАО, Николоямская улица, 11 с2

Удобное расположение в пределах Садового кольца:
- Возможность аренды парковочных мест.
- Ближайшее метро: от метро "Таганская" всего 11 мин пешком

Офис класса А:
- Офис без отделки
- Презентабельный центральный ресепшн
- Круглосуточная охрана и видеонаблюдение

Возможность заключения контракта в соответствии с 44ФЗ по госзакупкам.

Если данное предложение подходит Вашему запросу:

1. Получите презентацию в течение 10 минут в Whatsapp или на почту с фотографиями и планировкой, чтобы обсудить данный вариант с коллегами или переслать руководству. Для этого позвоните по телефону, указанному в объявлении.
2. Мы готовы ответить на любые Ваши вопросы о помещении и коммерческих условиях аренды.
3. Оперативно организуем просмотр помещения, договоримся на любое удобное время, подготовим виртуальный тур.

Вы можете позвонить нам в любое время. Мы ответим на Ваши вопросы по будням до 19:00, а поздно вечером или в выходные зафиксируем Ваш контакт и перезвоним в рабочее время.

Коммерческие условия

Арендная плата 7 930 000 ₽
Ставка арендной платы 29 000 ₽ м²/год
Эксплуатационные расходы 10 000 ₽
Налоги Без НДС
Тип договора Прямая аренда
Срок договора Долгосрочный
Размер платежей 1 месяц
Обеспечительный платеж 3 месяц
Статус Свободен

О бизнес-центре

Класс А
Этажность 11
Лифты Есть
Общая площадь 15 599 м²
Паркинг Подземный
Вентиляция приточно-вытяжная
Кондиционирование сплит-системы
Телекоммуникации Интернет/Телефония

Расположение

Подробная презентацию по предложению

Собираете информацию? Получите подробную презентацию в удобном формате, чтобы обсудить вариант с коллегами или переслать руководству!

Похожие предложения в других зданиях

БЕЗ КОМИССИИ ID: 987574 Рейтинг6.6 КлассB+

Москва, Николоямская улица, 13 с2

Таганская → 831 м
~ 8 мин
Арендная плата в месяц 4 052 600 ₽ 27 600 ₽/м² в год С учётом НДС
Характеристики 1 762 м² 4 - 5 этаж Готово к въезду
Преимущества
  • Класс B+
  • Пешком от метро
  • Свой паркинг
  • Несколько провайдеров связи

Предлагаем в прямую аренду офис класса B+ общей площадью 1762 квадр. метров в бизнес-центре... подробнее

Презентация по предложению

Собираете информацию? Получите подробную презентацию в удобном формате!

БЕЗ КОМИССИИ ID: 178397 Рейтинг6.4 КлассB

Москва, Николоямская улица, 13 с1

Таганская → 808 м
~ 8 мин
Арендная плата в месяц 4 264 583 ₽ 25 000 ₽/м² в год С учётом НДС
Характеристики 2 047 м² 0 - 3 этаж Готово к въезду
Преимущества
  • Класс B
  • Пешком от метро
  • Свой паркинг
  • Несколько провайдеров связи

Сдается в долгосрочную аренду офисный блок класса B площадью 2047 кв. метров в бизнес-центре... подробнее

Презентация по предложению

Собираете информацию? Получите подробную презентацию в удобном формате!

БЕЗ КОМИССИИ ID: 982060 Рейтинг6.6 КлассB

Москва, улица Воронцово Поле, 16 с1

Курская → 539 м
~ 5 мин
Арендная плата в месяц 5 032 300 ₽ 31 800 ₽/м² в год С учётом НДС
Характеристики 1 896 м² -1 - 4 этаж Готово к въезду
Преимущества
  • Класс B
  • Пешком от метро
  • Кондиционирование и вентиляция

Собственник сдает в прямую аренду офисное помещение класса B площадью 1896 квадр. метров в историческом бизнес-центре... подробнее

>

Виртуальный тур

Презентация по предложению

Собираете информацию? Получите подробную презентацию в удобном формате!

БЕЗ КОМИССИИ ID: 76616 Рейтинг7.8 КлассB+

Москва, Большой Полуярославский переулок, 8

Курская → 537 м
~ 6 мин
Арендная плата в месяц 4 550 000 ₽ 26 000 ₽/м² в год С учётом НДС
Характеристики 2 100 м² 1 - 4 этаж Готово к въезду
Преимущества
  • Класс B+
  • Пешком от метро
  • Кондиционирование и вентиляция
  • Свой паркинг

Предлагается в долгосрочную аренду офис класса B+ общей площадью 2100 кв.м в бизнес-центре... подробнее

Презентация по предложению

Собираете информацию? Получите подробную презентацию в удобном формате!

БЕЗ КОМИССИИ ID: 206869 Рейтинг8.5 КлассB+

Москва, Садовническая улица, 41 с2

Новокузнецкая → 819 м
~ 8 мин
Арендная плата в месяц 4 450 417 ₽ 27 500 ₽/м² в год С учётом НДС
Характеристики 1 942 м² 1 - 4 этаж Готово к въезду
Преимущества
  • Класс B+
  • Пешком от метро
  • Кондиционирование и вентиляция

Сдаем в прямую аренду офисное помещение класса B+ площадью 1942 квадр. метров в новом бизнес-центре... подробнее

Презентация по предложению

Собираете информацию? Получите подробную презентацию в удобном формате!

Посмотреть все похожие предложения
Отнеситесь рационально к процессу поиска нового офиса!

Просто ответьте на 3 вопроса, и наши специалисты сами предложат оптимальные варианты под ваш бюджет

.