8.2
Смотреть все фото
БЕЗ КОМИССИИ ID: 1316775 Рейтинг8.4 КлассB+
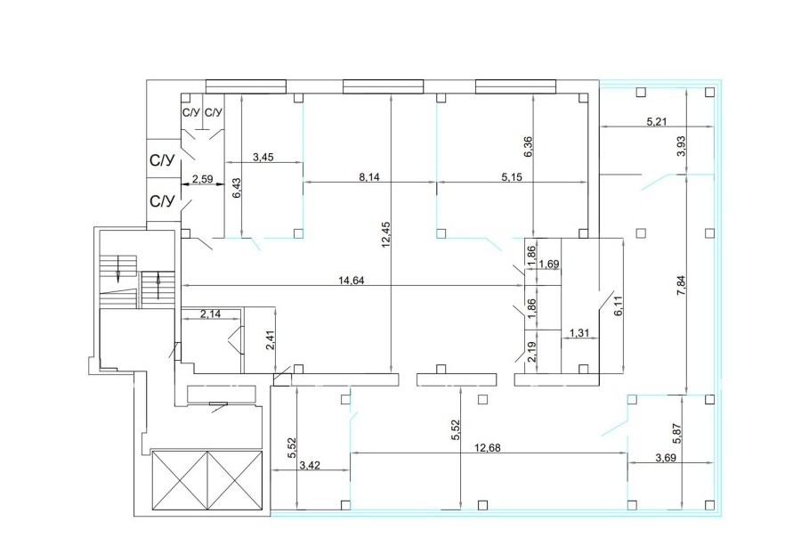
Бизнес-центр «Бейкер Плаза»

Продажа офиса 425 м²

Москва, улица Бутырский Вал, 68/70 с1

Савёловская → 728 м
~ 7 мин
Стоимость 170 млн ₽ 400 000 ₽/м²

Презентация по предложению

Собираете информацию? Получите подробную презентацию в удобном формате!

Площадь 425 м²
Состояние Готово к въезду
Планировка Кабинетная
Этаж 5

Описание

Преимущества
  • Класс B+
  • Пешком от метро
  • Кондиционирование и вентиляция
  • Свой паркинг
  • Несколько провайдеров связи
Продается офис площадью 425 кв.м в бизнес-центре "Бейкер Плаза".

Помещение можно адаптировать под любой бизнес благодаря функциональной планировке - идеальный баланс комфорта и экономической выгоды. Оптимальное решение для стабильного бизнеса или выгодных инвестиций.

Офис класса B+:
- Помещение с отделкой, готово к въезду
- Вентиляция: Приточно-вытяжная вентиляция
- Кондиционирование: центральное

О офисном центре:
Москва, ЦАО, улица Бутырский Вал, 68/70 с1

Удобная локация здания:
- Автомобиль: близость транспортных магистралей, таких как Третье Транспортное Кольцо, Бутырская улица и других.
- Возможность аренды парковочных мест.
- Ближайшее метро: от метро "Савёловская" всего 7 мин пешком



Если данное предложение подходит Вашему запросу:

1. Мы подготовили презентацию с информацией о помещении, фотографиями и планировкой, чтобы Вы могли поделиться ей с коллегами или руководством. Попросите об этом нашего менеджера по телефону в объявлении.
2. Мы готовы ответить на любые Ваши вопросы о помещении и коммерческих условиях продажи.

Вы можете позвонить нам в любое время. Мы ответим на Ваши вопросы по будням до 19:00, а поздно вечером или в выходные сможем передать Ваш контакт нашему менеджеру.

О бизнес-центре

Класс B+
Этажность 6
Лифты Есть
Общая площадь 17 540 м²
Год постройки 2007
Паркинг Наземный
Вентиляция приточно-вытяжная
Кондиционирование центральное
Телекоммуникации Интернет/Телефония

Расположение

Подробная презентацию по предложению

Собираете информацию? Получите подробную презентацию в удобном формате, чтобы обсудить вариант с коллегами или переслать руководству!

Похожие предложения в других зданиях

БЕЗ КОМИССИИ ID: 1318124 Рейтинг9.0 КлассА

Москва, Бумажный проезд, 19

Савёловская → 638 м
~ 6 мин
Стоимость 9 599 998 650 ₽ 658 700 ₽/м²
Характеристики 14 575 м² -2 - 9 этаж Готово к въезду
Преимущества
  • Класс А
  • Пешком от метро
  • Новое строительство
  • Кондиционирование и вентиляция

Продается офисное помещение общей площадью 14575 квадратных метров в бизнес-центре "STONE Towers". .. подробнее

Презентация по предложению

Собираете информацию? Получите подробную презентацию в удобном формате!

БЕЗ КОМИССИИ ID: 1377102 Рейтинг9.0 КлассА

Москва, Бумажный проезд, 19

Савёловская → 638 м
~ 6 мин
Стоимость 45 500 000 ₽ 650 000 ₽/м²
Характеристики 70 м² 8 этаж Под отделку
Преимущества
  • Класс А
  • Пешком от метро
  • Новое строительство
  • Кондиционирование и вентиляция

Продается офис общей площадью 70 кв. метров в бизнес-центре "STONE Towers". .. подробнее

Презентация по предложению

Собираете информацию? Получите подробную презентацию в удобном формате!

БЕЗ КОМИССИИ ID: 1300765 Рейтинг9.5 КлассB

Москва, Бутырская улица, 1

Савёловская → 237 м
~ 2 мин
Стоимость 191 478 000 ₽ 658 000 ₽/м²
Характеристики 291 м² 9 этаж Под отделку
Преимущества
  • Класс B
  • Пешком от метро
  • Новое строительство
  • Кондиционирование и вентиляция

Продается офис площадью 291 кв.м в бизнес-центре "Twist". .. подробнее

Презентация по предложению

Собираете информацию? Получите подробную презентацию в удобном формате!

БЕЗ КОМИССИИ ID: 1327283 Рейтинг9.5 КлассB

Москва, Бутырская улица, 1

Савёловская → 237 м
~ 2 мин
Стоимость 138 713 000 ₽ 851 000 ₽/м²
Характеристики 163 м² 7 этаж Под отделку
Преимущества
  • Класс B
  • Пешком от метро
  • Новое строительство
  • Кондиционирование и вентиляция

Продается офисный блок общей площадью 163 квадратных метров в бизнес-центре "Twist". .. подробнее

Презентация по предложению

Собираете информацию? Получите подробную презентацию в удобном формате!

БЕЗ КОМИССИИ ID: 1311907 Рейтинг9.5 КлассB

Москва, Бутырская улица, 1

Савёловская → 237 м
~ 2 мин
Стоимость 136 440 000 ₽ 758 000 ₽/м²
Характеристики 180 м² 6 этаж Под отделку
Преимущества
  • Класс B
  • Пешком от метро
  • Новое строительство
  • Кондиционирование и вентиляция

В продаже офис общей площадью 180 кв.м в бизнес-центре "Twist". .. подробнее

Презентация по предложению

Собираете информацию? Получите подробную презентацию в удобном формате!

Посмотреть все похожие предложения
Отнеситесь рационально к процессу поиска нового офиса!

Просто ответьте на 3 вопроса, и наши специалисты сами предложат оптимальные варианты под ваш бюджет

.