8.2
Смотреть все фото
БЕЗ КОМИССИИ ID: 145665 Рейтинг6.4 КлассB

Москва, улица Большая Дмитровка, 10/2 с5

Охотный Ряд → 571 м
~ 6 мин
Арендная плата в месяц 705 200 ₽ 21 000 ₽/м² в год С учётом НДС

Презентация по предложению

Собираете информацию? Получите подробную презентацию в удобном формате!

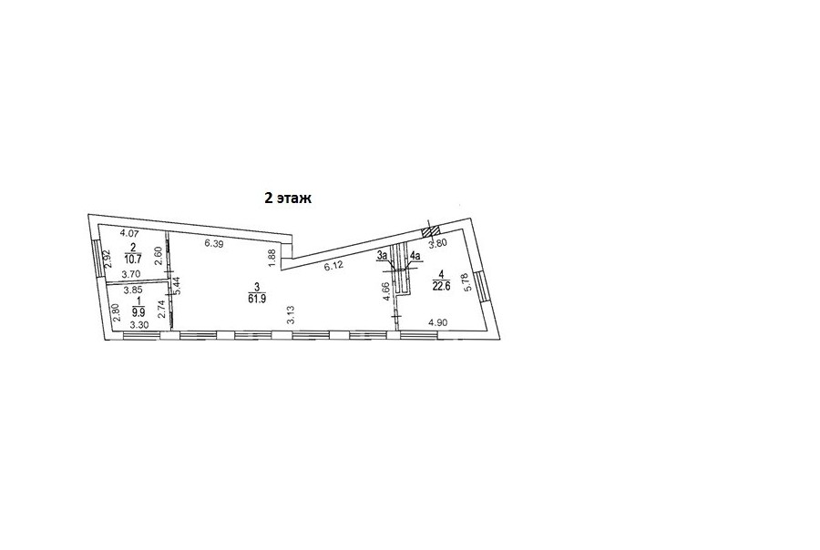
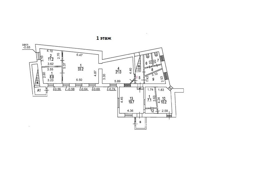
Площадь 403 м²
Состояние Готово к въезду
Планировка Кабинетная
Этаж -1 - 2

Описание

Преимущества
  • Класс B
  • Пешком от метро
  • Кондиционирование и вентиляция
  • Свой паркинг
Предлагается в долгосрочную прямую аренду офисное помещение класса B площадью 403 квадр. метров в бизнес-центре.

Москва, ЦАО, улица Большая Дмитровка, 10/2 с5

Удобное расположение в пределах Садового кольца:
- Возможность аренды парковочных мест.
- Ближайшее метро: от метро "Охотный Ряд" всего 7 мин пешком

Офис класса B:
- Офис с отделкой, полностью готов к аренде
- Кондиционирование: сплит-системы


Что еще можно узнать о предложении:

1. Мы отправим Вам подробную презентацию с планировкой и фотографиями в течение 10 минут после звонка, чтобы Вы могли поделиться информацией с руководством или с коллегами.
2. Ответим на любые Ваши вопросы, готовы обсуждать любые предложения по коммерческим условиям аренды помещения.
3. Проводим показы ежедневно, договоримся на удобное для Вас время. Можем организовать виртуальный тур по офисному блоку.

Вы можете позвонить нам в любое время. Мы ответим на Ваши вопросы по будням до 19:00, а поздно вечером или в выходные сможем передать Ваш контакт нашему менеджеру.

Коммерческие условия

Арендная плата 860 410 ₽
Ставка арендной платы 21 000 ₽ м²/год
Эксплуатационные расходы Включены в ставку
Налоги С учётом НДС
Тип договора Прямая аренда
Срок договора Долгосрочный
Размер платежей 1 месяц
Обеспечительный платеж 1 месяц
Статус Сдан

О бизнес-центре

Класс B
Этажность 2
Лифты Нет
Общая площадь 403 м²
Паркинг Наземный
Вентиляция естественная
Кондиционирование сплит-системы
Телекоммуникации Интернет/Телефония

Расположение

Подробная презентацию по предложению

Собираете информацию? Получите подробную презентацию в удобном формате, чтобы обсудить вариант с коллегами или переслать руководству!

Похожие предложения в других зданиях

БЕЗ КОМИССИИ ID: 198594 Рейтинг7.2 КлассB+

Москва, улица Большая Дмитровка, 7/5 с4

Охотный Ряд → 373 м
~ 4 мин
Арендная плата в месяц 775 583 ₽ 20 500 ₽/м² в год С учётом НДС
Характеристики 454 м² 6 - 7 этаж Готово к въезду
Преимущества
  • Класс B+
  • Пешком от метро
  • Кондиционирование и вентиляция

Предлагается в долгосрочную прямую аренду офисное помещение класса B+ общей площадью 454 квадратных метров в бизнес-центре... подробнее

Презентация по предложению

Собираете информацию? Получите подробную презентацию в удобном формате!

БЕЗ КОМИССИИ ID: 54762 Рейтинг6.6 КлассB

Москва, Столешников переулок, 6 с3

Охотный Ряд → 661 м
~ 7 мин
Арендная плата в месяц 738 167 ₽ 21 500 ₽/м² в год С учётом НДС
Характеристики 412 м² 3 этаж Готово к въезду
Преимущества
  • Класс B
  • Пешком от метро
  • Кондиционирование и вентиляция
  • Свой паркинг

Собственник сдает в долгосрочную прямую аренду офис класса B общей площадью 412 кв. метров в историческом бизнес-центре... подробнее

Презентация по предложению

Собираете информацию? Получите подробную презентацию в удобном формате!

БЕЗ КОМИССИИ ID: 162886 Рейтинг6.3 КлассB

Москва, Глинищевский переулок, 3

Пушкинская → 339 м
~ 3 мин
Арендная плата в месяц 802 300 ₽ 21 300 ₽/м² в год С учётом НДС
Характеристики 452 м² 4 этаж Готово к въезду
Преимущества
  • Класс B
  • Пешком от метро
  • Кондиционирование и вентиляция
  • Развитая инфраструктура

Предлагается в долгосрочную прямую аренду офис класса B общей площадью 452 кв.м в историческом бизнес-центре... подробнее

Презентация по предложению

Собираете информацию? Получите подробную презентацию в удобном формате!

БЕЗ КОМИССИИ ID: 53585 Рейтинг8.1 КлассB

Москва, Звонарский переулок, 5 с2

Трубная → 526 м
~ 5 мин
Арендная плата в месяц 787 500 ₽ 21 000 ₽/м² в год С учётом НДС
Характеристики 450 м² 2 - 5 этаж Готово к въезду
Преимущества
  • Класс B
  • Пешком от метро
  • Кондиционирование и вентиляция
  • Свой паркинг

Предлагается в прямую аренду офис класса B площадью 450 квадр. метров в историческом бизнес-центре... подробнее

Презентация по предложению

Собираете информацию? Получите подробную презентацию в удобном формате!

ВОЗМОЖНО ОСВОБОЖДЕНИЕ ID: 127540 Рейтинг6.4 КлассB

Москва, Тверская улица, 12 с1

Чеховская → 381 м
~ 4 мин
Арендная плата в месяц 666 667 ₽ 20 000 ₽/м² в год С учётом НДС
Характеристики 400 м² 3 этаж Готово к въезду
Преимущества
  • Класс B
  • Пешком от метро
  • Кондиционирование и вентиляция
  • Свой паркинг
  • Развитая инфраструктура

Сдается в прямую аренду офисное помещение класса B общей площадью 400 квадратных метров в бизнес-центре... подробнее

Презентация по предложению

Собираете информацию? Получите подробную презентацию в удобном формате!

Посмотреть все похожие предложения
Отнеситесь рационально к процессу поиска нового офиса!

Просто ответьте на 3 вопроса, и наши специалисты сами предложат оптимальные варианты под ваш бюджет

.