8.2
Смотреть все фото
БЕЗ КОМИССИИ ID: 68827 Рейтинг8.3 КлассА

Москва, улица Большая Ордынка, 40 с1

Полянка → 402 м
~ 4 мин
Арендная плата в месяц 1 168 000 ₽ 32 000 ₽/м² в год С учётом НДС

Презентация по предложению

Собираете информацию? Получите подробную презентацию в удобном формате!

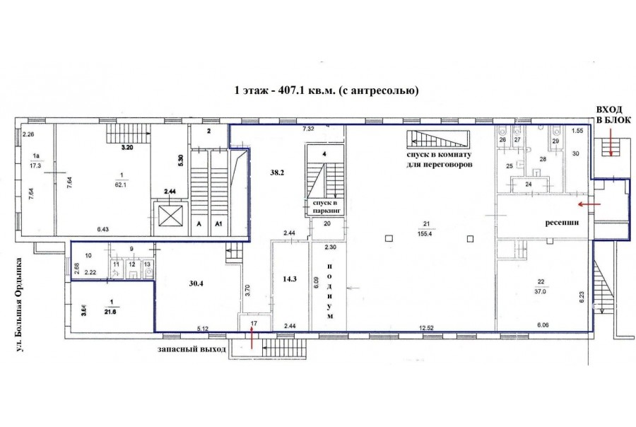
Площадь 438 м²
Состояние Готово к въезду
Планировка Смешанная
Этаж 0 - 1

Описание

Преимущества
  • Класс А
  • Пешком от метро
  • Кондиционирование и вентиляция
  • Несколько провайдеров связи
  • Развитая инфраструктура
Сдается в прямую аренду офисное помещение класса А площадью 438 квадратных метров в бизнес-центре "Большая Ордынка".

Москва, ЦАО, улица Большая Ордынка, 40 с1

Удобное расположение в пределах Садового кольца:
- Возможность аренды парковочных мест.
- Ближайшее метро: от метро "Полянка" всего 6 мин пешком

Офис класса А:
- Офис с отделкой, полностью готов к аренде
- Вентиляция: Приточно-вытяжная вентиляция
- Кондиционирование: центральное
- Развитая инфраструктура внутри здания

Возможность заключения контракта в соответствии с 44ФЗ по госзакупкам.

Если данное предложение подходит Вашему запросу:

1. Мы отправим Вам подробную презентацию с планировкой и фотографиями в течение 10 минут после звонка, чтобы Вы могли поделиться информацией с руководством или с коллегами.
2. Мы готовы ответить на любые Ваши вопросы о помещении и коммерческих условиях аренды.
3. Покажем помещение в удобное для Вас время с менеджером в здании, при необходимости подготовим виртуальный тур.

Звоните нам в любое время. По будням мы сможем ответить на Ваши вопросы до 19:00. В выходные или вечернее время мы передадим Ваш контакт нашему менеджеру по аренде.

Коммерческие условия

Арендная плата 1 168 000 ₽
Ставка арендной платы 32 000 ₽ м²/год
Эксплуатационные расходы Включены в ставку
Налоги С учётом НДС
Тип договора Прямая аренда
Срок договора от 11 месяцев
Размер платежей 1 месяц
Обеспечительный платеж 1 месяц
Статус Сдан

О бизнес-центре

Класс А
Этажность 4
Лифты Есть
Общая площадь 4 628 м²
Год постройки 2000
Паркинг Наземный и подземный
Вентиляция приточно-вытяжная
Кондиционирование центральное
Телекоммуникации Интернет/Телефония

Расположение

Подробная презентацию по предложению

Собираете информацию? Получите подробную презентацию в удобном формате, чтобы обсудить вариант с коллегами или переслать руководству!

Похожие предложения в других зданиях

БЕЗ КОМИССИИ ID: 306650 Рейтинг8.4 КлассА

Москва, улица Большая Ордынка, 44 с4

Полянка → 574 м
~ 6 мин
Арендная плата в месяц 1 099 583 ₽ 32 500 ₽/м² в год С учётом НДС
Характеристики 406 м² 2 этаж Готово к въезду
Преимущества
  • Класс А
  • Пешком от метро
  • Кондиционирование и вентиляция
  • Свой паркинг
  • Несколько провайдеров связи

Предлагается в долгосрочную прямую аренду офисный блок класса А общей площадью 406 квадр. метров в недавно отреконструированном бизнес-центре "Ордынский"... подробнее

Презентация по предложению

Собираете информацию? Получите подробную презентацию в удобном формате!

БЕЗ КОМИССИИ ID: 129306 Рейтинг5.9 КлассB

Москва, Пыжёвский переулок, 5 с2

Третьяковская → 338 м
~ 4 мин
Арендная плата в месяц 910 000 ₽ 28 000 ₽/м² в год С учётом НДС
Характеристики 390 м² 5 - 6 этаж Готово к въезду
Преимущества
  • Класс B
  • Пешком от метро
  • Кондиционирование и вентиляция
  • Свой паркинг

Сдаем в прямую аренду помещение под офис класса B общей площадью 390 квадратных метров в историческом бизнес-центре... подробнее

Презентация по предложению

Собираете информацию? Получите подробную презентацию в удобном формате!

БЕЗ КОМИССИИ ID: 148811 Рейтинг9.0 КлассB+

Москва, улица Большая Полянка, 39 с1

Полянка → 313 м
~ 3 мин
Арендная плата в месяц 1 198 400 ₽ 32 100 ₽/м² в год С учётом НДС
Характеристики 448 м² 1 - 2 этаж Под отделку
Преимущества
  • Класс B+
  • Пешком от метро
  • Кондиционирование и вентиляция
  • Свой паркинг

Предлагается в прямую аренду помещение под офис класса B+ общей площадью 448 квадр. метров в бизнес-центре... подробнее

Презентация по предложению

Собираете информацию? Получите подробную презентацию в удобном формате!

БЕЗ КОМИССИИ ID: 1374909 Рейтинг7.4 КлассB+

Москва, Пятницкая улица, 55/25 с4

Добрынинская → 741 м
~ 7 мин
Арендная плата в месяц 1 163 250 ₽ 33 000 ₽/м² в год С учётом НДС
Характеристики 423 м² 4 этаж Готово к въезду
Преимущества
  • Класс B+
  • Пешком от метро
  • Кондиционирование и вентиляция

Сдается в прямую аренду офисный блок класса B+ площадью 423 кв. метров в бизнес-центре... подробнее

Презентация по предложению

Собираете информацию? Получите подробную презентацию в удобном формате!

БЕЗ КОМИССИИ ID: 1242945 Рейтинг7.7 КлассB+

Москва, 2-й Казачий переулок, 11 с1

Добрынинская → 639 м
~ 6 мин
Арендная плата в месяц 1 159 583 ₽ 30 200 ₽/м² в год С учётом НДС
Характеристики 460 м² 6 этаж Готово к въезду
Преимущества
  • Класс B+
  • Пешком от метро
  • Кондиционирование и вентиляция
  • Свой паркинг
  • Несколько провайдеров связи

Предлагается в долгосрочную аренду офисный блок класса B+ общей площадью 460 кв.м в историческом недавно отреконструированном бизнес-центре "АТВ"... подробнее

Презентация по предложению

Собираете информацию? Получите подробную презентацию в удобном формате!

Посмотреть все похожие предложения
Отнеситесь рационально к процессу поиска нового офиса!

Просто ответьте на 3 вопроса, и наши специалисты сами предложат оптимальные варианты под ваш бюджет

.