8.2
Смотреть все фото
БЕЗ КОМИССИИ ID: 206130 Рейтинг8.3 КлассА

Москва, улица Большая Ордынка, 40 с1

Полянка → 402 м
~ 4 мин
Арендная плата в месяц 1 605 500 ₽ 26 000 ₽/м² в год С учётом НДС

Презентация по предложению

Собираете информацию? Получите подробную презентацию в удобном формате!

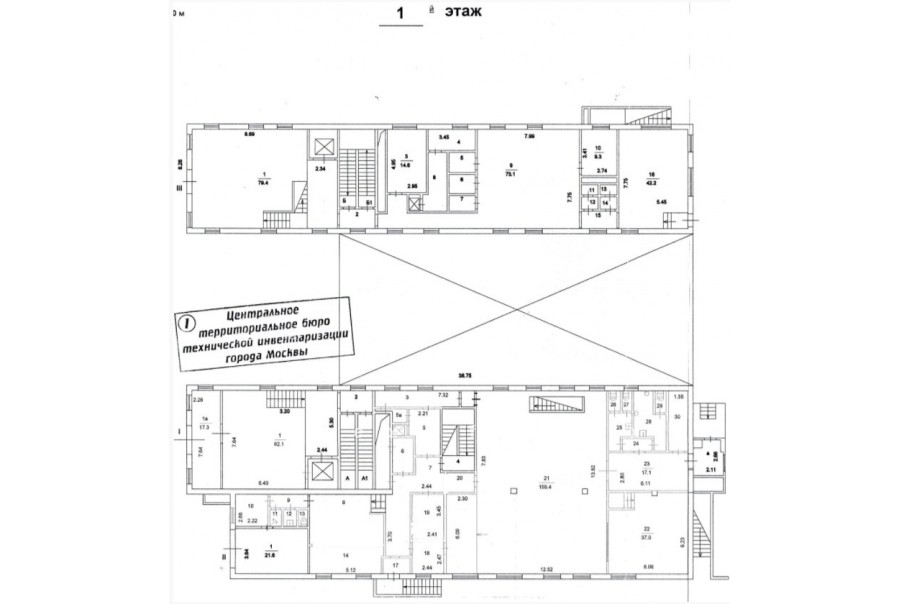
Площадь 741 м²
Состояние Готово к въезду
Планировка Кабинетная
Этаж 1

Описание

Преимущества
  • Класс А
  • Пешком от метро
  • Кондиционирование и вентиляция
  • Несколько провайдеров связи
  • Развитая инфраструктура
Предлагается в долгосрочную аренду офисный блок класса А общей площадью 741 кв.м в бизнес-центре "Большая Ордынка".

Москва, ЦАО, улица Большая Ордынка, 40 с1

Удобное расположение в пределах Садового кольца:
- Возможность аренды парковочных мест.
- Ближайшее метро: от метро "Полянка" всего 6 мин пешком

Офис класса А:
- Офис с отделкой, полностью готов к аренде
- Вентиляция: Приточно-вытяжная вентиляция
- Кондиционирование: центральное
- Развитая инфраструктура внутри здания

Возможность заключения контракта в соответствии с 44ФЗ по госзакупкам.

Что еще можно узнать о предложении:

1. Получите презентацию в течение 10 минут в Whatsapp или на почту с фотографиями и планировкой, чтобы обсудить данный вариант с коллегами или переслать руководству. Для этого позвоните по телефону, указанному в объявлении.
2. Задайте любые вопросы менеджеру по телефону, готовы обсуждать любые предложения по финансовым условиям договора аренды.
3. Оперативно организуем просмотр помещения, договоримся на любое удобное время, подготовим виртуальный тур.

Звоните нам в любое время. По будням мы сможем ответить на Ваши вопросы до 19:00. В выходные или вечернее время мы передадим Ваш контакт нашему менеджеру по аренде.

Коммерческие условия

Арендная плата 1 605 500 ₽
Ставка арендной платы 26 000 ₽ м²/год
Эксплуатационные расходы Включены в ставку
Налоги С учётом НДС
Тип договора Прямая аренда
Срок договора от 11 месяцев
Размер платежей 1 месяц
Обеспечительный платеж 1 месяц
Статус Сдан

О бизнес-центре

Класс А
Этажность 4
Лифты Есть
Общая площадь 4 628 м²
Год постройки 2000
Паркинг Наземный и подземный
Вентиляция приточно-вытяжная
Кондиционирование центральное
Телекоммуникации Интернет/Телефония

Расположение

Подробная презентацию по предложению

Собираете информацию? Получите подробную презентацию в удобном формате, чтобы обсудить вариант с коллегами или переслать руководству!

Похожие предложения в других зданиях

БЕЗ КОМИССИИ ID: 215508 Рейтинг6.0 КлассB

Москва, улица Большая Ордынка, 38 с1

Полянка → 478 м
~ 5 мин
Арендная плата в месяц 1 400 000 ₽ 24 000 ₽/м² в год С учётом НДС
Характеристики 700 м² 1 - 2 этаж Готово к въезду
Преимущества
  • Класс B
  • Пешком от метро
  • Кондиционирование и вентиляция
  • Свой паркинг

Сдается в долгосрочную аренду помещение под офис класса B площадью 700 кв.м в историческом недавно отреконструированном бизнес-центре... подробнее

Презентация по предложению

Собираете информацию? Получите подробную презентацию в удобном формате!

БЕЗ КОМИССИИ ID: 186977 Рейтинг6.9 КлассB

Москва, Пятницкая улица, 42

Третьяковская → 529 м
~ 5 мин
Арендная плата в месяц 1 562 500 ₽ 25 000 ₽/м² в год С учётом НДС
Характеристики 750 м² 1 - 3 этаж Готово к въезду
Преимущества
  • Класс B
  • Пешком от метро
  • Кондиционирование и вентиляция
  • Свой паркинг

Собственник сдает в долгосрочную прямую аренду помещение под офис класса B площадью 750 кв. метров в бизнес-центре... подробнее

Презентация по предложению

Собираете информацию? Получите подробную презентацию в удобном формате!

БЕЗ КОМИССИИ ID: 172942 Рейтинг7.7 КлассB+

Москва, 2-й Казачий переулок, 11 с1

Добрынинская → 639 м
~ 6 мин
Арендная плата в месяц 1 484 000 ₽ 24 000 ₽/м² в год С учётом НДС
Характеристики 742 м² 5 этаж Готово к въезду
Преимущества
  • Класс B+
  • Пешком от метро
  • Кондиционирование и вентиляция
  • Свой паркинг
  • Несколько провайдеров связи

Предлагаем в долгосрочную аренду помещение под офис класса B+ общей площадью 742 квадр. метров в историческом недавно отреконструированном бизнес-центре "АТВ"... подробнее

Презентация по предложению

Собираете информацию? Получите подробную презентацию в удобном формате!

БЕЗ КОМИССИИ ID: 256290 Рейтинг8.5 КлассB+

Москва, улица Малая Полянка, 2

Полянка → 118 м
~ 1 мин
Арендная плата в месяц 1 597 917 ₽ 29 500 ₽/м² в год С учётом НДС
Характеристики 650 м² 2 этаж Готово к въезду
Преимущества
  • Класс B+
  • Пешком от метро
  • Кондиционирование и вентиляция
  • Свой паркинг
  • Несколько провайдеров связи

Предлагаем в долгосрочную прямую аренду офисный блок класса B+ площадью 650 квадратных метров в бизнес-центре "Онегин"... подробнее

Презентация по предложению

Собираете информацию? Получите подробную презентацию в удобном формате!

БЕЗ КОМИССИИ ID: 1150599 Рейтинг6.4 КлассB

Москва, улица Большая Полянка, 51А/9

Добрынинская → 537 м
~ 5 мин
Арендная плата в месяц 1 552 500 ₽ 22 500 ₽/м² в год С учётом НДС
Характеристики 828 м² 1 этаж Готово к въезду
Преимущества
  • Класс B
  • Пешком от метро
  • Кондиционирование и вентиляция
  • Развитая инфраструктура

Предлагается в долгосрочную аренду офисный блок класса B площадью 828 кв. метров в историческом бизнес-центре... подробнее

Презентация по предложению

Собираете информацию? Получите подробную презентацию в удобном формате!

Посмотреть все похожие предложения
Отнеситесь рационально к процессу поиска нового офиса!

Просто ответьте на 3 вопроса, и наши специалисты сами предложат оптимальные варианты под ваш бюджет

.