8.2
Смотреть все фото
БЕЗ КОМИССИИ ID: 269156 Рейтинг6.7 КлассB

Москва, Большая Серпуховская улица, 14/13 с1

Серпуховская → 135 м
~ 2 мин
Арендная плата в месяц 4 400 100 ₽ 26 300 ₽/м² в год С учётом НДС

Презентация по предложению

Собираете информацию? Получите подробную презентацию в удобном формате!

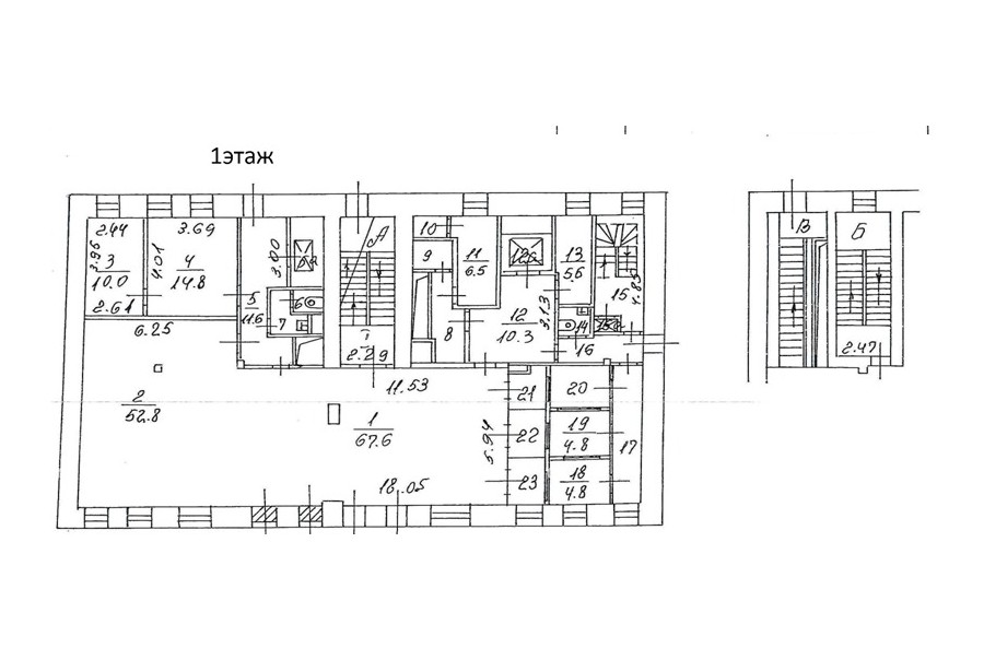
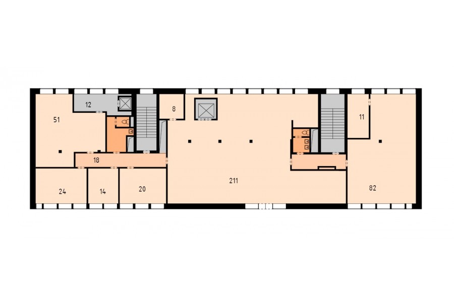
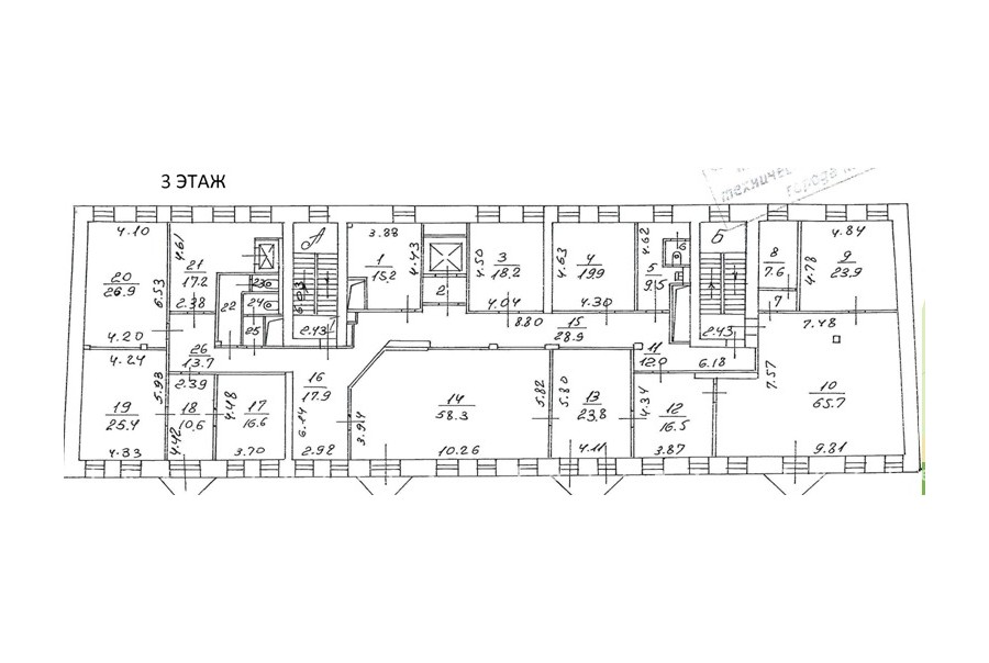
Площадь 2 004 м²
Состояние Готово к въезду
Планировка Смешанная
Этаж -1 - 4

Описание

Преимущества
  • Класс B
  • Пешком от метро
  • Кондиционирование и вентиляция
  • Свой паркинг
  • Несколько провайдеров связи
  • Развитая инфраструктура
Сдается в прямую аренду офис класса B площадью 2004 квадратных метров в историческом бизнес-центре.

Москва, ЦАО, Большая Серпуховская улица, 14/13 с1

Удобное расположение здания для всех видов транспорта:
- Автомобиль: близость транспортных магистралей, таких как Садовое Кольцо, Ленинский проспект и других.
- Возможность аренды парковочных мест.
- Ближайшее метро: буквально 2 мин пешком от метро "Серпуховская"

Офис класса B:
- Помещение готово к въезду
- Кондиционирование: сплит-системы
- Развитая инфраструктура внутри здания

Возможность заключения контракта в соответствии с 44ФЗ по госзакупкам.

Если данное предложение подходит Вашему запросу:

1. Мы отправим Вам подробную презентацию с планировкой и фотографиями в течение 10 минут после звонка, чтобы Вы могли поделиться информацией с руководством или с коллегами.
2. Задайте любые вопросы менеджеру по телефону, готовы обсуждать любые предложения по финансовым условиям договора аренды.
3. Покажем помещение в удобное для Вас время с менеджером в здании, при необходимости подготовим виртуальный тур.

Вы можете позвонить нам в любое время. Мы ответим на Ваши вопросы по будням до 19:00, а поздно вечером или в выходные сможем передать Ваш контакт нашему менеджеру.

Коммерческие условия

Арендная плата 4 400 120 ₽
Ставка арендной платы 26 300 ₽ м²/год
Эксплуатационные расходы Включены в ставку
Налоги С учётом НДС
Тип договора Прямая аренда
Срок договора Долгосрочный
Размер платежей 2 месяц
Обеспечительный платеж 2 месяц
Статус Сдан

О бизнес-центре

Класс B
Этажность 4
Лифты Нет
Общая площадь 2 122 м²
Год постройки 1917
Паркинг Наземный
Вентиляция естественная
Кондиционирование сплит-системы
Телекоммуникации Интернет/Телефония

Расположение

Подробная презентацию по предложению

Собираете информацию? Получите подробную презентацию в удобном формате, чтобы обсудить вариант с коллегами или переслать руководству!

Похожие предложения в других зданиях

БЕЗ КОМИССИИ ID: 199851 Рейтинг7.3 КлассB

Москва, Большая Серпуховская улица, 7

Серпуховская → 322 м
~ 3 мин
Арендная плата в месяц 4 250 000 ₽ 30 000 ₽/м² в год С учётом НДС
Характеристики 1 700 м² -1 - 5 этаж Готово к въезду
Преимущества
  • Класс B
  • Пешком от метро
  • Развитая инфраструктура

Предлагаем в прямую аренду офис класса B площадью 1700 кв.м в историческом бизнес-центре... подробнее

Презентация по предложению

Собираете информацию? Получите подробную презентацию в удобном формате!

БЕЗ КОМИССИИ ID: 290935 Рейтинг6.8 КлассB

Москва, Валовая улица, 28

Добрынинская → 382 м
~ 4 мин
Арендная плата в месяц 4 656 250 ₽ 25 000 ₽/м² в год С учётом НДС
Характеристики 2 235 м² 3 - 6 этаж Отделка под арендатора
Преимущества
  • Класс B
  • Пешком от метро
  • Кондиционирование и вентиляция
  • Свой паркинг
  • Развитая инфраструктура

Предлагаем в прямую аренду помещение под офис класса B площадью 2235 квадр. метров в историческом бизнес-центре... подробнее

Презентация по предложению

Собираете информацию? Получите подробную презентацию в удобном формате!

ВОЗМОЖНО ОСВОБОЖДЕНИЕ ID: 1150524 Рейтинг7.9 КлассB+

Москва, улица Щипок, 4

Серпуховская → 310 м
~ 3 мин
Арендная плата в месяц 4 837 500 ₽ 27 000 ₽/м² в год С учётом НДС
Характеристики 2 150 м² 1 - 6 этаж Готово к въезду
Преимущества
  • Класс B+
  • Пешком от метро
  • Кондиционирование и вентиляция
  • Свой паркинг

Предлагается в долгосрочную прямую аренду офисный блок класса B+ общей площадью 2150 кв.м в бизнес-центре... подробнее

Презентация по предложению

Собираете информацию? Получите подробную презентацию в удобном формате!

БЕЗ КОМИССИИ ID: 113580 Рейтинг7.9 КлассB+

Москва, 3-й Монетчиковский переулок, 16 с1

Павелецкая → 529 м
~ 5 мин
Арендная плата в месяц 3 645 833 ₽ 25 000 ₽/м² в год С учётом НДС
Характеристики 1 750 м² 0 - 6 этаж Под отделку
Преимущества
  • Класс B+
  • Пешком от метро
  • Кондиционирование и вентиляция
  • Свой паркинг
  • Развитая инфраструктура

Сдаем в долгосрочную прямую аренду офис класса B+ площадью 1750 квадратных метров в историческом недавно отреконструированном бизнес-центре "Монета"... подробнее

Презентация по предложению

Собираете информацию? Получите подробную презентацию в удобном формате!

БЕЗ КОМИССИИ ID: 1150601 Рейтинг6.6 КлассB

Москва, улица Большая Полянка, 51А/9

Добрынинская → 485 м
~ 5 мин
Арендная плата в месяц 3 412 500 ₽ 22 500 ₽/м² в год С учётом НДС
Характеристики 1 820 м² 1 этаж Готово к въезду
Преимущества
  • Класс B
  • Пешком от метро
  • Кондиционирование и вентиляция
  • Развитая инфраструктура

Сдаем в долгосрочную прямую аренду офисный блок класса B общей площадью 1820 кв.м в историческом бизнес-центре... подробнее

Презентация по предложению

Собираете информацию? Получите подробную презентацию в удобном формате!

Посмотреть все похожие предложения
Отнеситесь рационально к процессу поиска нового офиса!

Просто ответьте на 3 вопроса, и наши специалисты сами предложат оптимальные варианты под ваш бюджет

.