8.2
Смотреть все фото
БЕЗ КОМИССИИ ID: 1374678 Рейтинг8.1 КлассB

Москва, Большая Татарская улица, 35 с3

Новокузнецкая → 778 м
~ 8 мин
Арендная плата в месяц 1 882 100 ₽ 40 800 ₽/м² в год С учётом НДС

Презентация по предложению

Собираете информацию? Получите подробную презентацию в удобном формате!

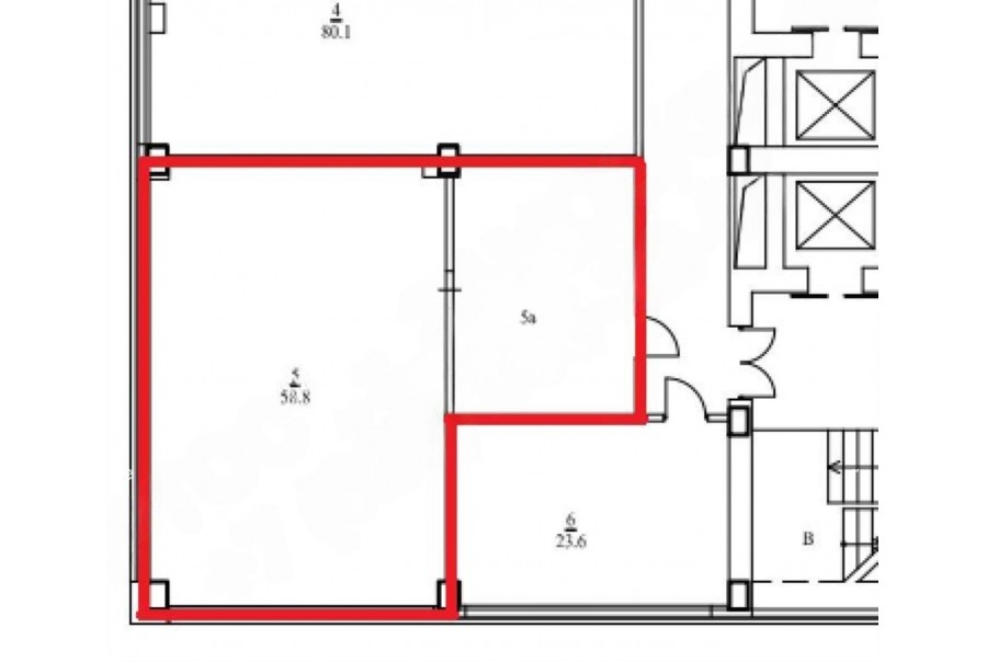
Площадь 554 м²
Состояние Готово к въезду
Планировка Смешанная
Этаж 12

Описание

Преимущества
  • Класс B
  • Пешком от метро
  • Кондиционирование и вентиляция
  • Свой паркинг
Сдается в долгосрочную аренду офисный блок класса B площадью 554 кв. метров в бизнес-центре.

Москва, ЦАО, Большая Татарская улица, 35 с3

Удобное расположение в пределах Садового кольца:
- Возможность аренды парковочных мест.
- Ближайшее метро: от метро "Новокузнецкая" всего 8 мин пешком

Офис класса B:
- Помещение с отделкой, готово к въезду
- Вентиляция: Приточно-вытяжная вентиляция
- Кондиционирование: центральное


Если данное предложение подходит Вашему запросу:

1. Мы подготовили презентацию с информацией о помещении, фотографиями и планировкой, чтобы Вы могли поделиться ей с коллегами или руководством. Попросите об этом нашего менеджера по телефону в объявлении.
2. Ответим на любые Ваши вопросы, готовы обсуждать любые предложения по коммерческим условиям аренды помещения.
3. Оперативно организуем просмотр помещения с менеджерами на объекте или подготовим виртуальный тур.

Вы можете позвонить нам в любое время. Мы ответим на Ваши вопросы по будням до 19:00, а поздно вечером или в выходные зафиксируем Ваш контакт и перезвоним в рабочее время.

Коммерческие условия

Арендная плата 1 882 120 ₽
Ставка арендной платы 40 800 ₽ м²/год
Эксплуатационные расходы Включены в ставку
Налоги С учётом НДС
Тип договора Прямая аренда
Срок договора от 11 месяцев
Размер платежей 1 месяц
Обеспечительный платеж 2 месяц
Статус Свободен

О бизнес-центре

Класс B
Этажность 12
Лифты Есть
Общая площадь 21 592 м²
Год постройки 1968
Паркинг Наземный
Вентиляция приточно-вытяжная
Кондиционирование центральное
Телекоммуникации Интернет/Телефония

Расположение

Подробная презентацию по предложению

Собираете информацию? Получите подробную презентацию в удобном формате, чтобы обсудить вариант с коллегами или переслать руководству!

Похожие предложения в других зданиях

БЕЗ КОМИССИИ ID: 1380630 Рейтинг7.3 КлассB+

Москва, Озерковская набережная, 12

Новокузнецкая → 670 м
~ 7 мин
Арендная плата в месяц 2 026 420 ₽ 40 300 ₽/м² в год С учётом НДС
Характеристики 604 м² 1 - 3 этаж Готово к въезду
Преимущества
  • Класс B+
  • Пешком от метро
  • Кондиционирование и вентиляция

Сдается в долгосрочную прямую аренду офисный блок класса B+ площадью 604 кв. метров в историческом недавно отреконструированном бизнес-центре... подробнее

Презентация по предложению

Собираете информацию? Получите подробную презентацию в удобном формате!

БЕЗ КОМИССИИ ID: 1380629 Рейтинг7.3 КлассB+

Москва, Озерковская набережная, 12

Новокузнецкая → 670 м
~ 7 мин
Арендная плата в месяц 1 992 870 ₽ 40 300 ₽/м² в год С учётом НДС
Характеристики 594 м² 2 - 4 этаж Готово к въезду
Преимущества
  • Класс B+
  • Пешком от метро
  • Кондиционирование и вентиляция

Предлагается в долгосрочную прямую аренду помещение под офис класса B+ общей площадью 594 кв. метров в историческом недавно отреконструированном бизнес-центре... подробнее

Презентация по предложению

Собираете информацию? Получите подробную презентацию в удобном формате!

БЕЗ КОМИССИИ ID: 1163267 Рейтинг8.5 КлассА

Москва, Садовническая улица, 82 с2

Павелецкая → 612 м
~ 6 мин
Арендная плата в месяц 1 850 000 ₽ 40 000 ₽/м² в год С учётом НДС
Характеристики 555 м² 4 этаж Готово к въезду
Преимущества
  • Класс А
  • Пешком от метро
  • Кондиционирование и вентиляция
  • Свой паркинг
  • Развитая инфраструктура

Предлагается в долгосрочную прямую аренду офисный блок класса А площадью 555 кв. метров в бизнес-центре "Аврора Бизнес Парк"... подробнее

Презентация по предложению

Собираете информацию? Получите подробную презентацию в удобном формате!

БЕЗ КОМИССИИ ID: 1210020 Рейтинг9.5 КлассА

Москва, Садовническая улица, 82

Павелецкая → 680 м
~ 7 мин
Арендная плата в месяц 1 850 000 ₽ 40 000 ₽/м² в год С учётом НДС
Характеристики 555 м² 4 этаж Готово к въезду
Преимущества
  • Класс А
  • Пешком от метро
  • Кондиционирование и вентиляция
  • Свой паркинг
  • Несколько провайдеров связи

Предлагаем в долгосрочную прямую аренду помещение под офис класса А общей площадью 555 кв. метров в бизнес-центре "Аврора Бизнес Парк 3"... подробнее

Презентация по предложению

Собираете информацию? Получите подробную презентацию в удобном формате!

БЕЗ КОМИССИИ ID: 268781 Рейтинг7.8 КлассB

Москва, 3-й Монетчиковский переулок, 4 с1

Павелецкая → 643 м
~ 6 мин
Арендная плата в месяц 1 716 000 ₽ 36 000 ₽/м² в год С учётом НДС
Характеристики 572 м² 4 этаж Готово к въезду
Преимущества
  • Класс B
  • Пешком от метро
  • Кондиционирование и вентиляция
  • Свой паркинг
  • Несколько провайдеров связи

Собственник сдает в долгосрочную аренду офис класса B площадью 572 кв.м в историческом недавно отреконструированном бизнес-центре... подробнее

Презентация по предложению

Собираете информацию? Получите подробную презентацию в удобном формате!

Посмотреть все похожие предложения
Отнеситесь рационально к процессу поиска нового офиса!

Просто ответьте на 3 вопроса, и наши специалисты сами предложат оптимальные варианты под ваш бюджет

.