8.2
Смотреть все фото
БЕЗ КОМИССИИ ID: 1237085 Рейтинг7.6 КлассB

Москва, Большая Татарская улица, 35с7-9

Павелецкая → 861 м
~ 9 мин
Арендная плата в месяц 752 000 ₽ 19 200 ₽/м² в год С учётом НДС

Презентация по предложению

Собираете информацию? Получите подробную презентацию в удобном формате!

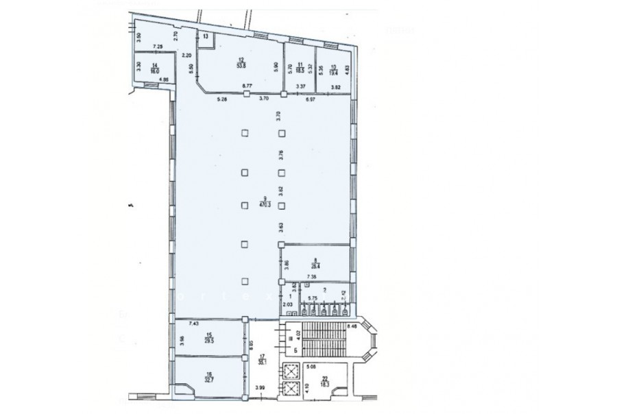
Площадь 470 м²
Состояние Готово к въезду
Планировка Кабинетная
Этаж 3

Описание

Преимущества
  • Класс B
  • Пешком от метро
  • Кондиционирование и вентиляция
  • Свой паркинг
Собственник сдает в долгосрочную аренду помещение под офис класса B общей площадью 470 кв.м в историческом бизнес-центре.

Москва, ЦАО, Большая Татарская улица, 35с7-9

Удобное расположение в пределах Садового кольца:
- Возможность аренды парковочных мест.
- Ближайшее метро: от метро "Третьяковская" всего 9 мин пешком

Офис класса B:
- Офис с отделкой, полностью готов к аренде
- Вентиляция: Приточно-вытяжная вентиляция
- Кондиционирование: сплит-системы


Если данное предложение подходит Вашему запросу:

1. Получите презентацию в течение 10 минут в Whatsapp или на почту с фотографиями и планировкой, чтобы обсудить данный вариант с коллегами или переслать руководству. Для этого позвоните по телефону, указанному в объявлении.
2. Задайте любые вопросы менеджеру по телефону, готовы обсуждать любые предложения по финансовым условиям договора аренды.
3. Проводим показы ежедневно, договоримся на удобное для Вас время. Можем организовать виртуальный тур по офисному блоку.

Вы можете позвонить нам в любое время. Мы ответим на Ваши вопросы по будням до 19:00, а поздно вечером или в выходные сможем передать Ваш контакт нашему менеджеру.

Коммерческие условия

Арендная плата 752 000 ₽
Ставка арендной платы 19 200 ₽ м²/год
Эксплуатационные расходы Включены в ставку
Налоги С учётом НДС
Тип договора Прямая аренда
Срок договора от 11 месяцев
Размер платежей 1 месяц
Обеспечительный платеж 1 месяц
Статус Сдан

О бизнес-центре

Класс B
Этажность 5
Лифты Нет
Общая площадь 0 м²
Год постройки 1946
Паркинг Наземный
Вентиляция приточно-вытяжная
Кондиционирование сплит-системы
Телекоммуникации Интернет/Телефония

Расположение

Подробная презентацию по предложению

Собираете информацию? Получите подробную презентацию в удобном формате, чтобы обсудить вариант с коллегами или переслать руководству!

Похожие предложения в других зданиях

БЕЗ КОМИССИИ ID: 214374 Рейтинг7.2 КлассB

Москва, Большая Татарская улица, 35 с4

Павелецкая → 774 м
~ 8 мин
Арендная плата в месяц 600 000 ₽ 18 000 ₽/м² в год С учётом НДС
Характеристики 400 м² 3 этаж Готово к въезду
Преимущества
  • Класс B
  • Пешком от метро
  • Кондиционирование и вентиляция
  • Развитая инфраструктура

Предлагается в прямую аренду помещение под офис класса B площадью 400 кв.м в историческом бизнес-центре... подробнее

Презентация по предложению

Собираете информацию? Получите подробную презентацию в удобном формате!

БЕЗ КОМИССИИ ID: 240926 Рейтинг7.4 КлассB

Москва, Садовническая набережная, 71

Павелецкая → 939 м
~ 9 мин
Арендная плата в месяц 726 000 ₽ 18 000 ₽/м² в год С учётом НДС
Характеристики 484 м² 2 этаж Готово к въезду
Преимущества
  • Класс B
  • Пешком от метро
  • Кондиционирование и вентиляция

Предлагается в долгосрочную аренду офисный блок класса B площадью 484 квадр. метров в бизнес-центре... подробнее

Презентация по предложению

Собираете информацию? Получите подробную презентацию в удобном формате!

БЕЗ КОМИССИИ ID: 104542 Рейтинг6.7 КлассB

Москва, улица Бахрушина, 10 с2

Павелецкая → 599 м
~ 6 мин
Арендная плата в месяц 750 000 ₽ 18 000 ₽/м² в год С учётом НДС
Характеристики 500 м² 1 этаж Готово к въезду
Преимущества
  • Класс B
  • Пешком от метро
  • Кондиционирование и вентиляция

Предлагаем в прямую аренду офисный блок класса B площадью 500 квадр. метров в бизнес-центре... подробнее

Презентация по предложению

Собираете информацию? Получите подробную презентацию в удобном формате!

БЕЗ КОМИССИИ ID: 231764 Рейтинг7.8 КлассB+

Москва, Большая Татарская улица, 30 с2

Новокузнецкая → 642 м
~ 6 мин
Арендная плата в месяц 749 667 ₽ 17 300 ₽/м² в год С учётом НДС
Характеристики 520 м² 0 - 3 этаж Готово к въезду
Преимущества
  • Класс B+
  • Пешком от метро
  • Кондиционирование и вентиляция
  • Свой паркинг

Собственник сдает в прямую аренду помещение под офис класса B+ общей площадью 520 кв.м в бизнес-центре... подробнее

Презентация по предложению

Собираете информацию? Получите подробную презентацию в удобном формате!

БЕЗ КОМИССИИ ID: 213814 Рейтинг7.8 КлассB+

Москва, Большая Татарская улица, 30 с2

Новокузнецкая → 642 м
~ 6 мин
Арендная плата в месяц 720 833 ₽ 17 300 ₽/м² в год С учётом НДС
Характеристики 500 м² 0 - 3 этаж Готово к въезду
Преимущества
  • Класс B+
  • Пешком от метро
  • Кондиционирование и вентиляция
  • Свой паркинг

Собственник сдает в прямую аренду офис класса B+ общей площадью 500 квадратных метров в бизнес-центре... подробнее

Презентация по предложению

Собираете информацию? Получите подробную презентацию в удобном формате!

Посмотреть все похожие предложения
Отнеситесь рационально к процессу поиска нового офиса!

Просто ответьте на 3 вопроса, и наши специалисты сами предложат оптимальные варианты под ваш бюджет

.