8.2
Смотреть все фото
БЕЗ КОМИССИИ ID: 1324286 Рейтинг9.1 КлассА
Бизнес-центр «Большевик»

Аренда офиса 1218 м²

Москва, Ленинградский проспект, 15 с3

Белорусская → 776 м
~ 8 мин
Арендная плата в месяц 6 920 300 ₽ 68 200 ₽/м² в год С учётом НДС

Презентация по предложению

Собираете информацию? Получите подробную презентацию в удобном формате!

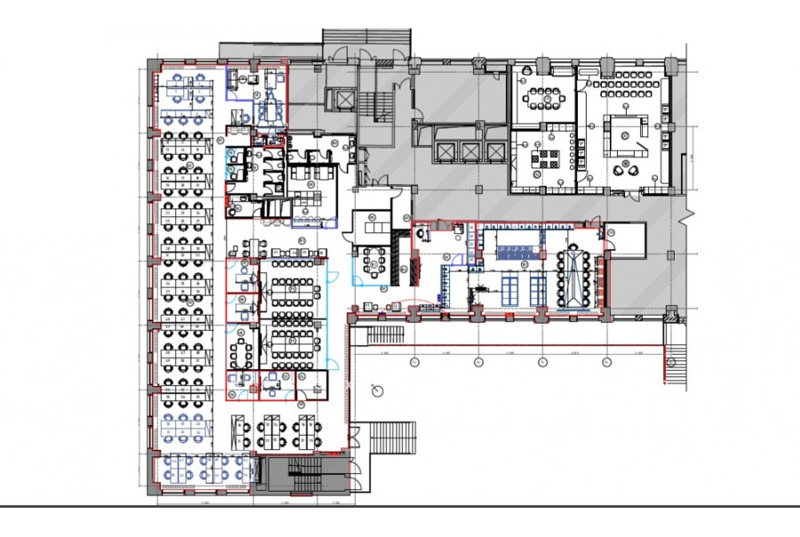
Площадь 1 218 м²
Состояние Готово к въезду
Планировка Смешанная
Этаж 1

Описание

Преимущества
  • Класс А
  • Пешком от метро
  • Кондиционирование и вентиляция
  • Свой паркинг
Предлагаем в долгосрочную прямую аренду помещение под офис класса А площадью 1218 квадр. метров в недавно отреконструированном бизнес-центре "Большевик".

Москва, САО, Ленинградский проспект, 15 с3

Удобная локация здания:
- Автомобиль: близость транспортных магистралей, таких как Ленинградский проспект, Третье Транспортное Кольцо и других.
- Возможность аренды парковочных мест.
- Ближайшее метро: от метро "Белорусская" всего 8 мин пешком

Офис класса А:
- Офис с отделкой, полностью готов к аренде
- Вентиляция: Приточно-вытяжная вентиляция
- Кондиционирование: центральное
- Презентабельный центральный ресепшн
- Круглосуточная охрана и видеонаблюдение

Возможность заключения контракта в соответствии с 44ФЗ по госзакупкам.

Если предложение предварительно Вам подходит:

1. Мы подготовили презентацию с информацией о помещении, фотографиями и планировкой, чтобы Вы могли поделиться ей с коллегами или руководством. Попросите об этом нашего менеджера по телефону в объявлении.
2. Задайте любые вопросы менеджеру по телефону, готовы обсуждать любые предложения по финансовым условиям договора аренды.
3. Оперативно организуем просмотр помещения с менеджерами на объекте или подготовим виртуальный тур.

Вы можете позвонить нам в любое время. Мы ответим на Ваши вопросы по будням до 19:00, а поздно вечером или в выходные зафиксируем Ваш контакт и перезвоним в рабочее время.

Коммерческие условия

Арендная плата 6 920 270 ₽
Ставка арендной платы 68 200 ₽ м²/год
Эксплуатационные расходы Включены в ставку
Налоги С учётом НДС
Тип договора Прямая аренда
Срок договора от 11 месяцев
Размер платежей 3 месяц
Обеспечительный платеж 3 месяц
Статус Сдан

О бизнес-центре

Класс А
Этажность 6
Лифты Есть
Общая площадь 86 000 м²
Паркинг Подземный
Вентиляция приточно-вытяжная
Кондиционирование центральное
Телекоммуникации Интернет/Телефония

Расположение

Подробная презентацию по предложению

Собираете информацию? Получите подробную презентацию в удобном формате, чтобы обсудить вариант с коллегами или переслать руководству!

Похожие предложения в других зданиях

БЕЗ КОМИССИИ ID: 223872 Рейтинг8.7 КлассА

Москва, Ленинградский проспект, 31А

Динамо → 818 м
~ 8 мин
Арендная плата в месяц 6 266 700 ₽ 63 300 ₽/м² в год С учётом НДС
Характеристики 1 188 м² 30 этаж Готово к въезду
Преимущества
  • Класс А
  • Пешком от метро
  • Кондиционирование и вентиляция
  • Свой паркинг
  • Развитая инфраструктура

Предлагается в аренду помещение под офис класса А общей площадью 1188 квадр. метров в бизнес-центре "Монарх"... подробнее

Презентация по предложению

Собираете информацию? Получите подробную презентацию в удобном формате!

БЕЗ КОМИССИИ ID: 1293493 Рейтинг10.0 КлассА

Москва, площадь Тверская Застава, 4

Белорусская → 25 м
~ 0 мин
Арендная плата в месяц 7 996 643 ₽ 70 500 ₽/м² в год С учётом НДС
Характеристики 1 362 м² 7 этаж Отделка под арендатора
Преимущества
  • Класс А
  • Пешком от метро
  • Новое строительство
  • Кондиционирование и вентиляция
  • Свой паркинг

Предлагаем в прямую аренду офисное помещение класса B общей площадью 1362 квадратных метров в современном бизнес-центре "МФК Афи Галерея"... подробнее

Презентация по предложению

Собираете информацию? Получите подробную презентацию в удобном формате!

БЕЗ КОМИССИИ ID: 1305565 Рейтинг9.7 КлассА

Москва, Лесная улица, 5сБ

Белорусская → 88 м
~ 1 мин
Арендная плата в месяц 7 526 192 ₽ 66 000 ₽/м² в год С учётом НДС
Характеристики 1 369 м² 4 этаж Готово к въезду
Преимущества
  • Класс А
  • Пешком от метро
  • Кондиционирование и вентиляция
  • Свой паркинг
  • Несколько провайдеров связи
  • Развитая инфраструктура

Сдается в долгосрочную прямую аренду помещение под офис класса А общей площадью 1369 квадратных метров в бизнес-центре "Белая Площадь"... подробнее

Презентация по предложению

Собираете информацию? Получите подробную презентацию в удобном формате!

БЕЗ КОМИССИИ ID: 1237074 Рейтинг9.5 КлассА

Москва, Лесная улица, 7

Белорусская → 238 м
~ 2 мин
Арендная плата в месяц 7 169 581 ₽ 63 900 ₽/м² в год С учётом НДС
Характеристики 1 346 м² 6 этаж Готово к въезду
Преимущества
  • Класс А
  • Пешком от метро
  • Кондиционирование и вентиляция
  • Свой паркинг
  • Развитая инфраструктура

Сдаем в долгосрочную аренду офисное помещение класса А общей площадью 1346 кв.м в бизнес-центре "Белые сады"... подробнее

Презентация по предложению

Собираете информацию? Получите подробную презентацию в удобном формате!

БЕЗ КОМИССИИ ID: 1380185 Рейтинг7.8 КлассB+

Москва, Лесная улица, 43

Белорусская → 559 м
~ 6 мин
Арендная плата в месяц 7 318 751 ₽ 63 000 ₽/м² в год С учётом НДС
Характеристики 1 395 м² 1 - 4 этаж Готово к въезду
Преимущества
  • Класс B+
  • Пешком от метро
  • Кондиционирование и вентиляция
  • Свой паркинг
  • Несколько провайдеров связи
  • Развитая инфраструктура

Предлагаем в долгосрочную аренду офисный блок класса B+ общей площадью 1395 квадратных метров в историческом недавно отреконструированном бизнес-центре... подробнее

Презентация по предложению

Собираете информацию? Получите подробную презентацию в удобном формате!

Посмотреть все похожие предложения
Отнеситесь рационально к процессу поиска нового офиса!

Просто ответьте на 3 вопроса, и наши специалисты сами предложат оптимальные варианты под ваш бюджет

.